Eladó Irodaház, Tiszafüred

Ingatlan azonosító: HI-2540848

Jász-Nagykun-Szolnok megye - Tiszafüred, C kat.


54 900 000 Ft (146 400 €)

  • Hirdetés feladója: Ingatlaniroda
  • Pontos cím: Tiszafüred
  • Típus: Eladó
  • Belső irodai azonosító: M271020-5157241
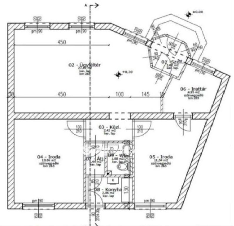
  • Alapterület: 69 m²
  • Építés éve: 1995
  • Félszobák száma (6-12 m² között): 2 db
  • Emelet: földszint
  • Lift: nincs
  • Akadálymentesített: nincs
  • Napelem van?: nincs
  • Légkondicionáló: van

Leírás

Árcsökkenés! Egyedi lehetőség! Kiváló ár-érték arányban ! Nagyszerű, hosszútávú befektetési lehetőség! Tiszafüred Belvárosában eladó egy 69 m2-es, 2014-ben felújított, klímás ingatlan, mely jelenleg IRODAHÁZként funkcionál. A fogadótér mellett még 2 külön bejáratú irodahelyiség, raktár/öltöző, kis konyha és fürdőszoba, valamint egy saját, 26m2-es belső kert is tartozik! Az ingatlanban jelenleg is jól prosperáló vállalkozás működik, megbízható bérlővel. Tulajdonosváltás esetén a bérleti jogviszony megállapodás szerint tovább vihető. Az irodai tevékenységen kívül más kereskedelmi/szolgáltató tevékenységre is remek választás lehet. Igény szerint a CSALÁDI HÁZzá történő átminősítésre is van lehetőség, némi átalakítással. Kiváló lokációval rendelkezik, mind ellátottság( vásárlási lehetőségek, szupermarketek, pékség, kávézók, posta, szakorvosi rendelő, bölcsi, ovi, általános és középiskolák, Városháza...), mind közlekedés szempontjából ( távolsági busz, vonat, 33-as, 34-es főút néhány percre, az M3-as autópálya 30 km-re), valamint turisztikai lokációként is nagyszerű! Tiszafüred a tisza-tavi környezet idegenforgalmi és térségi központja egyben, kiváló turisztikai célpont - Tisza-tavi Ökocentrum, termál- ás szabadstrand, kerékpárút kerékpáros centrummal, kitűnő szállás- és vendéglátóhelyek. Ügyfeleink számára teljes körű ügyintézéssel áll rendelkezésre az OTP Bankcsoport. Az OTP Ingatlanpont kínálatából választott ingatlan finanszírozásához kedvezményes hitelmegoldásokat kínálunk, illetve az adásvételi szerződés megkötéséhez megbízható ügyvédi közreműködést is tudunk biztosítani! Ha hirdetésünk felkeltette érdeklődését, kérem hívjon bizalommal a hét bármely napján! Referencia szám: M271020

E-mail küldése a hirdetőnek

Hibás hirdetés bejelentése

Sikeres elküldtük a hiba bejelentést.

Hirdető adatai

Jónás Irén
E-mail cím: iren.jonas@otpip.hu
Telefonszám: +36204966810
OTPip
Hirdetés feladója: Ingatlaniroda
Ingatlaniroda: OTPip
E-mail cím: tiszafured@otpip.hu
Telefonszám: +36-30-299-7416

Képek



Térkép


Ajánlott ingatlanok

Családi ház

Eladó Ház, Poroszló

Keresés azonosító alapján: HI-2514038
  • Poroszló
  • Alapterület: 99 m²
  • Telekterület: 552 m²
  • Ár: 83 000 000 Ft (221 333 €)
  • Feltöltés dátuma: 2025.12.18.
  • klímás
Családi ház

Eladó Ház, Tiszaszentimre

Keresés azonosító alapján: HI-2520589
  • Tiszaszentimre
  • Alapterület: 120 m²
  • Telekterület: 1 210 m²
  • Ár: 26 500 000 Ft (70 667 €)
  • Feltöltés dátuma: 2026.01.13.
  • klímás
Családi ház

Eladó Ház, Poroszló

Keresés azonosító alapján: HI-2540123
  • Poroszló
  • Alapterület: 82 m²
  • Telekterület: 363 m²
  • Ár: 35 000 000 Ft (93 333 €)
  • Feltöltés dátuma: 2026.02.21.
  •  
Családi ház

Eladó Ház, Poroszló

Keresés azonosító alapján: HI-2540131
  • Poroszló
  • Alapterület: 205 m²
  • Telekterület: 741 m²
  • Ár: 119 000 000 Ft (317 333 €)
  • Feltöltés dátuma: 2026.02.21.
  •  
Facebook
Blogger
Twitter
Tweets by hasznaltingatla
Flickr