Eladó Lakás, Ács

Ingatlan azonosító: HI-2471455

Komárom-Esztergom megye - Ács, Új építésű lakás


59 949 400 Ft (153 323 €)

  • Hirdetés feladója: Ingatlaniroda
  • Pontos cím: Ács
  • Típus: Eladó
  • Belső irodai azonosító: M311378-5027247
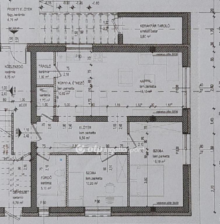
  • Alapterület: 70 m²
  • Építés éve: 2025
  • Egész szobák száma (12 m² felett): 3 db
  • Félszobák száma (6-12 m² között): 0 db
  • Emelet: földszint
  • Ingatlan állapota: új építésű
  • Komfort: összkomfortos
  • Fűtés: egyéb
  • Lift: nincs
  • Akadálymentesített: nincs
  • Energiatanúsítvány: A
  • Napelem van?: nincs
  • Erkély: nincs
  • Légkondicionáló: nincs
  • Kilátás: udvari
  • A lakás falazata: Tégla
  • Közös költség mértéke: 5000

Leírás

Komárom-Esztergom vármegyében, Ácson modern, 4 lakásos társasházakban új építésű lakások leköthetők, 2026. II.negyedévi átadással.kiváló műszaki tartalommal és minőségi beépített anyagokkal. Az épületek monolit vasbeton vázszerkezettel készülnek, falazatuk 30 cm vastag Porotherm tégla, míg a válaszfalak 10 cm-es hanggátló téglából épülnek. A homlokzati hőszigetelés 15 cm vastagságú. Beépített nyílászárók kiváló minőséget képviselnek. A földszinti lakások kizárólagos használatú kerttel rendelkeznek, míg az emeleti lakásokhoz tágas erkély tartozik. A fűtésről és melegvízellátásról egyenkénti hőszivattyú gondoskodik, padlófűtéssel. A projekt nyugodt, zöld környezetben valósul meg, napfényes és tágas lakásokkal, praktikus alaprajzokkal és modern megoldásokkal. Több éves tapasztalattal rendelkező kivitelező garantálja a minőséget, nyugodt,élhető, környezetben. Amennyiben további kérdése van, forduljon hozzánk bizalommal elérhetőségeinken. Referencia szám: M311378-HI

E-mail küldése a hirdetőnek

Hibás hirdetés bejelentése

Sikeres elküldtük a hiba bejelentést.

Hirdető adatai

Kasznár József
E-mail cím: kasznar.jozsef@otpip.hu
Telefonszám: +36-30-225-0012
OTPip
Hirdetés feladója: Ingatlaniroda
Ingatlaniroda: OTPip
E-mail cím: gyor@otpip.hu
Telefonszám: +36707082435

Képek



Térkép


Ajánlott ingatlanok

Új építésű lakás

Eladó Lakás, Hegyeshalom

Keresés azonosító alapján: HI-2428087
  • Hegyeshalom
  • Alapterület: 31 m²
  • Ár: 29 900 000 Ft (76 471 €)
  • Feltöltés dátuma: 2025.06.06.
  •  
Új építésű lakás

Eladó Lakás, Hegyeshalom

Keresés azonosító alapján: HI-2460004
  • Hegyeshalom
  • Alapterület: 37 m²
  • Ár: 38 710 000 Ft (99 003 €)
  • Feltöltés dátuma: 2025.08.09.
  •  
Új építésű lakás

Eladó Lakás, Ács

Keresés azonosító alapján: HI-2471456
  • Ács
  • Alapterület: 84 m²
  • Ár: 71 167 000 Ft (182 013 €)
  • Feltöltés dátuma: 2025.09.06.
  •  
Új építésű lakás

Eladó Lakás, Mosonszolnok

Keresés azonosító alapján: HI-2248579
  • Mosonszolnok
  • Alapterület: 105 m²
  • Ár: 85 000 000 Ft (217 391 €)
  • Feltöltés dátuma: 2024.06.20.
  •  
Facebook
Blogger
Twitter
Tweets by hasznaltingatla
Flickr