Eladó Lakás, Ács

Ingatlan azonosító: HI-2471457

Komárom-Esztergom megye - Ács, Új építésű lakás


78 252 600 Ft (200 135 €)

  • Hirdetés feladója: Ingatlaniroda
  • Pontos cím: Ács
  • Típus: Eladó
  • Belső irodai azonosító: M311380-5027232
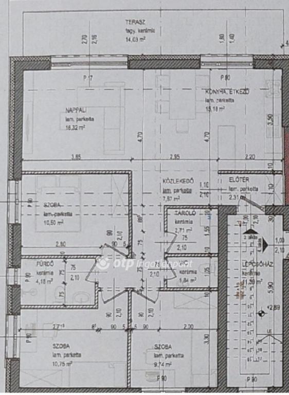
  • Alapterület: 95 m²
  • Építés éve: 2025
  • Egész szobák száma (12 m² felett): 4 db
  • Félszobák száma (6-12 m² között): 0 db
  • Emelet: földszint
  • Ingatlan állapota: új építésű
  • Komfort: összkomfortos
  • Fűtés: egyéb
  • Lift: nincs
  • Akadálymentesített: nincs
  • Energiatanúsítvány: A
  • Napelem van?: nincs
  • Erkély: van
  • Légkondicionáló: nincs
  • Kilátás: udvari
  • A lakás falazata: Tégla
  • Közös költség mértéke: 5000

Leírás

Komárom-Esztergom vármegyében, Ácson modern, 4 lakásos társasházakban új építésű lakások leköthetők, 2026. II.negyedévi átadással.kiváló műszaki tartalommal és minőségi beépített anyagokkal. Az épületek monolit vasbeton vázszerkezettel készülnek, falazatuk 30 cm vastag Porotherm tégla, míg a válaszfalak 10 cm-es hanggátló téglából épülnek. A homlokzati hőszigetelés 15 cm vastagságú. Beépített nyílászárók kiváló minőséget képviselnek. A földszinti lakások kizárólagos használatú kerttel rendelkeznek, míg az emeleti lakásokhoz tágas erkély tartozik. A fűtésről és melegvízellátásról egyenkénti hőszivattyú gondoskodik, padlófűtéssel. A projekt nyugodt, zöld környezetben valósul meg, napfényes és tágas lakásokkal, praktikus alaprajzokkal és modern megoldásokkal. Több éves tapasztalattal rendelkező kivitelező garantálja a minőséget, nyugodt,élhető, környezetben. Amennyiben további kérdése van, forduljon hozzánk bizalommal elérhetőségeinken. Referencia szám: M311380-HI

E-mail küldése a hirdetőnek

Hibás hirdetés bejelentése

Sikeres elküldtük a hiba bejelentést.

Hirdető adatai

Kasznár József
E-mail cím: kasznar.jozsef@otpip.hu
Telefonszám: +36-30-225-0012
OTPip
Hirdetés feladója: Ingatlaniroda
Ingatlaniroda: OTPip
E-mail cím: gyor@otpip.hu
Telefonszám: +36707082435

Képek



Térkép


Ajánlott ingatlanok

Új építésű lakás

Eladó Lakás, Mosonszolnok

Keresés azonosító alapján: HI-2248579
  • Mosonszolnok
  • Alapterület: 105 m²
  • Ár: 85 000 000 Ft (217 391 €)
  • Feltöltés dátuma: 2024.06.20.
  •  
Új építésű lakás

Eladó Lakás, Levél

Keresés azonosító alapján: HI-2482381
  • Levél
  • Alapterület: 31 m²
  • Ár: 34 500 000 Ft (88 235 €)
  • Feltöltés dátuma: 2025.09.30.
  •  
Új építésű lakás

Eladó Lakás, Hegyeshalom

Keresés azonosító alapján: HI-2463202
  • Hegyeshalom
  • Alapterület: 32 m²
  • Ár: 35 820 000 Ft (91 611 €)
  • Feltöltés dátuma: 2025.08.17.
  •  
Új építésű lakás

Eladó Lakás, Fertőszentmiklós

Keresés azonosító alapján: HI-2142616
  • Fertőszentmiklós
  • Alapterület: 69 m²
  • Ár: 68 900 000 Ft (176 215 €)
  • Feltöltés dátuma: 2024.01.17.
  •  
Facebook
Blogger
Twitter
Tweets by hasznaltingatla
Flickr