Eladó Lakás, Battonya

Ingatlan azonosító: HI-2475270

Békés megye - Battonya, Panel lakás


12 800 000 Ft (32 653 €)

  • Hirdetés feladója: Ingatlaniroda
  • Pontos cím: Battonya
  • Típus: Eladó
  • Belső irodai azonosító: M311496-5036447
  • Alapterület: 50 m²
  • Építés éve: 1986
  • Egész szobák száma (12 m² felett): 2 db
  • Félszobák száma (6-12 m² között): 0 db
  • Emelet: 2. emelet
  • Ingatlan állapota: jó állapotú
  • Komfort: összkomfortos
  • Fűtés: gáz (cirko)
  • Lift: nincs
  • Akadálymentesített: nincs
  • Napelem van?: nincs
  • Erkély: van
  • Légkondicionáló: van
  • Kilátás: utcai
  • A lakás falazata: Panel
  • Közös költség mértéke: 4000

Leírás

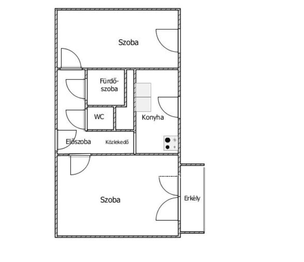
CSAK az OTP Ingatlanpont kínálatában!!! Eladó Békés vármegyében, Battonya település városközpontjában egy 2 szoba, előszoba, közlekedő, konyha, fürdőszoba, WC és erkély helyiségekből álló nagyon jó állapotú, 50 m2-es, 2. emeleti ERKÉLYES panellakás! Kiváló befektetésnek is, és állandó ott lakásra is! A lakás jó állapotú lépcsőházban található, jó szomszédságban. A lakáshoz saját zárt pince is tartozik, melyet egy másik lakással közösen használnak, fele-fele arányban megosztva. Az ablakok és a redőnyök (beleértve az erkélyt is) mind újak és a bejárati ajtó is. Az erkély felújított, le lett lemezelve, így biztonságosabb és tartósabb is. A konyha is felújított, új a konyhabútor is. A konyhában található a lakást fűtő Fégtherm gázkazán és egy nagyobb Hajdú villanybojler. A konyhában található egy újszerű felül gáz, alul villanytűzhely, mely szintén a lakásban marad. A lakás pár éve ki lett festve és meszelve, a szobákban új laminált padló borítás található. A nappaliba vadiúj klíma került felszerelésre 2025. tavaszán. A lakásban maradt egy gardróbszekrény, egy hűtő és egy mosógép, ezeket a tulaj el fogja szállítani, ezek nem részei a vételárnak. A közös költség 4.000,-Ft/hó. Parkolás a ház előtt lehetséges, közterületen, ingyenesen. A lakás mind kisebb családoknak, mind pároknak, mind egyedülállóknak megfelelő, és bármely korosztály számára alkalmas nagyon jó elhelyezkedése, állapota és kompakt mérete alapján! A lakás közel van a fő utcához. A városközpont 10 perc sétával elérhető. Az ingatlan tehermentes, arra hitel, babaváró támogatás felvehető, melynek elintézésében szintén gyors és szakértő segítséget nyújtunk önnek igény esetén! A lakás megfelel az Otthon Start Hitelprogram feltételeinek! Ha felkeltettem érdeklődését, keressen bizalommal! Vagy esetleg ingatlant adna el? Akkor is keressen bátran a megadott telefonszámon! Akár ingyenes árkalkulációt is szívesen végzünk Önnek, további kötöttségek nélkül! Referencia szám: M311496

E-mail küldése a hirdetőnek

Hibás hirdetés bejelentése

Sikeres elküldtük a hiba bejelentést.

Hirdető adatai

Farkas Tímea
E-mail cím: timea.farkas@otpip.hu
Telefonszám: +36-30-223-3532
OTPip
Hirdetés feladója: Ingatlaniroda
Ingatlaniroda: OTPip
E-mail cím: szentes@otpip.hu
Telefonszám: +36-70-455-0993

Képek



Térkép


Ajánlott ingatlanok

Panel lakás

Eladó Lakás, Szeged

Keresés azonosító alapján: HI-2484456
  • Szeged
  • Alapterület: 72 m²
  • Ár: 64 900 000 Ft (165 561 €)
  • Feltöltés dátuma: 2025.10.02.
  •  
Panel lakás

Eladó Lakás, Szentes

Keresés azonosító alapján: HI-2423580
  • Szentes
  • Alapterület: 55 m²
  • Ár: 28 500 000 Ft (72 704 €)
  • Feltöltés dátuma: 2025.05.26.
  •  
Panel lakás

Eladó Lakás, Mezőhegyes

Keresés azonosító alapján: HI-2405097
  • Mezőhegyes
  • Alapterület: 56 m²
  • Ár: 13 000 000 Ft (33 163 €)
  • Feltöltés dátuma: 2025.04.22.
  •  
Panel lakás

Eladó Lakás, Szentes

Keresés azonosító alapján: HI-2413896
  • Szentes
  • Alapterület: 68 m²
  • Ár: 31 900 000 Ft (81 378 €)
  • Feltöltés dátuma: 2025.05.05.
  •  
Facebook
Blogger
Twitter
Tweets by hasznaltingatla
Flickr