Eladó Lakás, Budapest 1. ker.

Ingatlan azonosító: HI-2502160

Budapest - Budapest I., Tégla lakás


135 000 000 Ft (352 480 €)

  • Hirdetés feladója: Ingatlaniroda
  • Pontos cím: Budapest I.
  • Típus: Eladó
  • Belső irodai azonosító: M317186-5086234
  • Alapterület: 85 m²
  • Építés éve: 1985
  • Egész szobák száma (12 m² felett): 3 db
  • Félszobák száma (6-12 m² között): 1 db
  • Emelet: földszint
  • Ingatlan állapota: jó állapotú
  • Komfort: összkomfortos
  • Fűtés: gáz (cirko)
  • Lift: nincs
  • Akadálymentesített: nincs
  • Napelem van?: nincs
  • Erkély: nincs
  • Légkondicionáló: nincs
  • Kilátás: utcai
  • Tájolás: dél-nyugat
  • Közös költség mértéke: 25000

Leírás

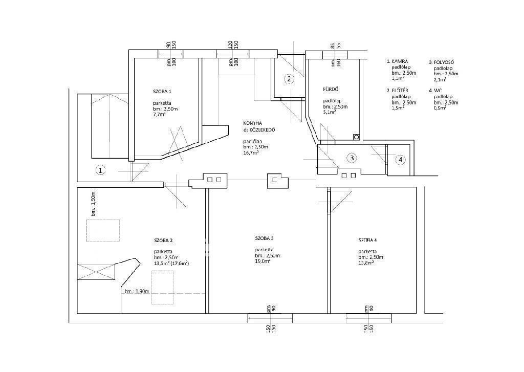
***SEE THE ENGLISH DESCRIPTION BELOW, THANK YOU*** Családbarát, világos otthon a Kis-Gellérthegy zöld, csendes részén Budán, az 1. kerület egyik legkedveltebb részén, a Kis-Gellérthegyen, az Avar utca nyugodt, vonatzajtól mentes szakaszán eladó egy 81nm-es, 2. emeleti, nappali + 2,5 szobás lakás egy 10 lakásos, téglaépítésű, barátságos társasházban. A századfordulón épült ház csendes mellékutcában található, ugyanakkor minden fontos szolgáltatás és zöldterület könnyen elérhető. A lakás a legfelső szinten helyezkedik el, ahol mindössze két lakás található, biztosítva a teljes nyugalmat. A lakás elrendezése: Tágas előszoba Közlekedő beépített szekrényekkel 19 m²-es nappali és étkező Három külön nyíló szoba (17,6 nm, 13,8 nm, 7,7 nm) Világos, gépesített konyha, félig nyitott az étkező felé Külön fürdőszoba és WC Külön kamra Saját tároló a pincében A kelet–nyugati tájolásnak köszönhetően a lakás egész nap világos. Minden helyiség klímával felszerelt, a biztonságot riasztórendszer biztosítja. A lakás jó állapotú, utolsó nagyobb felújítása 2014-ben történt, a kondenzációs kazánt 2025-ben cserélték. A környék családok számára ideális: a Budai Vár, a Tabán és Gellért-hegy pár perc sétára található, a MOM Park, Gesztenyés kert és a Citadella 10 percen belül elérhető. Kiváló közlekedés: Móricz Zsigmond körtér, Déli pályaudvar és a Belváros 10–15 perc. Ez a lakás remek választás mindazok számára, akik szeretnének egy szerethető, tágas, világos otthont csendes, biztonságos, zöld környezetben, ugyanakkor a város szívében. ⸻ Family-friendly, bright home in the green and peaceful area of Kis-Gellérthegy In one of the most desirable parts of Buda’s District 1, on the quiet, train-noise-free section of Avar Street, we offer for sale an 81 sqm, 2nd-floor apartment with a living room + 2.5 bedrooms in a friendly, 10-unit brick building. The early 1900s building is located on a calm side street, yet all essential services and iconic green areas are within easy reach. Situated on the top floor, with only two apartments on this level, the home provides exceptional peace and privacy. Layout: Spacious entrance hall Corridor with built-in storage 19 sqm living and dining area Three separate bedrooms (17.6 sqm, 13.8 sqm, 7.7 sqm) Bright, fully equipped kitchen, partially open to the dining area Separate bathroom and toilet Dedicated pantry Private storage room in the basement Thanks to its east–west orientation, the apartment is filled with natural light all day. All rooms are equipped with air conditioning, and a security alarm system ensures safety. The property is in good condition; the last major renovation took place in 2014, and a new condensation boiler was installed in 2025. The area is ideal for families: the Buda Castle, Tabán, and Gellért Hill are only a few minutes’ walk away, while MOM Park, Gesztenyés Garden, and the Citadella are accessible within 10 minutes. Transport connections are excellent: Móricz Zsigmond Square, Déli Railway Station, and the City Centre can be reached in 10–15 minutes. This home is a perfect choice for those seeking a spacious, bright, and lovable apartment in a quiet, green, and safe neighbourhood—right in the heart of the city. Referencia szám: M317186-HI

E-mail küldése a hirdetőnek

Hibás hirdetés bejelentése

Sikeres elküldtük a hiba bejelentést.

Hirdető adatai

Gregoryan Artur
E-mail cím: artur.gregoryan@otpip.hu
Telefonszám: +36706300162
OTPip
Hirdetés feladója: Ingatlaniroda
Ingatlaniroda: OTPip
E-mail cím: pannonia@otpip.hu
Telefonszám: +36-70-708-2439

Képek



Térkép


Ajánlott ingatlanok

Tégla lakás

Eladó Lakás, Budapest 12. ker.

Keresés azonosító alapján: HI-2483612
  • Budapest XII.
  • Alapterület: 91 m²
  • Ár: 399 900 000 Ft (1 044 125 €)
  • Feltöltés dátuma: 2025.10.01.
  •  
Tégla lakás

Eladó Lakás, Budapest 10. ker.

Keresés azonosító alapján: HI-2500014
  • Budapest X.
  • Alapterület: 35 m²
  • Ár: 37 900 000 Ft (98 956 €)
  • Feltöltés dátuma: 2025.11.09.
  •  
Tégla lakás

Eladó Lakás, Budapest 10. ker.

Keresés azonosító alapján: HI-2500875
  • Budapest X.
  • Alapterület: 37 m²
  • Ár: 50 000 000 Ft (130 548 €)
  • Feltöltés dátuma: 2025.11.12.
  •  
Tégla lakás

Eladó Lakás, Budapest 6. ker.

Keresés azonosító alapján: HI-2460221
  • Budapest VI.
  • Alapterület: 36 m²
  • Ár: 79 900 000 Ft (208 616 €)
  • Feltöltés dátuma: 2025.08.10.
  • klímás
Facebook
Blogger
Twitter
Tweets by hasznaltingatla
Flickr