Eladó Lakás, Budapest 10. ker.

Ingatlan azonosító: HI-2562662

Budapest - Budapest X., Tégla lakás


84 900 000 Ft (235 180 €)

  • Hirdetés feladója: Ingatlaniroda
  • Pontos cím: Budapest X.
  • Típus: Eladó
  • Belső irodai azonosító: M327074-5202867
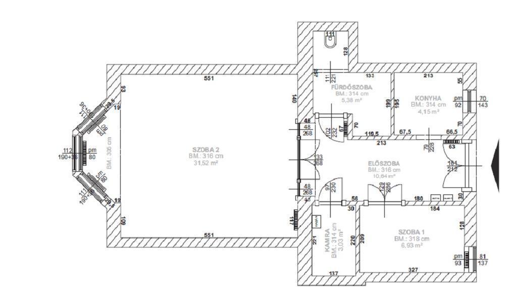
  • Alapterület: 73 m²
  • Építés éve: 1930
  • Egész szobák száma (12 m² felett): 3 db
  • Félszobák száma (6-12 m² között): 0 db
  • Emelet: földszint
  • Ingatlan állapota: felújított
  • Komfort: összkomfortos
  • Fűtés: gáz (konvektor)
  • Lift: nincs
  • Akadálymentesített: nincs
  • Napelem van?: nincs
  • Erkély: nincs
  • Légkondicionáló: nincs
  • Kilátás: udvari
  • A lakás falazata: Tégla
  • Közös költség mértéke: 15000

Leírás

ELADÓ Budapest X. kerületében, Kőbánya-Ligettelek városrészben egy 2024-ben felújított,kiváló műszaki állapotú, 73 nm-es, háromszobás lakás Kőbánya egyik kedvelt kertvárosi részén. Az ingatlan egy belső udvaros, 7 lakásos társasház zárt udvarában található, melyhez rendezett saját kertrész tartozik.A lakásnak két bejárata van. Az egyik bejárati ajtóval szemben van a kertrész. Gyönyörű virágoskert, kiülős terasz alakítható ki. Az épület földszintes. Van lehetőség tetőtér beépítésre, esetünkben kb. 40 négyzetméter. A lakásnak két bejárata van. Az ingatlanhoz tartozik egy 30 nm-es száraz pince. A tulajdoni lap szerint 2 szoba van, ténylegesen egy korábbi átalakítás miatt 3 szobája van. A lakás területe a mérések alapján 78 nm. Az ingatlan az elmúlt időszakban teljes körű szerkezeti felújításon esett át. Teljes talajcsere történt 40 cm mélységig. Szerelőbeton+ GV-4, teknőszigetelés,hő és párazáró rétegrend és új, 8 cm-es aljzatbeton készült. Minden burkolatot kicserélték. A fa nyílászárókat nem cserélték ki, viszont a teljes elektromos hálózat igen. Gázkonvektoros a fűtés, a melegvizet Wi-Fi-s okos villanybojler biztosítja. A társasház műszaki állapota kiváló, folyamatosan karbantartott,tetőfelújítás megtörtént.Kultúrált lakóközösséggel és megtakarítással rendelkezik. Az itt lakók kedves, összetartó emberek. A lakásra vonatkozó közös költség 15 ezer forint, a rezsi költségek sem magasak. Az ingatlan alkalmas az OSP kedvezményes hitel felvételére. Az ingatlan Kőbánya városközpontjához közel,csendes utcában helyezkedik el. A ház előtt a parkolás ingyenes. Kiválóak a közlekedési feltételek. A belváros 10-15 perc alatt elérhető akár busszal,trolival, villamossal. Sőt! A közeli vasútállomásról akár vonattal is. A közelben: iskola, óvoda, bölcsőde, gyógyszertár,orvos, állatorvos művelődési ház, edzőterem, kutyafuttató. Gyakorlatilag mindenkinek tudnám ajánlani. Pároknak, kisgyermekeseknek, idősebbeknek, mozgássérülteknek, stb. Befektetésre is kiválóan alkalmas. Szóval! Ami hátra van: megtekinteni, beleszeretni, megvásárolni! M327074 Az OTP Ingatlanpont, mint egyetlen közvetlen banki hátterű ingatlanközvetítő társaság teljes körű ügyintézéssel áll az eladók és a vevők rendelkezésére! A kínálatunkból választott ingatlan finanszírozásához minősített fogyasztóbarát, piaci és kedvezményes hitel- és lízingkonstrukciókat kínálunk (lakásvásárlási hitel, CSOK plusz, szabad felhasználású hitel, babaváró hitel, céges hitelek, pályázatok, amennyiben az ügyfél és az ingatlan megfelel a feltételeknek). Az adásvételi szerződés megkötéséhez igény szerint megbízható ügyvédi közreműködést biztosítunk, és segítséget nyújtunk az adásvételhez kapcsolódó egyéb ügyek intézéséhez. Ha az új ingatlana megvásárlásához a jelenlegi ingatlanát el kell adnia, abban is szívesen segítünk. Referencia szám: M327074-HI

E-mail küldése a hirdetőnek

Hibás hirdetés bejelentése

Sikeres elküldtük a hiba bejelentést.

Hirdető adatai

Takács Zsuzsanna
E-mail cím: takacs.zsuzsanna@otpip.hu
Telefonszám: +36304953819
OTPip
Hirdetés feladója: Ingatlaniroda
Ingatlaniroda: OTPip
E-mail cím: budapest13.lehelutca@otpip.hu
Telefonszám: +36706136133

Képek



Térkép


Ajánlott ingatlanok

Tégla lakás

Eladó Lakás, Budapest 4. ker.

Keresés azonosító alapján: HI-2554155
  • Budapest IV.
  • Alapterület: 37 m²
  • Ár: 52 700 000 Ft (145 983 €)
  • Feltöltés dátuma: 2026.03.25.
  •  
Tégla lakás

Eladó Lakás, Budapest 5. ker.

Keresés azonosító alapján: HI-2553122
  • Budapest V.
  • Alapterület: 58 m²
  • Ár: 131 152 500 Ft (363 303 €)
  • Feltöltés dátuma: 2026.03.22.
  •  
Tégla lakás

Eladó Lakás, Budapest 8. ker.

Keresés azonosító alapján: HI-2555855
  • Budapest VIII.
  • Alapterület: 60 m²
  • Ár: 99 900 000 Ft (276 731 €)
  • Feltöltés dátuma: 2026.03.30.
  •  
Tégla lakás

Eladó Lakás, Budapest 6. ker.

Keresés azonosító alapján: HI-2553360
  • Budapest VI.
  • Alapterület: 44 m²
  • Ár: 79 200 000 Ft (219 391 €)
  • Feltöltés dátuma: 2026.03.23.
  • klímás
Facebook
Blogger
Twitter
Tweets by hasznaltingatla
Flickr