Eladó Lakás, Budapest 10. ker.

Ingatlan azonosító: HI-2533960

Budapest - Budapest X., Panel lakás


69 900 000 Ft (196 901 €)

  • Hirdetés feladója: Ingatlaniroda
  • Pontos cím: Budapest X.
  • Típus: Eladó
  • Belső irodai azonosító: M320894-5142395
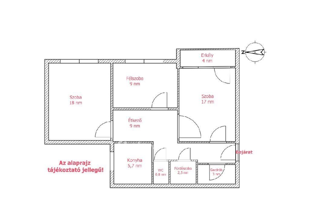
  • Alapterület: 72 m²
  • Építés éve: 1985
  • Egész szobák száma (12 m² felett): 2 db
  • Félszobák száma (6-12 m² között): 1 db
  • Emelet: 4. emelet
  • Ingatlan állapota: közepes állapotú
  • Komfort: összkomfortos
  • Fűtés: egyéb
  • Lift: van
  • Akadálymentesített: nincs
  • Napelem van?: nincs
  • Erkély: van
  • Légkondicionáló: nincs
  • Kilátás: udvari
  • Tájolás: kelet
  • A lakás falazata: Panel
  • Közös költség mértéke: 32200

Leírás

Akadálymentesített, 72 nm-es, erkélyes panel lakás a Hungária körút elején ENGLISH DESCRIPTION BELOW!!! Eladásra kínálunk Budapest egyik kiváló közlekedésű részén, a Hungária körút elején, a Hungária körút és a Salgótarjáni út közelében egy 72 nm-es, 2+1,5 szobás, erkélyes panel lakást egy panelprogramban részt vett, 10 emeletes társasházban. Az ingatlan felújítást igényel, így kiváló lehetőséget kínál azok számára, akik saját elképzeléseik szerint szeretnék kialakítani otthonukat. Elhelyezkedése és alaprajza miatt befektetésnek, kiadásra is ideális, könnyen bérbe adható. Lakás jellemzői: 72 nm alapterület, 2 szoba + 1 félszoba külön étkező, ablakos, elszeparált konyha gardrób / tároló helyiség, erkély műanyag nyílászárók akadálymentesített kialakítás A lakás ablakai nem a körútra néznek, így a frekventált elhelyezkedés ellenére csendes lakókörnyezetet biztosít. Az energetikai tanúsítvány készítése folyamatban van, amint rendelkezésre áll, úgy azzal a hirdetés frissítésre kerül. Társasház: panelprogramban részt vett épület körbekerített, biztonságos ház kamerarendszer gépkocsi-beállási lehetőség rendezett, figyelmes lakóközösség Lokáció és közlekedés: Kiváló infrastruktúra: üzletek, iskolák, szolgáltatások a közelben. Tömegközlekedés szempontjából kiemelkedő: 1-es és 37-es villamos, M2 és M3 metró rövid időn belül elérhető. A környék folyamatosan fejlődik, új irodaházak és szolgáltatások jelennek meg, ami hosszú távon jó értéktartást és befektetési potenciált biztosít. Az ingatlan megfelel az Otthon Start Program (Fix 3% lakáshitel) feltételeinek. Az OTP Ingatlanpont teljes körű ügyintézéssel, stabil jogi és pénzügyi háttérrel segíti a biztonságos adásvételt. ⸻ Barrier-free 72 sqm apartment with balcony at the beginning of Hungária Boulevard For sale in Budapest, near the intersection of Hungária Boulevard and Salgótarjáni Road, a 72 sqm, 2+1.5-room apartment with balcony located in a renovated panel building. The apartment requires renovation, offering an excellent opportunity to create a home tailored to your own needs. Due to its layout and location, it is also ideal for investment or rental purposes. Main features: 72 sqm living area 2 rooms + 1.5 rooms, separate dining area windowed kitchen storage / walk-in closet balcony, plastic windows barrier-free access Windows do not face the main road, providing a quiet living environment despite the central location. Excellent public transport connections (tram lines 1 and 37, M2 and M3 metro lines nearby). Eligible for the Hungarian Home Start Program (fixed 3% mortgage). Az energetikai tanúsítvány készítése folyamatban van, amint rendelkezésre áll, úgy azzal a hirdetés frissítésre kerül. Referencia szám: M320894-HI

E-mail küldése a hirdetőnek

Hibás hirdetés bejelentése

Sikeres elküldtük a hiba bejelentést.

Hirdető adatai

Gregoryan Artur
E-mail cím: artur.gregoryan@otpip.hu
Telefonszám: +36706300162
OTPip
Hirdetés feladója: Ingatlaniroda
Ingatlaniroda: OTPip
E-mail cím: pannonia@otpip.hu
Telefonszám: +36707082439

Képek



Térkép


Ajánlott ingatlanok

Panel lakás

Eladó Lakás, Budapest 3. ker.

Keresés azonosító alapján: HI-2549857
  • Budapest III.
  • Alapterület: 57 m²
  • Ár: 69 500 000 Ft (195 775 €)
  • Feltöltés dátuma: 2026.03.13.
  •  
Panel lakás

Eladó Lakás, Budapest 11. ker.

Keresés azonosító alapján: HI-2556188
  • Budapest XI.
  • Alapterület: 51 m²
  • Ár: 75 900 000 Ft (213 803 €)
  • Feltöltés dátuma: 2026.03.30.
  •  
Panel lakás

Eladó Lakás, Budapest 13. ker.

Keresés azonosító alapján: HI-2564646
  • Budapest XIII.
  • Alapterület: 68 m²
  • Ár: 85 400 000 Ft (240 563 €)
  • Feltöltés dátuma: 2026.04.24.
  •  
Panel lakás

Eladó Lakás, Budapest 10. ker.

Keresés azonosító alapján: HI-2564330
  • Budapest X.
  • Alapterület: 50 m²
  • Ár: 58 500 000 Ft (164 789 €)
  • Feltöltés dátuma: 2026.04.23.
  • klímás
Facebook
Blogger
Twitter
Tweets by hasznaltingatla
Flickr