Eladó lakás, Budapest 12. ker.

Ingatlan azonosító: HI-2487569

Budapest - Budapest XII., Tégla lakás


99 000 000 Ft (253 197 €)

  • Hirdetés feladója: Ingatlaniroda
  • Pontos cím: Budapest XII.
  • Típus: Eladó
  • Belső irodai azonosító: LK057527-5056368
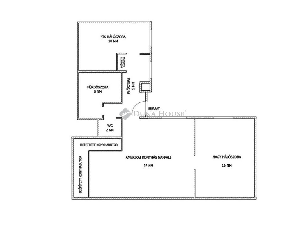
  • Alapterület: 64 m²
  • Építés éve: 1920
  • Egész szobák száma (12 m² felett): 3 db
  • Félszobák száma (6-12 m² között): 0 db
  • Fürdőszobák száma: 1 db
  • Emelet: 2. emelet
  • Ingatlan állapota: felújított
  • Komfort: összkomfortos
  • Fűtés: gáz (cirko)
  • Lift: nincs
  • Akadálymentesített: nincs
  • Napelem van?: nincs
  • Erkély: nincs
  • Légkondicionáló: nincs
  • Tájolás: dél-nyugat
  • A lakás falazata: Tégla

Leírás

Figyelem! Az Otthon Start program kedvező kamatfeltételeivel elérhető otthon! Frissen felújított, DUPLAKOMFORTOS luxuslakás a város szívében - Krisztinaváros gyöngyszeme eladó!Ha egy kompromisszummentes, azonnal költözhető, stílusos otthont keres Budapest egyik legpatinásabb részén, megtalálta! A XII. kerület, Krisztinaváros csendes, mégis kiváló közlekedéssel rendelkező részén kínálunk eladásra egy 67 m²-es, 2. emeleti, amerikai konyhás nappali + 2 hálószobás lakást, amely teljeskörűen és luxus színvonalon lett felújítva. A csendes udvarra néző lakás a nyugodt pihenés szigete a város közepén mégis pár perc sétára található a Déli pályaudvar, metró, villamosok és buszok, így bárhova könnyedén eljuthat. Felújítás, amiben nem volt kompromisszum:Teljes gépészeti és elektromos hálózat cseréje, Ariston kondenzációs kazán - energiatakarékos fűtés, alacsony rezsi. Hő- és hangszigetelt műanyag nyílászárók elektromos, távirányítós redőnyökkel. Modern, gépesített konyha: indukciós főzőlap, elektromos sütő, mosogatógép, szagelszívó. Prémium burkolatok, vízálló laminált padló az egész lakásban. Hűtő-fűtő klíma a maximális kényelemért. Tágas fürdőszoba káddal, modern WC zuhannyal, külön vendég-WC. Az ingatlanban található beépített szekrények és beépített konyhai gépek kötelezően megvásárolandóak. Áruk 13 MFt. Az ingatlanban már kiépített internet és TV szolgáltatás (Telekom) is elérhető így akár már holnap költözhet! A hirdetésben szereplő FIX 3%-os lakáshitel részét képező támogatásokat Magyarország Kormánya nyújtja. Irányár: 99000000 Ft Érdeklődni: Gujdár Zsuzsa 30/425-0224 gujdar.zsuzsa@dh.hu Referencia szám: LK057527

E-mail küldése a hirdetőnek

Hibás hirdetés bejelentése

Sikeres elküldtük a hiba bejelentést.

Hirdető adatai

Gujdár Zsuzsa
E-mail cím: gujdar.zsuzsa@dh.hu
Telefonszám: +36304250224
Duna House
Hirdetés feladója: Ingatlaniroda
Ingatlaniroda: Duna House
E-mail cím: csillaghegy@dh.hu
Telefonszám: +3614370244

Képek



Térkép


Ajánlott ingatlanok

Tégla lakás

Eladó lakás, Budapest 14. ker.

Keresés azonosító alapján: HI-2377310
  • Budapest XIV.
  • Alapterület: 70 m²
  • Ár: 110 000 000 Ft (281 330 €)
  • Feltöltés dátuma: 2025.02.21.
  •  
Tégla lakás

Eladó lakás, Dunakeszi

Keresés azonosító alapján: HI-2487573
  • Dunakeszi
  • Alapterület: 50 m²
  • Ár: 66 300 000 Ft (169 565 €)
  • Feltöltés dátuma: 2025.10.08.
  •  
Tégla lakás

Eladó lakás, Budapest 13. ker.

Keresés azonosító alapján: HI-2420133
  • Budapest XIII.
  • Alapterület: 69 m²
  • Ár: 138 000 000 Ft (352 941 €)
  • Feltöltés dátuma: 2025.05.20.
  •  
Tégla lakás

Eladó lakás, Szentendre

Keresés azonosító alapján: HI-2325487
  • Szentendre
  • Alapterület: 157 m²
  • Ár: 205 000 000 Ft (524 297 €)
  • Feltöltés dátuma: 2024.11.02.
  •  
Facebook
Blogger
Twitter
Tweets by hasznaltingatla
Flickr