Eladó lakás Budapest 12. ker., Svábhegy - Istenhegy

Ingatlan azonosító: HI-2509637

Budapest - Budapest XII., Tégla lakás


138 900 000 Ft (365 526 €)

  • Hirdetés feladója: Ingatlaniroda
  • Pontos cím: Budapest XII.
  • Típus: Eladó
  • Belső irodai azonosító: H510948-5100106
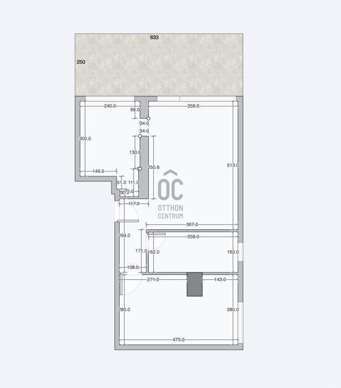
  • Alapterület: 50 m²
  • Építés éve: 1970
  • Egész szobák száma (12 m² felett): 3 db
  • Félszobák száma (6-12 m² között): 0 db
  • Fürdőszobák száma: 1 db
  • Emelet: 3. emelet
  • Ingatlan állapota: felújított
  • Komfort: összkomfortos
  • Fűtés: gáz (cirko)
  • Lift: nincs
  • Akadálymentesített: nincs
  • Napelem van?: nincs
  • Erkély: van
  • Légkondicionáló: van
  • Kilátás: utcai
  • Tájolás: észak-kelet
  • A lakás falazata: Tégla

Leírás

XII. kerület gyönyörű, zöldövezeti részén, 50 m2-es, 3 szobás, 16 m2-es, a városra, Dunára, Parlamentre és a budai hegyekre EXTRA PANORÁMÁS terasszal, teljes körűen felújított, kiváló állapotú lakás! Zsolna utcában eladó egy nettó 50 m2-es, III. emeleti, páratlan, nagy 16 m2 teraszos ingatlan, hangulatos panorámával, ami este még lélegzetelállítóbb. Elosztás: amerikai konyhás nappali, kettő hálószoba, 16m2 terasz, előszoba, fürdőszoba. BRUTÁLIS PANORÁMA! Hármashatár-hegy, Duna, Parlament. Lakás teljeskörűen felújítva kerül átadásra (2026 június), melyben az alábbiak valósulnak meg: -Új ablakok redőnnyel és szúnyoghálóval -Új bejárati és beltéri ajtók - Új villany, víz és fűtési rendszer, burkolatok - Klimatizálás, konyhabútor A lakás bútorozatlanul kerül átadásra. A leendő tulajdonosnak a felújítás részleteivel kapcsolatosan még sok részletbe lehetősége van beleszólni (anyag használat, színek), így az ingatlan teljeskörűen saját ízlés szerint alakítható, ez egy rendkívül páratlan lehetőség. Pincében a lakáshoz egy saját tároló rész található. Élelmiszer üzlet (CBA) és MOL benzinkút az utca végén, szépség szalon, cukrászda, zöldséges, Szent János Kórház a közelben. Az utcában külföldi nyelvű óvoda és iskola. ( British International School, Britannica) Kikapcsolódás - Zugligeti libegő, Normafa. Buda belvárosi része könnyen és gyorsan megközelíthető gépjárművel. 21-es, 21A és 212-es busz árat, fogaskerekű, éjszakai járat 990-es 200m-en belül. Kikapcsolódás - Zugligeti libegő, Normafa. Buda belvárosi része könnyen és gyorsan megközelíthető gépjárművel. Befektetésnek tökéletes, méretei és adottságai miatt szinte azonnal kiadható. Egyedülálló személynek és pároknak is kiváló lehetőség. További információért, illetve megtekintés esetén hívjon bizalommal és csodálja meg élőben a saját szemével a lenyűgöző kilátást és érezze át az otthon hangulatát, melyet az ízlése szerint kiviteleznek Önnek!

E-mail küldése a hirdetőnek

Hibás hirdetés bejelentése

Sikeres elküldtük a hiba bejelentést.

Hirdető adatai

Lukácsi Mária
E-mail cím: lukacsi.maria@oc.hu
Telefonszám: +36 70 461 9686
Otthon Centrum
Hirdetés feladója: Ingatlaniroda
Ingatlaniroda: Otthon Centrum
E-mail cím: krisztina@oc.hu
Telefonszám: +36 1 225 8510

Képek



Térkép


Ajánlott ingatlanok

Tégla lakás

Eladó lakás Budapest 11. ker., Kelenföld

Keresés azonosító alapján: HI-2494389
  • Budapest XI.
  • Alapterület: 84 m²
  • Ár: 129 300 000 Ft (340 263 €)
  • Feltöltés dátuma: 2025.10.29.
  •  
Tégla lakás

Eladó lakás Budapest 6. ker., Belső VI.

Keresés azonosító alapján: HI-2497596
  • Budapest VI.
  • Alapterület: 72 m²
  • Ár: 119 000 000 Ft (313 158 €)
  • Feltöltés dátuma: 2025.11.04.
  •  
Tégla lakás

Eladó lakás Budapest 2. ker., Hárshegy

Keresés azonosító alapján: HI-2442565
  • Budapest II.
  • Alapterület: 98 m²
  • Ár: 206 900 000 Ft (544 474 €)
  • Feltöltés dátuma: 2025.07.09.
  •  
Tégla lakás

Eladó lakás Budapest 3. ker., Rómaifürdő

Keresés azonosító alapján: HI-2503505
  • Budapest III.
  • Alapterület: 59 m²
  • Ár: 94 800 000 Ft (249 474 €)
  • Feltöltés dátuma: 2025.11.20.
  •  
Facebook
Blogger
Twitter
Tweets by hasznaltingatla
Flickr