Eladó lakás, Budapest 13. ker.

Ingatlan azonosító: HI-2429249

Budapest - Budapest XIII., Tégla lakás


134 900 000 Ft (351 302 €)

  • Hirdetés feladója: Ingatlaniroda
  • Pontos cím: Budapest XIII.
  • Típus: Eladó
  • Belső irodai azonosító: LK034304-4964485
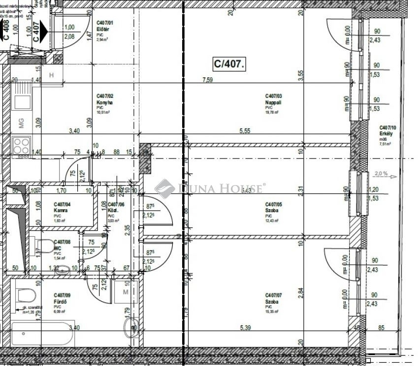
  • Alapterület: 64 m²
  • Építés éve: 2009
  • Egész szobák száma (12 m² felett): 3 db
  • Félszobák száma (6-12 m² között): 0 db
  • Fürdőszobák száma: 1 db
  • Emelet: földszint
  • Ingatlan állapota: felújított
  • Fűtés: egyéb
  • Lift: van
  • Akadálymentesített: nincs
  • Napelem van?: nincs
  • Erkély: van
  • Légkondicionáló: nincs
  • Tájolás: észak-kelet
  • A lakás falazata: Tégla

Leírás

Marina Part – Dunától pár lépésre, azonnal költözhető, magasföldszinti, frissen felújított otthon eladó!Eladó egy 64 nm-es, nappali + 2 külön nyíló szobás, erkélyes gyönyörű lakás Budapest egyik legkedveltebb városrészében, a Marina Parton! A lakás friss, minőségi felújításon esett át, így egy stílusos, igényes otthon várja új tulajdonosát.A társasház gondozott, gyönyörű belső kerttel rendelkezik. A lakás elrendezése praktikus: a két hálószoba külön nyílik, ideális pároknak, kiscsaládosoknak vagy befektetésnek.A minden igényt kielégítő, vadonatúj, gépesített konyha modern készülékekkel felszerelt, így a főzés is élmény lesz.A környék igazi városi oázis, a Duna-part csak pár lépésre, a Marina Parton pedig számos étterem, kávézó és szolgáltatás áll rendelkezésre. A társasházban 24 órás portaszolgálat működik, amely biztonságot és kényelmet nyújt. Opcionálisan teremgarázs is vásárolható az ingatlanhoz.Ritka lehetőség egy exkluzív környezetben – ne maradjon le, hívjon bizalommal a megtekintésért!Stylish, Fully Renovated Apartment in Marina Part - Just Steps from the DanubeDiscover this beautifully renovated 64 sqm higher ground-floor apartment in the prestigious Marina Part neighborhood, one of Budapests most sought-after residential areas.Thoughtfully redesigned with high-quality materials and a keen eye for style, this move-in-ready home offers a blend of comfort, functionality, and modern elegance.Key Features: Spacious living area with abundant natural light Two separate bedrooms for privacy and flexibility Private balcony - perfect for morning coffee or evening relaxationBrand-new, fully equipped kitchen with modern appliances, ideal for cooking enthusiasts It’s a great investment with the area provides high ROI.All around there are developments which makes it a great investment as the value keeps growing year after year.Contact us today to schedule a private viewing! Irányár: 134900000 Ft Érdeklődni: Gujdár Zsuzsa 30/425-0224 gujdar.zsuzsa@dh.hu Referencia szám: LK034304

E-mail küldése a hirdetőnek

Hibás hirdetés bejelentése

Sikeres elküldtük a hiba bejelentést.

Hirdető adatai

Gujdár Zsuzsa
E-mail cím: gujdar.zsuzsa@dh.hu
Telefonszám: +36304250224
Duna House
Hirdetés feladója: Ingatlaniroda
Ingatlaniroda: Duna House
E-mail cím: csillaghegy@dh.hu
Telefonszám: +3614370244

Képek



Térkép


Ajánlott ingatlanok

Tégla lakás

Eladó lakás, Budapest 12. ker.

Keresés azonosító alapján: HI-2500327
  • Budapest XII.
  • Alapterület: 57 m²
  • Ár: 134 900 000 Ft (351 302 €)
  • Feltöltés dátuma: 2025.11.11.
  •  
Tégla lakás

Eladó lakás, Budapest 14. ker.

Keresés azonosító alapján: HI-2470214
  • Budapest XIV.
  • Alapterület: 35 m²
  • Ár: 59 900 000 Ft (155 990 €)
  • Feltöltés dátuma: 2025.09.03.
  •  
Tégla lakás

Eladó lakás, Budapest 13. ker.

Keresés azonosító alapján: HI-2325692
  • Budapest XIII.
  • Alapterület: 136 m²
  • Ár: 199 000 000 Ft (518 229 €)
  • Feltöltés dátuma: 2024.11.02.
  •  
Tégla lakás

Eladó lakás, Budapest 13. ker.

Keresés azonosító alapján: HI-2377365
  • Budapest XIII.
  • Alapterület: 105 m²
  • Ár: 350 000 000 Ft (911 458 €)
  • Feltöltés dátuma: 2025.02.21.
  •  
Facebook
Blogger
Twitter
Tweets by hasznaltingatla
Flickr