Eladó lakás, Budapest 13. ker.

Ingatlan azonosító: HI-2501581

Budapest - Budapest XIII., Csúsztatott zsalus


87 500 000 Ft (229 659 €)

  • Hirdetés feladója: Ingatlaniroda
  • Pontos cím: Budapest XIII.
  • Típus: Eladó
  • Belső irodai azonosító: LK053590-5083791
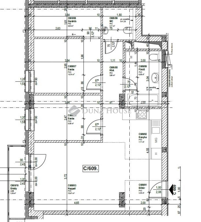
  • Alapterület: 62 m²
  • Építés éve: 1960
  • Egész szobák száma (12 m² felett): 2 db
  • Félszobák száma (6-12 m² között): 0 db
  • Fürdőszobák száma: 1 db
  • Emelet: 3. emelet
  • Ingatlan állapota: jó állapotú
  • Fűtés: egyéb
  • Lift: van
  • Akadálymentesített: nincs
  • Napelem van?: nincs
  • Erkély: van
  • Légkondicionáló: nincs
  • Tájolás: dél

Leírás

Világos terek, nagy erkély, remek lokáció minden, ami egy városi otthonhoz kell! A XIII. kerület egyik legkedveltebb részén, a Göncz Árpád városközpont közelében eladó ez a 61 m²-es, klímás lakás egy 8 emeletes, rendezett, liftes társasház 3. emeletén. Eredetileg 3 szobás, jelenleg 2 szobássá alakított, de egy válaszfal visszaállításával könnyedén újra háromszobás otthonná tehető így tökéletes választás fiatal pároknak, családoknak vagy befektetőknek is. A déli és keleti tájolásnak köszönhetően a lakás egész nap világos és napfényes, a tágas loggia pedig ideális hely a reggeli kávéhoz vagy esti kikapcsolódáshoz. A praktikus alaprajz és a jó állapot gyors beköltözést tesz lehetővé. Főbb jellemzők: 61 m²-es, eredetileg 3 szobás (könnyen visszaalakítható) Napfényes, déli és keleti tájolás Tágas, világos loggia Külön fürdő és WC Kamra és klíma Jó állapotú, rendezett, liftes ház 3. emeleti elhelyezkedés kényelmes, mégis csendes A bútorok megegyezés szerint maradhatnak, igény esetén a lakás kiürítve kerül átadásra. Kiváló lokáció, minden karnyújtásnyira: A környék kivételesen jól ellátott a Göncz Árpád városközpont pár perc séta, ahol megtalálható az M3-as metró, villamos- és buszjáratok, valamint számos irodaház, étterem, kávézó és bevásárlási lehetőség. A Duna-part, a Margitsziget és több zöld park is rövid sétával elérhető, így a városi élet és a természet közelsége egyszerre élvezhető. Ha egy világos, jól elhelyezkedő, értékálló otthont keres, ne hagyja ki ezt a lehetőséget! Érdemes mielőbb megtekinteni, mert az ilyen adottságú lakások gyorsan új gazdára találnak. Amennyiben az ingatlan felkeltette az érdeklődését, keressen bizalommal a hét bármely napján! Jöjjön el, nézze meg, szeressen bele, legyen Ön a a következő lakója! Érd: Kulcsár Imola, tel: +36/20/240 4146, e-mail: kulcsar.imola@dh.hu Az ajánlatom megfelelne az elvárásainak, de nem rendelkezik a kiválasztott ingatlan teljes vételárával!? Hitelre történő vásárlás esetén Bankfüggetlen Credipass Pénzügyi Szakértőnk kötelezettség nélkül megtalálja az Ön számára legkedvezőbb megoldást! A tanácsadás ingyenes! Referencia szám: LK053590

E-mail küldése a hirdetőnek

Hibás hirdetés bejelentése

Sikeres elküldtük a hiba bejelentést.

Hirdető adatai

Tivadarné Kulcsár Imola
E-mail cím: kulcsar.imola@dh.hu
Telefonszám: +36202404146
Duna House
Hirdetés feladója: Ingatlaniroda
Ingatlaniroda: Duna House
E-mail cím: gyomro@dh.hu
Telefonszám: +3629263520

Képek



Térkép


Ajánlott ingatlanok

Csúsztatott zsalus

Eladó lakás, Budapest 18. ker.

Keresés azonosító alapján: HI-2506323
  • Budapest XVIII.
  • Alapterület: 67 m²
  • Ár: 69 900 000 Ft (183 465 €)
  • Feltöltés dátuma: 2025.11.26.
  •  
Csúsztatott zsalus

Eladó lakás, Budapest 14. ker.

Keresés azonosító alapján: HI-2506329
  • Budapest XIV.
  • Alapterület: 67 m²
  • Ár: 75 000 000 Ft (196 850 €)
  • Feltöltés dátuma: 2025.11.26.
  •  
Tégla lakás

Eladó lakás, Monor

Keresés azonosító alapján: HI-2453532
  • Monor
  • Alapterület: 51 m²
  • Ár: 56 900 000 Ft (149 344 €)
  • Feltöltés dátuma: 2025.08.02.
  •  
Panel lakás

Eladó lakás, Budapest 18. ker.

Keresés azonosító alapján: HI-2464018
  • Budapest XVIII.
  • Alapterület: 60 m²
  • Ár: 55 900 000 Ft (146 719 €)
  • Feltöltés dátuma: 2025.08.20.
  •  
Facebook
Blogger
Twitter
Tweets by hasznaltingatla
Flickr