Eladó Lakás, Budapest 13. ker.

Ingatlan azonosító: HI-2504129

Budapest - Budapest XIII., Tégla lakás


88 000 000 Ft (229 167 €)

  • Hirdetés feladója: Ingatlaniroda
  • Pontos cím: Budapest XIII.
  • Típus: Eladó
  • Belső irodai azonosító: M317680-5091318
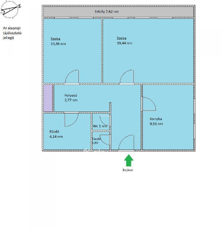
  • Alapterület: 60 m²
  • Építés éve: 1953
  • Egész szobák száma (12 m² felett): 2 db
  • Félszobák száma (6-12 m² között): 0 db
  • Emelet: 2. emelet
  • Ingatlan állapota: jó állapotú
  • Komfort: összkomfortos
  • Fűtés: gáz (cirko)
  • Lift: nincs
  • Akadálymentesített: nincs
  • Napelem van?: nincs
  • Erkély: van
  • Légkondicionáló: nincs
  • Kilátás: udvari
  • A lakás falazata: Tégla
  • Közös költség mértéke: 25000

Leírás

ELADÓ XIII. KERÜLETI LAKÁS - NAGY ERKÉLY, ZÁRT LAKÓPARK, PARKOLÓ!!! Ha már unod a kompromisszumokat és szeretnél egy zárt, biztonságos lakóparkban élni, rád vár ez a 60 nm-es világos, frissen festett, azonnal költözhető lakás. Gyalog és autóval is kényelmes a bejutás, a bejáratot elektromos kapu őrzi. Miért fogod imádni? - 60 nm jelenleg két szobás, de könnyes három szobássá alakítható - Óriási erkély- reggeli kávé, baráti fröccsözés - Vadiúj sarokkád- hogy a fürdőszoba wellness legyen - Műanyag nyílászárók, nagy ablakok- jó hőszigetelés - Eredeti fa parketta, frissen felújítva - karakter és elegancia egyben - 2019-ben cserélt kondenzációs gázkazán - új, modern és takarékos - Zárt saját tároló - bicikli, bőrönd, karácsonyi díszek - Felszíni kocsibeálló - nem kell többé parkolóhelyet vadászni, ÉS IGEN, BENNE VAN AZ ÁRBAN!!!! - Tehermentes, 1/1 tulajdon, üres, azonnal költözhető Várom hívását a hét minden napján 9-20 h között, jöjjön és nézzük meg együtt a leendő otthonát. Ügyfeleink részére teljes banki és jogi háttérrel állunk rendelkezésre.

E-mail küldése a hirdetőnek

Hibás hirdetés bejelentése

Sikeres elküldtük a hiba bejelentést.

Hirdető adatai

Szalontai Zsuzsanna
E-mail cím: zsuzsanna.szalontai@otpip.hu
Telefonszám: +36-70-355-0393
OTPip
Hirdetés feladója: Ingatlaniroda
Ingatlaniroda: OTPip
E-mail cím: szepvolgyi@otpip.hu
Telefonszám: +3613260273

Képek



Térkép


Ajánlott ingatlanok

Tégla lakás

Eladó Lakás, Budapest 6. ker.

Keresés azonosító alapján: HI-2498623
  • Budapest VI.
  • Alapterület: 71 m²
  • Ár: 99 800 000 Ft (259 896 €)
  • Feltöltés dátuma: 2025.11.05.
  •  
Tégla lakás

Eladó Lakás, Budapest 9. ker.

Keresés azonosító alapján: HI-2467778
  • Budapest IX.
  • Alapterület: 77 m²
  • Ár: 95 000 000 Ft (247 396 €)
  • Feltöltés dátuma: 2025.08.31.
  •  
Tégla lakás

Eladó Lakás, Budapest 11. ker.

Keresés azonosító alapján: HI-2479805
  • Budapest XI.
  • Alapterület: 34 m²
  • Ár: 52 900 000 Ft (137 760 €)
  • Feltöltés dátuma: 2025.09.24.
  •  
Tégla lakás

Eladó Lakás, Budapest 7. ker.

Keresés azonosító alapján: HI-2432778
  • Budapest VII. Rákóczi út
  • Alapterület: 90 m²
  • Ár: 164 990 000 Ft (429 661 €)
  • Feltöltés dátuma: 2025.06.18.
  •  
Facebook
Blogger
Twitter
Tweets by hasznaltingatla
Flickr