Eladó lakás, Budapest 13. ker.

Ingatlan azonosító: HI-2494399

Budapest - Budapest XIII., Tégla lakás


93 000 000 Ft (242 188 €)

  • Hirdetés feladója: Ingatlaniroda
  • Pontos cím: Budapest XIII. Kucsma utca
  • Típus: Eladó
  • Belső irodai azonosító: LK030427-5069237
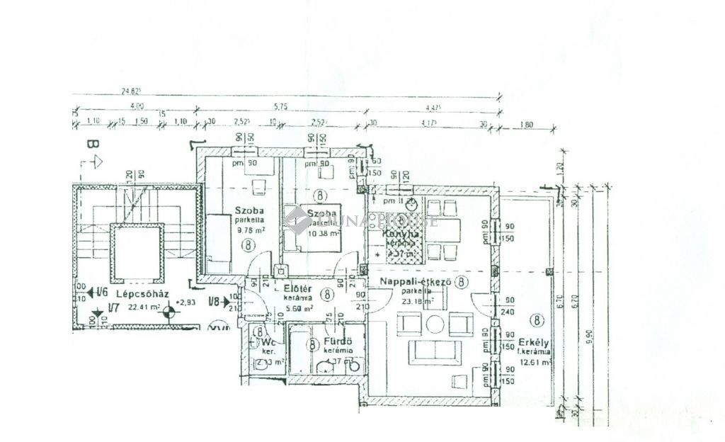
  • Alapterület: 62 m²
  • Építés éve: 2007
  • Egész szobák száma (12 m² felett): 3 db
  • Félszobák száma (6-12 m² között): 0 db
  • Fürdőszobák száma: 1 db
  • Ingatlan állapota: jó állapotú
  • Komfort: összkomfortos
  • Fűtés: gáz (cirko)
  • Lift: van
  • Akadálymentesített: nincs
  • Napelem van?: nincs
  • Erkély: van
  • Légkondicionáló: van
  • Tájolás: dél-kelet
  • A lakás falazata: Tégla

Leírás

KIEMELT AJÁNLAT CSAK NÁLUNK! Kucsma utcában eladó egy 59,8 nm-es, 1+2 szobás jó állapotú lakás 12,61 nm-es erkéllyel. ( Tulajdoni lapon 62 nm.) A ház 2007-ben épült, csöndes, nyugodt környéken mégis kiváló közlekedéssel. A lakás kiváló elosztású, kényelmes előszobával, külön, nem a nappaliból nyíló hálószobákkal, külön kialakítású a fürdő és a wc, valamint hatalmas erkéllyel. Az ablakokon redőny és szúnyogháló, hűtő klíma a nappaliban és cirkó fűtéses. A burkolatok, szaniterek, konyhabútor az eredetiek. A közlekedés kiváló, a közelben a 30, 30A buszok és a 14-es villamos. A lakás tehermentes, jelenleg bérlők lakják, akik szívesen visszabérelnék. A nappaliban lévő gardróbszekrény, a konyhabútor és a klíma a vételár része. A lakáshoz tartozik és kötelezően megvásárolandó egy teremgarázs beálló + 7.000.000,-Ft és egy 5,16 nm-es tároló + 5.000.000,-Ft, összesen 105.000.000,-Ft! Befektetésnek és otthonnak is tökéletes választás! Amennyiben az ingatlan megfelelne az elvárásainak de nem rendelkezik a teljes vételárral? Ebben az esetben a CREDIPASS munkatársai kötelezettség- és díjmentes tanácsadással állnak Ügyfeleink rendelkezésére. Használja ki a jelenleg még érvényben lévő kedvező kamatozású hiteleket, CSOK-ot, illetékkedvezményt! Hétvégén is várom megtisztelő hívását, abban az esetben is ha csak hitelre lenne szüksége, Várom hívását, ha még el kell adnia ahhoz, hogy vásárolni tudjon! Várom megtisztelő hívását: Plachy Zsuzsa 30-8695401 Referencia szám: LK030427

E-mail küldése a hirdetőnek

Hibás hirdetés bejelentése

Sikeres elküldtük a hiba bejelentést.

Hirdető adatai

Plachy Zsuzsa
E-mail cím: plachy.zsuzsa@dh.hu
Telefonszám: +36308695401
Duna House
Hirdetés feladója: Ingatlaniroda
Ingatlaniroda: Duna House
E-mail cím: marvany@dh.hu
Telefonszám: +3616102533

Képek



Térkép


Ajánlott ingatlanok

Tégla lakás

Eladó lakás, Budapest 7. ker.

Keresés azonosító alapján: HI-2475341
  • Budapest VII. Wesselényi utca
  • Alapterület: 47 m²
  • Ár: 79 900 000 Ft (208 073 €)
  • Feltöltés dátuma: 2025.09.18.
  • klímás
Tégla lakás

Eladó lakás, Budapest 14. ker. Hungária krt

Keresés azonosító alapján: HI-2486745
  • Budapest XIV. Hungária körút
  • Alapterület: 105 m²
  • Ár: 99 900 000 Ft (260 156 €)
  • Feltöltés dátuma: 2025.10.07.
  • klímás
Tégla lakás

Eladó felújított 45 m2-es lakás, Budapest 13. ker.

Keresés azonosító alapján: HI-2459454
  • Budapest XIII. Visegrádi utca
  • Alapterület: 45 m²
  • Ár: 77 900 000 Ft (202 865 €)
  • Feltöltés dátuma: 2025.08.08.
  •  
Tégla lakás

Eladó lakás, Budapest 13. ker. Béke tér közelében

Keresés azonosító alapján: HI-2493381
  • Budapest XIII. Kartács utca
  • Alapterület: 41 m²
  • Ár: 52 900 000 Ft (137 760 €)
  • Feltöltés dátuma: 2025.10.24.
  •  
Facebook
Blogger
Twitter
Tweets by hasznaltingatla
Flickr