Eladó Lakás, Budapest 13. ker.

Ingatlan azonosító: HI-2453826

Budapest - Budapest XIII., Panel lakás


69 990 000 Ft (178 546 €)

  • Hirdetés feladója: Ingatlaniroda
  • Pontos cím: Budapest XIII.
  • Típus: Eladó
  • Belső irodai azonosító: M309490-5003202
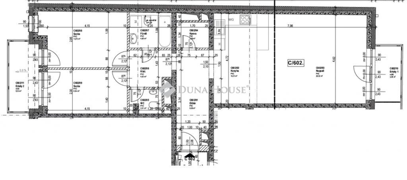
  • Alapterület: 57 m²
  • Építés éve: 1980
  • Egész szobák száma (12 m² felett): 1 db
  • Félszobák száma (6-12 m² között): 2 db
  • Emelet: földszint
  • Ingatlan állapota: jó állapotú
  • Komfort: összkomfortos
  • Fűtés: egyéb
  • Lift: van
  • Akadálymentesített: nincs
  • Napelem van?: nincs
  • Erkély: nincs
  • Légkondicionáló: nincs
  • Kilátás: utcai
  • Tájolás: nyugat
  • A lakás falazata: Panel
  • Közös költség mértéke: 12467

Leírás

!!! ENGLISH DESCRIPTION BELOW !!! Tiszta, rendezett panellakás eladó Angyalföld közkedvelt részén Eladó egy jó állapotú, földszinti, 1+2 félszobás lakás a XIII. kerületben, Angyalföldön, a Madarász Viktor utcában. A lakás tiszta, rendezett, azonnal költözhető – mindössze egy tisztasági festés lehet szükséges. A szobák laminált parkettásak, a többi helyiség csempézett. Az ablakokat korszerű műanyag nyílászárókra cserélték, redőnnyel és szúnyoghálóval felszerelve. A villamoshálózat cseréje kb. 5 éve történt meg. A társasház részt vett a panelprogramban, tiszta, rendezett, kulturált környezetet kínál. A lakás megegyezés szerint a benne található bútorokkal és berendezési tárgyakkal együtt is eladó, így valóban csak költöznie kell! Tiszta, tehermentes, 1/1-es tulajdon, rövid határidővel birtokba vehető. Környék: A lakótelep csendes, rendezett, zöldövezeti hangulatú. A közelben park, játszótér, üzletek, óvoda, iskola, szépségszalon és minden szükséges infrastruktúra megtalálható. Kiváló közlekedési kapcsolatok autóval és tömegközlekedéssel egyaránt. Keressen bizalommal, hétvégén is elérhető vagyok! ⸻ Well-maintained ground floor apartment for sale in Angyalföld, District 13 An inviting 1+2 half-room apartment is for sale on the ground floor of a tidy panel building in Madarász Viktor Street, District 13 (Angyalföld). The flat is in clean, well-kept condition and move-in ready—only a fresh coat of paint might be required. The rooms feature laminated flooring, while other areas are tiled. Windows have been replaced with modern plastic frames and are equipped with shutters and mosquito nets. Electrical wiring was renewed approx. 5 years ago. The building participated in the panel renovation program and offers a neat, well-maintained environment. The apartment can be sold with its furniture and equipment by agreement, making moving in truly effortless. Clear title, privately owned (1/1), and ready for immediate occupancy. Location: The area offers excellent infrastructure: a renovated green park, shops, kindergarten, school, and beauty salon nearby. Public transport and car access are both convenient. Feel free to contact me—I’m available on weekends as well! Referencia szám: M309490-HI

E-mail küldése a hirdetőnek

Hibás hirdetés bejelentése

Sikeres elküldtük a hiba bejelentést.

Hirdető adatai

Gregoryan Artur
E-mail cím: artur.gregoryan@otpip.hu
Telefonszám: +36706300162
OTPip
Hirdetés feladója: Ingatlaniroda
Ingatlaniroda: OTPip
E-mail cím: pannonia@otpip.hu
Telefonszám: +36-70-708-2439

Képek



Térkép


Ajánlott ingatlanok

Panel lakás

Eladó Lakás, Budapest 13. ker.

Keresés azonosító alapján: HI-2476779
  • Budapest XIII.
  • Alapterület: 68 m²
  • Ár: 86 900 000 Ft (221 684 €)
  • Feltöltés dátuma: 2025.09.19.
  • klímás
Panel lakás

Eladó Lakás, Budapest 14. ker.

Keresés azonosító alapján: HI-2477730
  • Budapest XIV.
  • Alapterület: 55 m²
  • Ár: 65 000 000 Ft (165 816 €)
  • Feltöltés dátuma: 2025.09.21.
  •  
Panel lakás

Eladó Lakás, Budapest 13. ker.

Keresés azonosító alapján: HI-2467502
  • Budapest XIII.
  • Alapterület: 50 m²
  • Ár: 56 900 000 Ft (145 153 €)
  • Feltöltés dátuma: 2025.08.30.
  •  
Panel lakás

Eladó Lakás, Budapest 3. ker.

Keresés azonosító alapján: HI-2485448
  • Budapest III.
  • Alapterület: 50 m²
  • Ár: 73 800 000 Ft (188 265 €)
  • Feltöltés dátuma: 2025.10.03.
  •  
Facebook
Blogger
Twitter
Tweets by hasznaltingatla
Flickr