Eladó lakás Budapest 13. ker., Újlipótváros

Ingatlan azonosító: HI-2505857

Budapest - Budapest XIII., Tégla lakás


99 000 000 Ft (259 843 €)

  • Hirdetés feladója: Ingatlaniroda
  • Pontos cím: Budapest XIII.
  • Típus: Eladó
  • Belső irodai azonosító: H510600-5093283
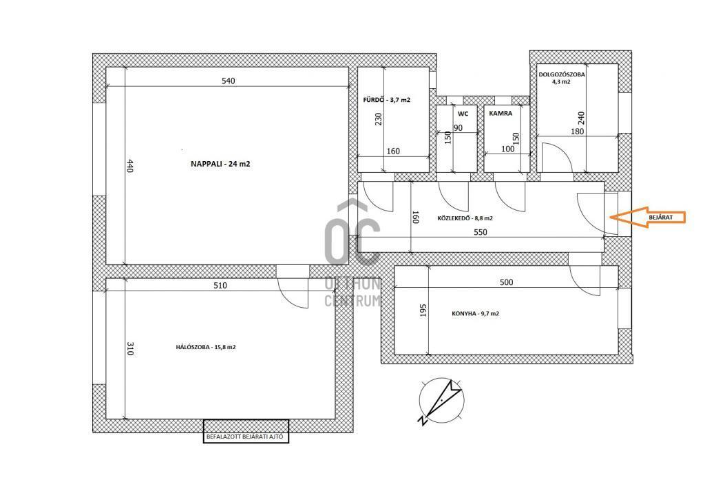
  • Alapterület: 52 m²
  • Építés éve: 1950
  • Egész szobák száma (12 m² felett): 2 db
  • Félszobák száma (6-12 m² között): 0 db
  • Fürdőszobák száma: 1 db
  • Ingatlan állapota: felújított
  • Fűtés: elektromos
  • Lift: van
  • Akadálymentesített: nincs
  • Napelem van?: nincs
  • Erkély: nincs
  • Légkondicionáló: nincs
  • Kilátás: udvari
  • Tájolás: dél-nyugat
  • A lakás falazata: Tégla

Leírás

Mitől különleges ez az otthon? Ez a lakás tökéletes választás első közös otthonnak, fiatal párnak vagy kisgyermekkel élő családnak, akik a modern városi életet keresik. A teljes körű felújítás minden részlete szakember bevonásával valósult meg: a komfort, a dizájn és a tartósság egyszerre kapott hangsúlyt. Frissen, prémium minőségben felújított tér – minden burkolat, bútor és gép vadonatúj, még senki nem használta. Átgondolt, praktikus elrendezés – tágas nappali amerikai konyhával, két külön nyíló hálószoba, modern fürdőszoba. Csendes, udvari fekvés – tökéletes pihenés a város pezsgése mellett. Modern technológiák minden helyiségben Okos fűtés, hűtő-fűtő klíma, elektromos padlófűtés, wifi-ről vezérelhető bojler – minden berendezés programozható, távolról is irányítható. Energiatakarékos megoldások Új, háromrétegű hő- és hangszigetelt nyílászárók, korszerű elektromos fűtőpanelek. Stílusos, gépesített amerikai konyha Beépített konyhabútor gránit mosogatóval, csendes páraelszívóval, prémium gépekkel. Beépített tárolók Modern gardróbrendszerek és praktikus előszobabútorok segítik a rendezett otthon kialakítását. Saját, zárható pincei tároló Sportfelszerelésnek, babakocsinak, csomagoknak – mindig jól jön a plusz hely. A felújítás minden lépése dokumentált, fázisfotókkal igazolt. Újlipótváros: rendezett utcák, kávézók, parkok, kulturális helyszínek és minden, ami a lendületes, mégis kényelmes városi élethez kell. A környéken minden pillanatok alatt elérhető – a metró, a bevásárlási lehetőségek, a Szent István park, sőt még a Margitsziget is csupán egy kellemes séta. Ideális választás mindenkinek, aki szeret sétatávolságon belül élni mindenhez, amitől igazán élhető a város. A lakás egy hangulatos, századelős épületben található, ahol a történelem és a modern kényelem tökéletesen megfér egymás mellett. A ház lakóközössége barátságos, a közös felújítások folyamatosan zajlanak, a társas ház pénzügyileg rendezett, tartozásmentes. Zárt lépcsőház vezet, a felsőbb szintek kényelmesen, lifttel közelíthetők meg. A környezet nyugodt, a belső udvarnak köszönhetően pedig a forgalom zaja sem zavarja a mindennapokat. A lakás per- és tehermentes, elővásárlási jog nincs. A beépített bútorok és lámpák a vételár részét képezik, a teljes berendezés pedig külön megállapodással elérhető – így akár teljesen kész, kulcsrakész otthonba költözhetsz. Szeretnéd megnézni személyesen is? Szívesen mutatom bármelyik nap – ez a lakás gyorsan belopja magát a szívedbe.

E-mail küldése a hirdetőnek

Hibás hirdetés bejelentése

Sikeres elküldtük a hiba bejelentést.

Hirdető adatai

Terék Ádám
E-mail cím: terek.adam@oc.hu
Telefonszám: +36 70 412 3681
Otthon Centrum
Hirdetés feladója: Ingatlaniroda
Ingatlaniroda: Otthon Centrum
E-mail cím: hild@oc.hu
Telefonszám: +36 1 411 0808

Képek



Térkép


Ajánlott ingatlanok

Tégla lakás

Eladó lakás Budapest 9. ker., Rehabilitációs terület

Keresés azonosító alapján: HI-2510755
  • Budapest IX.
  • Alapterület: 120 m²
  • Ár: 210 000 000 Ft (551 181 €)
  • Feltöltés dátuma: 2025.12.09.
  •  
Tégla lakás

Eladó lakás Budapest 8. ker., Corvin negyed

Keresés azonosító alapján: HI-2500973
  • Budapest VIII.
  • Alapterület: 75 m²
  • Ár: 118 000 000 Ft (309 711 €)
  • Feltöltés dátuma: 2025.11.12.
  •  
Tégla lakás

Eladó lakás Budapest 14. ker., Alsórákos

Keresés azonosító alapján: HI-2501556
  • Budapest XIV.
  • Alapterület: 140 m²
  • Ár: 159 900 000 Ft (419 685 €)
  • Feltöltés dátuma: 2025.11.13.
  •  
Tégla lakás

Eladó lakás Budapest 13. ker., Lőportárdűlő

Keresés azonosító alapján: HI-2509598
  • Budapest XIII.
  • Alapterület: 46 m²
  • Ár: 84 900 000 Ft (222 835 €)
  • Feltöltés dátuma: 2025.12.04.
  •  
Facebook
Blogger
Twitter
Tweets by hasznaltingatla
Flickr