Eladó lakás, Budapest 14. ker.

Ingatlan azonosító: HI-2485512

Budapest - Budapest XIV., Új építésű lakás


144 577 500 Ft (372 622 €)

  • Hirdetés feladója: Ingatlaniroda
  • Pontos cím: Budapest XIV.
  • Típus: Eladó
  • Belső irodai azonosító: PR050693/LK/23077-5048910
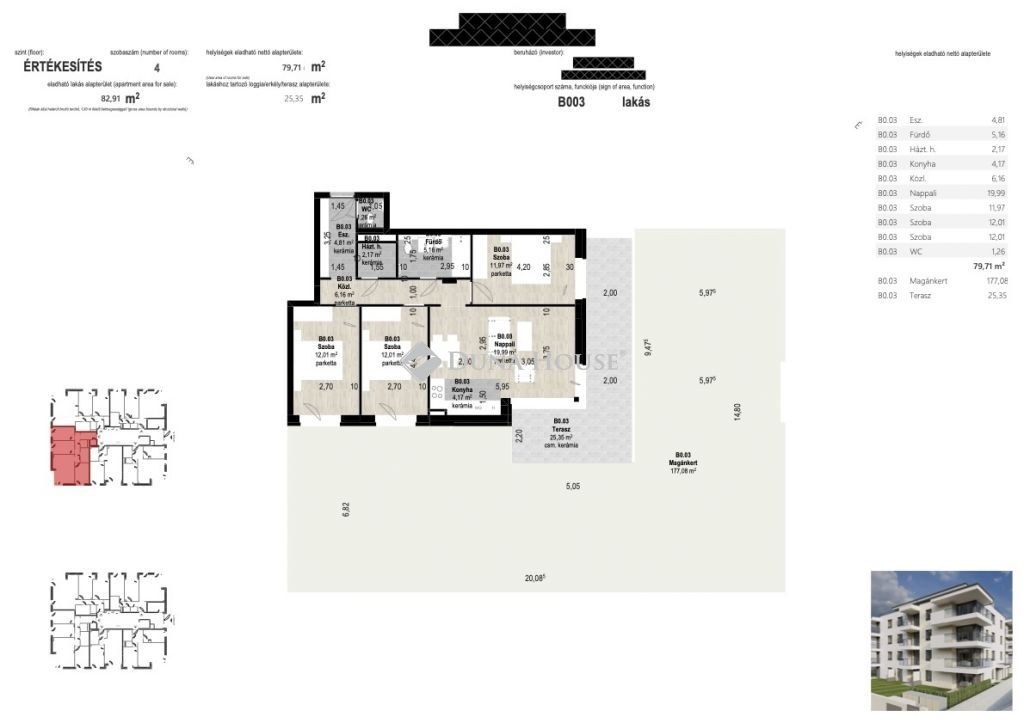
  • Alapterület: 135 m²
  • Építés éve: 2026
  • Egész szobák száma (12 m² felett): 4 db
  • Félszobák száma (6-12 m² között): 0 db
  • Fürdőszobák száma: 1 db
  • Emelet: földszint
  • Ingatlan állapota: új építésű
  • Fűtés: egyéb
  • Lift: van
  • Akadálymentesített: nincs
  • Napelem van?: nincs
  • Erkély: van
  • Légkondicionáló: nincs
  • Tájolás: kelet
  • A lakás falazata: Tégla

Leírás

ÚJ ÉPÍTÉSŰ OTTHONOK ZUGLÓ SZÍVÉBEN ELÉRHETŐ ÁRON.MÁR CSAK NÉHÁNY LAKÁS ELADÓ!FEJLETT INFRASTRUKTÚRA, KÖZLEKEDÉS, SZOLGÁLTATÁSOK.Kedves Érdeklődő!Szeretne egy ÉRTÉKÁLLÓ otthont, mely MODERN, közel van hozzá a BELVÁROS és természetközeli, KERTVÁROSI hangulatba térhet haza?Mert akkor figyeljen, ÖNNEK szól a beruházói ajánlatom. Itt megtalálja álmai otthonát. Budapest 14. kerületében, ZUGLÓ kedvelt városrészében, az Uzsoki utcában nyugodt lakókörnyezetet biztosító, egy CSENDES, fákkal szegélyezett utcában 3155 nm-es telken épülő projekt 2 különálló épületében 2026. márciusi átadással PRÉMIUM minőségben 4-4 szinten, 22-22 lakásos UNIKÁLIS, liftes társasházban pillanatnyilag 32 db változatos alapterületekkel, 45-80 nm-ig NAPFÉNYES, erkélyes vagy teraszos és kertkapcsolatos, hőszivattyú fűtésrendszerű, ÚJ, zöldövezeti lakásokat kínálok megvételre minden korosztály számára.Ajánlom befektetők részére, a földszintes lakások vállalkozói tevékenység céljából KIVÁLÓAN hasznosíthatók. Fizetési ütemezés kedvező.Átadás: 2026. március 31.A mélygarázsban saját autóbeálló hely vásárolható .Kerékpár tároló: 250 000.- FtKét épületből álló modern társasház :- kimagasló műszaki tartalommal FUNKCIONÁLIS, LIFTES lakások- mélygarázs, földszint + 3 emelet+ penthouse kialakítással épül- minden szinten 5 db, 45nm-től egészen 80 nm-ig változatos területű, világos lakások erkéllyel, terasszal vagy kertkapcsolattal lettek kialakítva.Kínálatunkban : N+1 szoba vagy N+2 szoba vagy N+3 szoba elosztással érhetők el lakások- levegős hőszivattyús rendszerrel működtetett mennyezeti hűtés-fűtés biztosítja az otthon komfortját, mely egyedi hőmennyiségmérővel van ellátva. A lakások tulajdonosai ALACSONY fenntartási költséggel számolhatnak.- a homlokzati nyílászárók 3 rétegű hőszigetelt üvegezéssel gyártottak- beépített elektromos redőny- a két társasház közötti belső udvarban gondosan megtervezett ZÖLD KERT kap helyetProjekt:- modern, unikális homlokzat, magas minőségű kivitelezés- modern, kimagasló műszaki felszereltséggel rendelkező lakások- modern technológia: hőszivattyús fűtésrendszer, alacsony fenntartási költségek- 3155 nm-es telken 2026. márciusi átadással, két különálló épületben, PRÉMIUM minőségben 4-4 szinten, 22-22 lakásos UNIKÁLIS, liftes társasházban pillanatnyilag 32 db változatos alapterületű 45-80 nm-ig lakások kerültek kialakításra- vasbeton pillérvázas szerkezet monolit vasbeton födémmel tartószerkezeti tervek szerint- külső szerkezeti falak 25 cm vastag Porotherm NF téglából, 15 cm dryvit hőszigeteléssel.- tájépítész által tervezett zöld kert, automata öntözőrendszer- mélygarázsban autó beállóhely és kerékpártároló vásárolható- elektromos autótöltő- modern, kényelmes, értékálló otthonok minden korosztály számára- városi infrastruktúra előnyei- CSOK- 5 % ÁFALokáció:- nyugodt, zöld környezet- a Városliget 10 perc séta távolságra van- a város minden pontja könnyedén elérhető tömegközlekedési eszközökkel: metró, villamos, busz, troli, vonat, autópálya- oktatási intézmények- vásárlási és szórakozási lehetőségekAmennyiben az ingatlanvásárláshoz hitelre van szüksége, hiteltanácsadónk ingyenes tájékoztatja a piacon található konstrukciók közül a legoptimálisabb lehetőségekről.Érdeklődjön még ma, várom megtisztelő hívását..ÚJ ÉPÍTÉSŰ OTTHONOK ZUGLÓ SZÍVÉBEN ELÉRHETŐ ÁRON.FEJLETT INFRASTRUKTÚRA, KÖZLEKEDÉS, SZOLGÁLTATÁSOK.Kedves Érdeklődő!Szeretne egy ÉRTÉKÁLLÓ otthont, mely MODERN, közel van hozzá a BELVÁROS és természetközeli, KERTVÁROSI hangulatba térhet haza?Mert akkor figyeljen, ÖNNEK szól a beruházói ajánlatom. Itt megtalálja álmai otthonát. Az értékesítés elindult.Budapest 14. kerületében, ZUGLÓ kedvelt városrészében, az Uzsoki utcában nyugodt lakókörnyezetet biztosító, egy CSENDES, fákkal szegélyezett utcában 3155 nm-es telken épülő projekt 2 különálló épületében 2026. márciusi átadással PRÉMIUM minőségben 4-4 szinten, 22-22 lakásos UNIKÁLIS, liftes társasházban pillanatnyilag 32 db változatos alapterületekkel, 45-80 nm-ig NAPFÉNYES, erkélyes vagy teraszos és kertkapcsolatos, hőszivattyú fűtésrendszerű, ÚJ, zöldövezeti lakásokat kínálok megvételre minden korosztály számára.Ajánlom befektetők részére, a földszintes lakások vállalkozói tevékenység céljából KIVÁLÓAN hasznosíthatók. Fizetési ütemezés kedvező.Átadás: 2026. március 31.A mélygarázsban saját autóbeálló helyek: 6 millió Ft és 7,5 millió Ft áron vásárolható meg.Kerékpár tároló: 250 000.- FtKét épületből álló modern társasház :- kimagasló műszaki tartalommal FUNKCIONÁLIS, LIFTES lakások- mélygarázs, földszint + 3 emelet+ penthouse kialakítással épül- minden szinten 5 db, 45nm-től egészen 80 nm-ig változatos területű, világos lakások erkéllyel, terasszal vagy kertkapcsolattal lettek kialakítva.Kínálatunkban : N+1 szoba vagy N+2 szoba vagy N+3 szoba elosztással érhetők el lakások- levegős hőszivattyús rendszerrel működtetett mennyezeti hűtés-fűtés és padlófűtés biztosítja az otthon komfortját, mely egyedi hőmennyiségmérővel van ellátva. A lakások tulajdonosai ALACSONY fenntartási költséggel számolhatnak.- a homlokzati nyílászárók 3 rétegű hőszigetelt üvegezéssel gyártottak- beépített elektromos redőny- a két társasház közötti belső udvarban gondosan megtervezett ZÖLD KERT kap helyetProjekt:- modern, unikális homlokzat, magas minőségű kivitelezés- modern, kimagasló műszaki felszereltséggel rendelkező lakások- modern technológia: hőszivattyús fűtésrendszer, alacsony fenntartási költségek- 3155 nm-es telken 2026. márciusi átadással, két különálló épületben, PRÉMIUM minőségben 4-4 szinten, 22-22 lakásos UNIKÁLIS, liftes társasházban pillanatnyilag 32 db változatos alapterületű 45-80 nm-ig lakások kerültek kialakításra- vasbeton pillérvázas szerkezet monolit vasbeton födémmel tartószerkezeti tervek szerint- külső szerkezeti falak 25 cm vastag Porotherm NF téglából, 15 cm dryvit hőszigeteléssel.- tájépítész által tervezett zöld kert, automata öntözőrendszer- mélygarázsban autó beállóhely és kerékpártároló vásárolható- elektromos autótöltő- modern, kényelmes, értékálló otthonok minden korosztály számára- városi infrastruktúra előnyei- CSOK- 5 % ÁfaLokáció:- nyugodt, zöld környezet- a Városliget 10 perc séta távolságra van- a város minden pontja könnyedén elérhető tömegközlekedési eszközökkel: metró, villamos, busz, troli, vonat, autópálya- oktatási intézmények- vásárlási és szórakozási lehetőségekAmennyiben az ingatlanvásárláshoz hitelre van szüksége, hiteltanácsadónk ingyenes tájékoztatja a piacon található konstrukciók közül a legoptimálisabb lehetőségekről.Érdeklődjön még ma, várom megtisztelő hívását. Referencia szám: PR050693/LK/23077

E-mail küldése a hirdetőnek

Hibás hirdetés bejelentése

Sikeres elküldtük a hiba bejelentést.

Hirdető adatai

Kolcsár Gyöngyi
E-mail cím: kolcsar.gyongyi@dh.hu
Telefonszám: +36704333580
Duna House
Hirdetés feladója: Ingatlaniroda
Ingatlaniroda: Duna House
E-mail cím: godollo@dh.hu
Telefonszám: +3628614646

Képek



Térkép


Ajánlott ingatlanok

Új építésű lakás

Eladó lakás, Budapest 14. ker.

Keresés azonosító alapján: HI-2485481
  • Budapest XIV.
  • Alapterület: 142 m²
  • Ár: 151 165 000 Ft (389 601 €)
  • Feltöltés dátuma: 2025.10.03.
  •  
Új építésű lakás

Eladó lakás, Budapest 14. ker.

Keresés azonosító alapján: HI-2485503
  • Budapest XIV.
  • Alapterület: 88 m²
  • Ár: 139 159 000 Ft (358 657 €)
  • Feltöltés dátuma: 2025.10.03.
  •  
Új építésű lakás

Eladó lakás, Budapest 14. ker.

Keresés azonosító alapján: HI-2485478
  • Budapest XIV.
  • Alapterület: 108 m²
  • Ár: 171 827 833 Ft (442 855 €)
  • Feltöltés dátuma: 2025.10.03.
  •  
Új építésű lakás

Eladó lakás, Budapest 16. ker.

Keresés azonosító alapján: HI-2490481
  • Budapest XVI.
  • Alapterület: 70 m²
  • Ár: 105 000 000 Ft (270 619 €)
  • Feltöltés dátuma: 2025.10.17.
  • klímás
Facebook
Blogger
Twitter
Tweets by hasznaltingatla
Flickr