Eladó Lakás, Budapest 14. ker.

Ingatlan azonosító: HI-2554432

Budapest - Budapest XIV., Panel lakás


62 900 000 Ft (177 183 €)

  • Hirdetés feladója: Ingatlaniroda
  • Pontos cím: Budapest XIV.
  • Típus: Eladó
  • Belső irodai azonosító: M325598-5184125
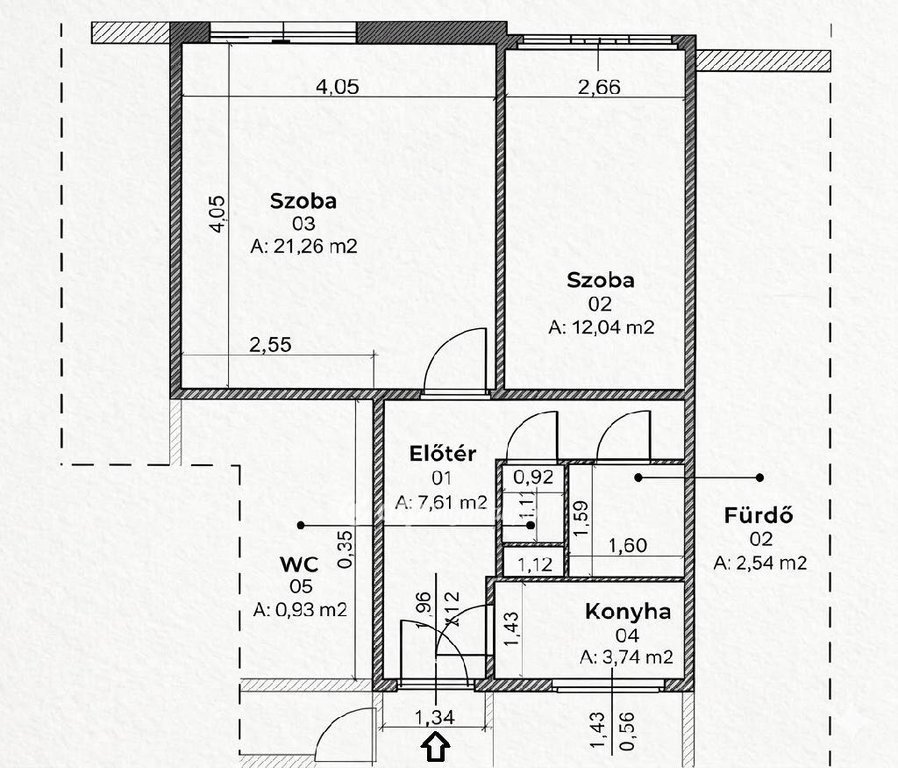
  • Alapterület: 49 m²
  • Építés éve: 1980
  • Egész szobák száma (12 m² felett): 2 db
  • Félszobák száma (6-12 m² között): 0 db
  • Emelet: földszint
  • Ingatlan állapota: jó állapotú
  • Komfort: összkomfortos
  • Fűtés: távfűtes egyedi méréssel
  • Lift: van
  • Akadálymentesített: nincs
  • Napelem van?: nincs
  • Erkély: nincs
  • Légkondicionáló: nincs
  • Kilátás: utcai
  • Tájolás: nyugat
  • A lakás falazata: Panel
  • Közös költség mértéke: 9000

Leírás

FÜREDI LAKÓTELEP, LOGGIÁS LAKÁS, BEFEKTETÉSRE IS ENGLISH DESCRIPTION BELOW!!! Eladó a XIV. kerületben, a Füredi lakótelepen, az Ond vezér útján egy 49 nm-es, 2 szobás, loggiás lakás. Panelprogramos, liftes ház magasföldszintjén található, nyugati fekvésű, világos. Praktikus elosztás: külön nyíló szobák, világos konyha, külön fürdő és WC, loggia. Befektetőknek ideális: jelenleg bérlő lakja, aki maradna, azonnali bevétel! Kiváló lokáció: Örs vezér tere, M2 metró, Árkád, IKEA pár perc. Az energetikai tanúsítvány készítése folyamatban van, amint rendelkezésre áll, úgy azzal a hirdetés frissítésre kerül. ⸻ FÜREDI ESTATE, LOGGIA, GREAT INVESTMENT A 49 sqm, 2-room apartment with loggia is for sale in District 14, Füredi estate (Ond vezér út). Located on a raised ground floor in a renovated panel building with elevator. West-facing, bright. Practical layout: separate rooms, kitchen, separate bathroom and toilet, loggia. Ideal for investors: currently rented with reliable tenants who would stay – immediate income! Excellent location: M2 metro (Örs vezér tere), Árkád, IKEA within minutes. Az energetikai tanúsítvány készítése folyamatban van, amint rendelkezésre áll, úgy azzal a hirdetés frissítésre kerül. Referencia szám: M325598-HI

E-mail küldése a hirdetőnek

Hibás hirdetés bejelentése

Sikeres elküldtük a hiba bejelentést.

Hirdető adatai

Gregoryan Artur
E-mail cím: artur.gregoryan@otpip.hu
Telefonszám: +36706300162
OTPip
Hirdetés feladója: Ingatlaniroda
Ingatlaniroda: OTPip
E-mail cím: pannonia@otpip.hu
Telefonszám: +36707082439

Képek



Térkép


Ajánlott ingatlanok

Panel lakás

Eladó Lakás, Budapest 10. ker.

Keresés azonosító alapján: HI-2564330
  • Budapest X.
  • Alapterület: 50 m²
  • Ár: 58 500 000 Ft (164 789 €)
  • Feltöltés dátuma: 2026.04.23.
  • klímás
Panel lakás

Eladó Lakás, Budapest 14. ker.

Keresés azonosító alapján: HI-2568678
  • Budapest XIV.
  • Alapterület: 55 m²
  • Ár: 67 900 000 Ft (191 268 €)
  • Feltöltés dátuma: 2026.05.07.
  •  
Panel lakás

Eladó Lakás, Budapest 19. ker.

Keresés azonosító alapján: HI-2558860
  • Budapest XIX.
  • Alapterület: 59 m²
  • Ár: 70 000 000 Ft (197 183 €)
  • Feltöltés dátuma: 2026.04.07.
  •  
Panel lakás

Eladó Lakás, Budapest 21. ker.

Keresés azonosító alapján: HI-2555589
  • Budapest XXI.
  • Alapterület: 58 m²
  • Ár: 69 900 000 Ft (196 901 €)
  • Feltöltés dátuma: 2026.03.27.
  • klímás
Facebook
Blogger
Twitter
Tweets by hasznaltingatla
Flickr