Eladó lakás Budapest 15. ker., Újpalota

Ingatlan azonosító: HI-2540411

Budapest - Budapest XV., Panel lakás


69 990 000 Ft (180 387 €)

  • Hirdetés feladója: Ingatlaniroda
  • Pontos cím: Budapest XV.
  • Típus: Eladó
  • Belső irodai azonosító: H513375-5156398
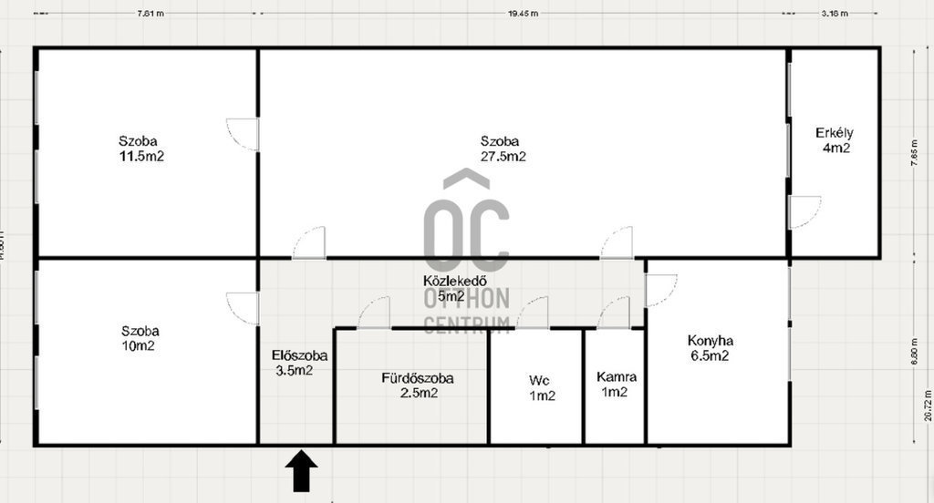
  • Alapterület: 70 m²
  • Építés éve: 1974
  • Egész szobák száma (12 m² felett): 3 db
  • Félszobák száma (6-12 m² között): 0 db
  • Fürdőszobák száma: 1 db
  • Emelet: 3. emelet
  • Ingatlan állapota: közepes állapotú
  • Komfort: összkomfortos
  • Fűtés: távfűtes egyedi méréssel
  • Lift: nincs
  • Akadálymentesített: nincs
  • Napelem van?: nincs
  • Erkély: van
  • Légkondicionáló: nincs
  • Kilátás: kertre néző
  • Tájolás: dél
  • A lakás falazata: Panel

Leírás

Világos, csendes felső emeleti otthon zöld környezetben – Kőrakkáspark Van az a lakás, ahová belépve az ember azonnal érzi: itt jó élni. Fényes terek, nyugalom és egy olyan ház, ahol valóban otthon vannak az emberek – nem csak laknak. Ez a XV. kerületi Körakkáspark egyik háromemeletes társasházának legfelső szintjén található, 70 m²-es, erkélyes, háromszobás lakás pontosan ezt az élményt adja. Csendes, rendezett lépcsőház, mindössze nyolc lakásos társasház, biztonságos környezet – itt nincs átjáróház-hangulat, csak nyugalom. RÖVID ÖSSZEFOGLALÓ XV. kerület – Körakkáspark 70 m² lakótér + 4 m² erkély 3 külön nyíló szoba legfelső emelet (3/3) zárt, tiszta lépcsőház panelprogramos szigetelés – már kifizetve műanyag nyílászárók tehermentes ingatlan közös tároló + pince AZ ELHELYEZKEDÉS – NYUGALOM ÉS ÉLHETŐ TEREK A Körakkáspark azon kevés budapesti részek egyike, ahol valóban érződik a tér és a levegő. Nem zsúfolt, nem zajos — inkább rendezett, zöld és kimondottan élhető. A házak alacsonyak, sok a fa, a parkosított területek természetesen simulnak bele a környezetbe. Itt a reggeli kávé nem dudálásra, hanem csendre indul. A közelben minden megtalálható, ami a mindennapokhoz kell: boltok, szolgáltatások, tömegközlekedés gyorsan elérhető, miközben a lakás környezete megőrzi nyugodt karakterét. AZ ÉPÜLET – KIS LAKÓKÖZÖSSÉG, JÓ ÁLLAPOT A háromemeletes társasház zárt lépcsőházas, rendezett és csendes. Mindössze nyolc lakás — nincs folyamatos jövés-menés, nincs zaj. A panelprogram keretében az épület szigetelése már elkészült és rendezett, a nyílászárók műanyagra lettek cserélve, így a hő- és hangszigetelés is kifejezetten jó. A LAKÁS – VILÁGOS TEREK, JÓ ALAPOK A lakás elrendezése kifejezetten praktikus: tágas, 27,5 m²-es nappali vagy nagy szoba két külön nyíló hálószoba külön konyha fürdő + külön WC kamra közlekedő és előszoba jól kihasználható terekkel 4 m²-es erkély A felső emeleti elhelyezkedésnek köszönhetően a lakás világos egész nap, és különösen csendes. Állapotát tekintve részben felújítandó, ami kiváló lehetőség arra, hogy az új tulajdonos saját ízlésére formálja — a nyílászárók már korszerűek, az épület műszaki állapota rendezett, így a fókusz valóban a belső tér kialakításán lehet. MIÉRT JÓ VÁLASZTÁS? keresett, alacsony házas környék legfelső emelet – nincs feletted lakó világos, jól szellőző lakás csendes társasház jó alap egy értéknövelő felújításhoz tehermentes, gyorsan birtokba vehető Ez a lakás ideális választás lehet: – saját otthonnak nyugodt környezetben – családnak a jó elosztás miatt – befektetésnek is, mert a környék stabilan keresett Ha szeretnél egy valóban élhető, csendes, jó adottságú lakást egy ritka adottságú környéken, ez az ingatlan megér egy személyes megtekintést. Díjmentes, bankfüggetlen hiteltanácsadással támogatjuk vevő ügyfeleinket a számukra legelőnyösebb finanszírozási döntések meghozatalában. Opcionálisan igénybe vehető kiegészítő szolgáltatásainkkal – mint ügyvédi közreműködés, energetikai tanúsítvány vagy villamos biztonsági felülvizsgálat – teljes körű szakmai támogatást nyújtunk az adásvétel folyamatának minden egyes lépésénél. ---------------------------------------------- A hirdetésben szereplő információk tájékoztató jellegűek. A tévedés és az árváltoztatás jogát fenntartjuk.

E-mail küldése a hirdetőnek

Hibás hirdetés bejelentése

Sikeres elküldtük a hiba bejelentést.

Hirdető adatai

Katona Judit
E-mail cím: katona.judit@oc.hu
Telefonszám: +36 70 469 3611
Otthon Centrum
Hirdetés feladója: Ingatlaniroda
Ingatlaniroda: Otthon Centrum
E-mail cím: outca@oc.hu
Telefonszám: +36 70 518 6655

Képek



Térkép


Ajánlott ingatlanok

Lakóövezeti

Eladó telek Mosonmagyaróvár, Városközpont

Keresés azonosító alapján: HI-2461535
  • Mosonmagyaróvár
  • Telekterület: 1 431 m²
  • Ár: 79 990 000 Ft (206 160 €)
  • Feltöltés dátuma: 2025.08.13.
  •  
Családi ház

Eladó ház Taksony

Keresés azonosító alapján: HI-2375577
  • Taksony
  • Alapterület: 125 m²
  • Telekterület: 663 m²
  • Ár: 110 000 000 Ft (283 505 €)
  • Feltöltés dátuma: 2025.02.18.
  •  
Tégla lakás

Eladó lakás Budapest 5. ker., Belváros

Keresés azonosító alapján: HI-2436597
  • Budapest V.
  • Alapterület: 66 m²
  • Ár: 147 817 500 Ft (380 973 €)
  • Feltöltés dátuma: 2025.06.30.
  •  
Csarnok

Eladó ipari ingatlan Tiszaszőlős

Keresés azonosító alapján: HI-2415451
  • Tiszaszőlős
  • Alapterület: 1 180 m²
  • Telekterület: 5 927 m²
  • Ár: 61 900 000 Ft (159 536 €)
  • Feltöltés dátuma: 2025.05.08.
  •  
Facebook
Blogger
Twitter
Tweets by hasznaltingatla
Flickr