Eladó lakás, Budapest 17. ker.

Ingatlan azonosító: HI-2528314

Budapest - Budapest XVII., Tégla lakás


80 000 000 Ft (204 082 €)

  • Hirdetés feladója: Ingatlaniroda
  • Pontos cím: Budapest XVII. Csabai út
  • Típus: Eladó
  • Belső irodai azonosító: LK056167-5029589
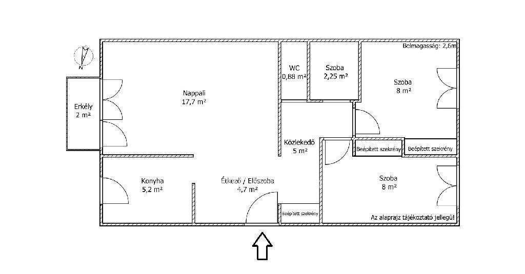
  • Alapterület: 107 m²
  • Építés éve: 1970
  • Egész szobák száma (12 m² felett): 2 db
  • Félszobák száma (6-12 m² között): 0 db
  • Fürdőszobák száma: 1 db
  • Emelet: földszint
  • Ingatlan állapota: közepes állapotú
  • Fűtés: gáz (cirko)
  • Lift: nincs
  • Akadálymentesített: nincs
  • Napelem van?: nincs
  • Erkély: nincs
  • Légkondicionáló: nincs
  • Tájolás: dél-nyugat
  • A lakás falazata: Tégla

Leírás

Eladó földszinti lakás nagy kerttel a XVII. kerületben!Budapest XVII. kerületében, a Csabai úton kínálok megvételre egy 107 m²-es földszinti lakást, amely külön villany- és gázórákkal rendelkezik. Az ingatlan jelenlegi elrendezése is kényelmes, de akár 4 szobás otthon is könnyedén kialakítható belőle, így ideális választás családoknak és befektetőknek egyaránt.A lakás jelenlegi elrendezése: tágas télikert, konyha-étkező, kamra, két szoba, közlekedő, valamint fürdőszoba wc-vel. A helyiségek mérete és kialakítása lehetőséget ad arra, hogy a későbbi tulajdonos saját igényei szerint bővítse vagy átalakítsa a belső tereket, így igazán személyre szabott otthont hozhat létre.A fűtést és a meleg vizet önálló gázkazán biztosítja, a nyári hónapokban pedig a klíma gondoskodik a kellemes hőmérsékletről. A közművek tekintetében a villany- és gázfogyasztás teljesen külön mérhető, a vízellátás közös, azonban almérő segítségével pontosan nyomon követhető.A telek jelentős előnyt kínál: az előkert gondozott, a hátsó kert pedig rendkívül tágas, így kiválóan alkalmas családi és baráti összejövetelekre, kerti sütögető kialakítására, gyermekeknek játszótér létrehozására, vagy akár pihenőkert kialakítására is.Ez az ingatlan nemcsak jelenlegi formájában biztosít kényelmes otthont, hanem sokoldalú kialakíthatósága révén hosszú távon is értékálló és rugalmasan alakítható befektetés.Amennyiben szeretnél többet megtudni, vagy személyesen is megtekintenéd, keress bizalommal a megadott elérhetőségeim egyikén. Halász Éva Telefon:30/4221362 ÚJ ÉPÍTÉSŰ ÉS HASZNÁLT INGATLANOK KÖZVETÍTÉSE! Igényelje hitelét nálunk! Díjmentes hiteltanácsadás és egyedi (kamat) kedvezmény a Duna House ügyfelei részére, a banki kamatoknál kedvezőbb feltételekkel! Hívjon bizalommal - a Duna House kínálatában megtalálható valamennyi ingatlannal kapcsolatban örömmel állok rendelkezésére a hét bármely napján! Referencia szám: LK056167

E-mail küldése a hirdetőnek

Hibás hirdetés bejelentése

Sikeres elküldtük a hiba bejelentést.

Hirdető adatai

Halász Györgyné
E-mail cím: halasz.gyorgyne@dh.hu
Telefonszám: +36304221362
Duna House
Hirdetés feladója: Ingatlaniroda
Ingatlaniroda: Duna House
E-mail cím: csillaghegy@dh.hu
Telefonszám: +3614370244

Képek



Térkép


Ajánlott ingatlanok

Tégla lakás

Eladó lakás, Budapest 13. ker.

Keresés azonosító alapján: HI-2533909
  • Budapest XIII. Röppentyű utca
  • Alapterület: 73 m²
  • Ár: 113 150 000 Ft (288 648 €)
  • Feltöltés dátuma: 2026.02.07.
  •  
Tégla lakás

Eladó lakás, Budapest 13. ker.

Keresés azonosító alapján: HI-2528248
  • Budapest XIII. Dráva utca
  • Alapterület: 29 m²
  • Ár: 50 000 000 Ft (127 551 €)
  • Feltöltés dátuma: 2026.01.31.
  •  
Tégla lakás

Eladó lakás, Budapest 13. ker.

Keresés azonosító alapján: HI-2533928
  • Budapest XIII. Röppentyű utca
  • Alapterület: 71 m²
  • Ár: 109 275 000 Ft (278 763 €)
  • Feltöltés dátuma: 2026.02.07.
  •  
Tégla lakás

Eladó lakás, Budapest 13. ker.

Keresés azonosító alapján: HI-2533908
  • Budapest XIII. Röppentyű utca
  • Alapterület: 71 m²
  • Ár: 109 275 000 Ft (278 763 €)
  • Feltöltés dátuma: 2026.02.07.
  •  
Facebook
Blogger
Twitter
Tweets by hasznaltingatla
Flickr