Eladó lakás, Budapest 18. ker.

Ingatlan azonosító: HI-2493543

Budapest - Budapest XVIII., Tégla lakás


190 000 000 Ft (494 792 €)

  • Hirdetés feladója: Ingatlaniroda
  • Pontos cím: Budapest XVIII.
  • Típus: Eladó
  • Belső irodai azonosító: LK026935-5069486
  • Alapterület: 336 m²
  • Építés éve: 2000
  • Egész szobák száma (12 m² felett): 6 db
  • Félszobák száma (6-12 m² között): 0 db
  • Fürdőszobák száma: 2 db
  • Ingatlan állapota: felújított
  • Fűtés: gáz (cirko)
  • Lift: nincs
  • Akadálymentesített: nincs
  • Napelem van?: nincs
  • Erkély: van
  • Légkondicionáló: nincs
  • Tájolás: kelet
  • A lakás falazata: Tégla

Leírás

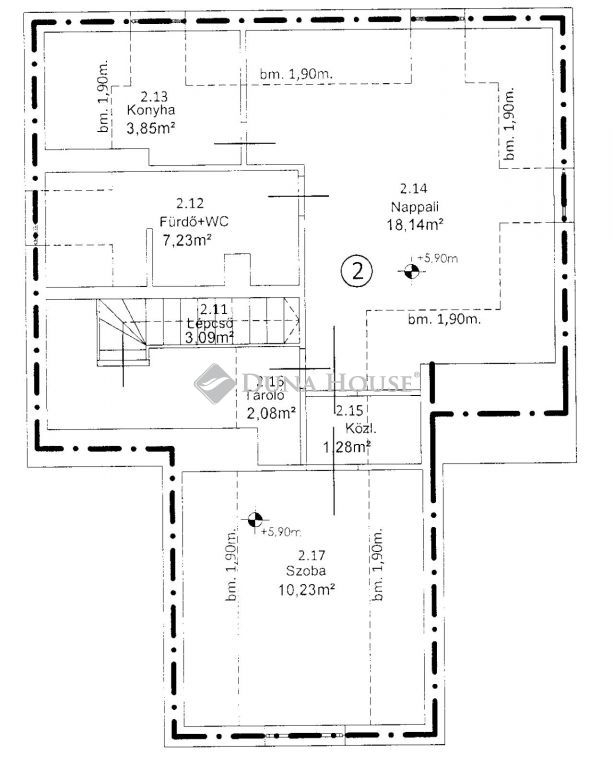
XVIII. KERÜLET BÓKAY-KERT SZÍVÉBEN!Három generációs felújított ingatlan a 18. kerületben a Bókaytelepen!XVIII. kerület közkedvelt részén a Bókay kert szomszédságában eladó egy otthonos, hangulatos, társasházi lakás.Kiemelném a lakás külön helyrajzi számmal és külön mérőórákkal, külön bejárattal, kertrésszel rendelkezik, jogilag rendezett, hitelezhető.Az ingatlanhoz tartozó saját kert: 626 nm.A vételárrészét képezi:- az emeleti lakás, mely nettó: 143 nm,- a 43 nm es tetőtéri lakrész,- 106 nm es szuterén szint, garázzsal, mely külső és belső lépcsőtéren egyaránt megközelíthető.- a teleken található 44 nm-es kis épületrész.Az ingatlanok bruttó alapterülete 336 nm, a hasznos alapterület 230 nm.Az épület 2000-ben épült. A jelenleg is zajló felújítási munkák várhatóan 2025. évben illetve 2026. év első negyedévében érnek véget.MŰSZAKI TARTALOM:- a fűtést és a meleg vizet kondenzációs kazán biztosítja.- az épület 15 cm szigeteléssel ellátott ,- a nyílászárók műanyag típusúak, redőnnyel és szúnyoghálóval ellátva,- az első emeleten és a tetőtéren kondenzációs kazán biztosítja a fűtést és a meleg vizet, valamint egy napkollektor is üzemel,- a villanyvezeték rézcsővel kiépített,- a vízvezetékek cseréje megtörtént,- minden helyiség felújított,- a tető zsindellyel borított,- lakás belmagassága: 2,6 m,- a térburkolatok kövesek,- a lakásokban a szobák parkettásak, a közlekedő helyiségek és a vizesblokkok járólaposak,- az utcafronton több autó parkolására van lehetőség.Az első emeleten a nyugati tájolású 27 nm-es amerikai konyhás nappalin kívül, a három szoba került kialakításra, az első lakószoba 16 nm-es, a második, 15 nm-es a harmadik 12 nm-es melyből kettő keleti és egy déli tájolású. A zuhanyzós fürdőszoba WC-vel együtt nyugati fekvésű, illetve külön kialakításra került egy WC helyiség is. A közlekedő igen tágas, a szobák önállóan nyílnak (egyik sem zsákszoba!). Az emeleti részen két terasz is található, egyik keleti (kisebb és utcafronti), a másik nyugati tájolású (nagyobb és kertre néző), mindkettő kényelmes elrendezésű.A tetőtérben található két nagyobb és egy kisebb helyiség, melyben, konyha is kialakításra kerül.. A tetőtérben kialakításra került egy zuhanyzós fürdőszoba WC-vel együtt.A telek végében egy 44 nm-es épület található. az ingatlan 1 szoba plusz amerikai konyhás nappaliból, kis előtérből és zuhanyzós fürdő WC helységből áll.A konyhabútor kivitelezése mindegyik lakrészben az új tulajdonos feladata!A családi otthon tájolását tekintve előnyös, mert ablakai mind a négy égtájra nyílnak, ezáltal világos és hangulatos az épület.A lakás teher-, per-, jog- és igénymentes, hitelezhető.Aki ismeri ezt a környéket pontosan tudja, hogy csendes, kertvárosias, fás utcák alkotják, adott a nyugalom, mégis kiváló a közlekedése jellemzi, minden, ami a minden napokhoz szükséges percek alatt elérhető.Az ingatlanhoz séta közelben több üzlet (Lidl Spar, Aldi, DM, stb.) és általános iskola, óvoda és bölcsőde, illetve rendelőintézet valamint buszmegálló található. Bármely busszal az M3-as metróvonal 10 perc alatt elérhető. Az M0 autóút negyedórán belül elérhető.A három lakrész méretét tekintve, alkalmas több generáció összeköltözésére, vállalkozás üzemeltetésére.Amennyiben felkeltette érdeklődését, és úgy érzi, hogy a hirdetéssel rátalált ideális otthonára, további információért és megtekintéssel kapcsolatban keressen bizalommal!Jöjjön el és tekintse meg leendő otthonát, várom megtisztelő hívását! Referencia szám: LK026935-HI

E-mail küldése a hirdetőnek

Hibás hirdetés bejelentése

Sikeres elküldtük a hiba bejelentést.

Hirdető adatai

Zámbó Beatrix
E-mail cím: zambo.beatrix@dh.hu
Telefonszám: +36704215921
Duna House
Hirdetés feladója: Ingatlaniroda
Ingatlaniroda: Duna House
E-mail cím: kertvaros18@dh.hu
Telefonszám: +3617086081

Képek



Térkép


Ajánlott ingatlanok

Tégla lakás

Eladó lakás, Budapest 19. ker.

Keresés azonosító alapján: HI-2485350
  • Budapest XIX.
  • Alapterület: 73 m²
  • Ár: 89 999 999 Ft (234 375 €)
  • Feltöltés dátuma: 2025.10.03.
  •  
Tégla lakás

Eladó lakás, Budapest 19. ker.

Keresés azonosító alapján: HI-2458309
  • Budapest XIX.
  • Alapterület: 19 m²
  • Ár: 29 900 000 Ft (77 865 €)
  • Feltöltés dátuma: 2025.08.06.
  •  
Tégla lakás

Eladó lakás, Monor

Keresés azonosító alapján: HI-2501736
  • Monor
  • Alapterület: 63 m²
  • Ár: 57 990 000 Ft (151 016 €)
  • Feltöltés dátuma: 2025.11.14.
  •  
Tégla lakás

Eladó lakás, Budapest 20. ker.

Keresés azonosító alapján: HI-2453330
  • Budapest XX.
  • Alapterület: 51 m²
  • Ár: 44 900 000 Ft (116 927 €)
  • Feltöltés dátuma: 2025.08.02.
  •  
Facebook
Blogger
Twitter
Tweets by hasznaltingatla
Flickr