Eladó Lakás, Budapest 18. ker.

Ingatlan azonosító: HI-2393055

Budapest - Budapest XVIII., Új építésű lakás


139 200 000 Ft (366 316 €)

  • Hirdetés feladója: Ingatlaniroda
  • Pontos cím: Budapest XVIII.
  • Típus: Eladó
  • Belső irodai azonosító: M299673-4900318
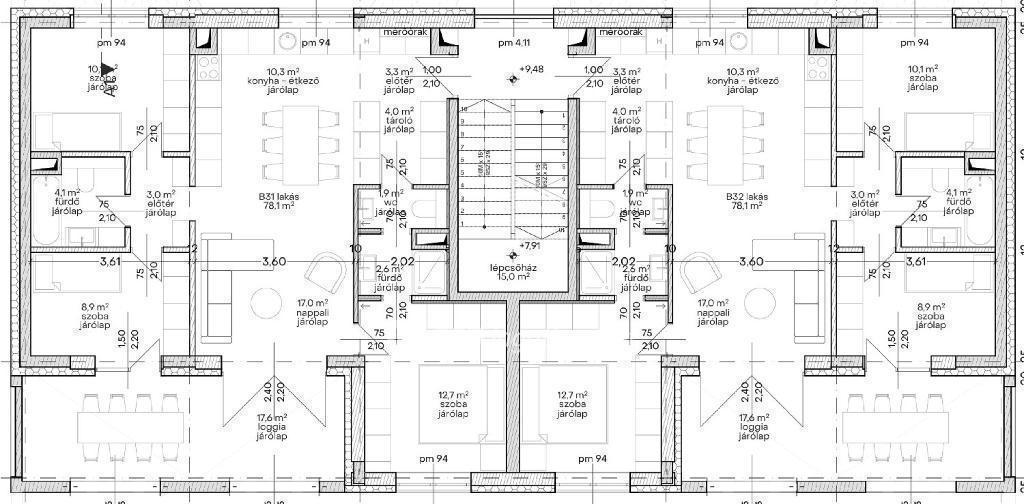
  • Alapterület: 96 m²
  • Építés éve: 2025
  • Egész szobák száma (12 m² felett): 3 db
  • Félszobák száma (6-12 m² között): 1 db
  • Emelet: 3. emelet
  • Ingatlan állapota: új építésű
  • Komfort: összkomfortos
  • Fűtés: egyéb
  • Lift: nincs
  • Akadálymentesített: nincs
  • Napelem van?: nincs
  • Erkély: nincs
  • Légkondicionáló: nincs
  • Kilátás: udvari
  • A lakás falazata: Tégla
  • Közös költség mértéke: 12000

Leírás

Pestszentlőrinc központjában találd meg előértékesítéssel épülő álmaid társasházi lakását ajándék konyhabútorral, ahol a modern, energiatakarékos hőszivattyús rendszerű kényelem és a luxus egységben van! Várható átadás 2026. év vége. Az épület 3 szintes, 12 lakásos, az eladó 96 m2-es lakások az. 1., 2. és 3. emeleten találhatóak, az árban a konyhabútor és a tároló is benne van. Az ingatlankomplexum eladója, aki egyben az építője is, széles körű referenciával bír és magas minőségű ingatlanokat épít. A belső udvarban mélyített parkolásra van lehetősége kizárólagos használattal a vásárlóknak, az udvar parkosított lesz. A lakások kialakítása tágas tereivel és beosztásával a modern igényeknek, a műszaki tartalom a kor magas szintű elvárásainak felel meg. Csokra, csok pluszra alkalmas, kedvezményes pénzügyi konstrukciókkal, felkészült hitelügyintézőkkel, értékesítőkkel segítünk a sikeres vásárlásban. Referenciaszám: M299673 Referencia szám: M299673-HI

E-mail küldése a hirdetőnek

Hibás hirdetés bejelentése

Sikeres elküldtük a hiba bejelentést.

Hirdető adatai

Urbán Ferenc Krisztián
E-mail cím: ferenc.urban@otpip.hu
Telefonszám: +36-30-588-0685
OTPip
Hirdetés feladója: Ingatlaniroda
Ingatlaniroda: OTPip
E-mail cím: csongrad@otpip.hu
Telefonszám: +36 70 455 0993

Képek



Térkép


Ajánlott ingatlanok

Új építésű lakás

Eladó Lakás, Budapest 8. ker.

Keresés azonosító alapján: HI-2388964
  • Budapest VIII.
  • Alapterület: 48 m²
  • Ár: 71 500 000 Ft (188 158 €)
  • Feltöltés dátuma: 2025.03.15.
  •  
Új építésű lakás

Eladó Lakás, Budapest 13. ker.

Keresés azonosító alapján: HI-2382448
  • Budapest XIII.
  • Alapterület: 45 m²
  • Ár: 90 650 000 Ft (238 553 €)
  • Feltöltés dátuma: 2025.03.04.
  •  
Új építésű lakás

Eladó Lakás, Budapest 8. ker.

Keresés azonosító alapján: HI-2388965
  • Budapest VIII.
  • Alapterület: 47 m²
  • Ár: 67 000 000 Ft (176 316 €)
  • Feltöltés dátuma: 2025.03.15.
  •  
Új építésű lakás

Eladó Lakás, Budapest 11. ker.

Keresés azonosító alapján: HI-2202613
  • Budapest XI.
  • Alapterület: 134 m²
  • Ár: 231 958 000 Ft (610 416 €)
  • Feltöltés dátuma: 2024.04.02.
  •  
Facebook
Blogger
Twitter
Tweets by hasznaltingatla
Flickr