Eladó lakás Budapest 18. ker., Bókaytelep

Ingatlan azonosító: HI-2481407

Budapest - Budapest XVIII., Új építésű lakás


99 990 000 Ft (255 077 €)

  • Hirdetés feladója: Ingatlaniroda
  • Pontos cím: Budapest XVIII. Vasvári Pál utca
  • Típus: Eladó
  • Belső irodai azonosító: U0048727-5047517
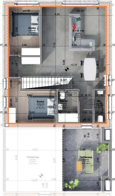
  • Alapterület: 75 m²
  • Építés éve: 2025
  • Egész szobák száma (12 m² felett): 3 db
  • Félszobák száma (6-12 m² között): 0 db
  • Fürdőszobák száma: 1 db
  • Ingatlan állapota: új építésű
  • Komfort: összkomfortos
  • Fűtés: egyéb
  • Lift: nincs
  • Akadálymentesített: nincs
  • Napelem van?: nincs
  • Erkély: van
  • Légkondicionáló: nincs
  • Kilátás: kertre néző
  • Tájolás: dél-kelet
  • A lakás falazata: Tégla

Leírás

Megvételre kínálunk XVIII. kerület Bokaytelepen egy épülő 4 lakásos házban elhelyezkedő lakást! A nappali plusz két hálószobás, fürdővel és külön WC-vel rendelkező lakás minden kényelmet biztosít az itt élők számára. Két garázs és két fedett beálló lesz kialakítva, opcionális lehetőséggel vásárolható: -garázs 5,5 Mft -gépkocsi beálló 1,5 Mft Tervezett átadás: 2026 második negyedév. Az energetika besorolása A+. Fűtés, hűtés, melegvíz: Központi levegő–víz hőszivattyús rendszer szolgáltatja a fűtést, hűtést és a használati melegvizet. Padlófűtés a teljes lakótérben, valamint fan-coil hűtés/fűtés a nappaliban és emeleti szobákban. Okos vezérlés előkészítve: Igény esetén helyiségenkénti termosztátos vezérlés és okosotthon rendszer is kialakítható. Szerkezeti és műszaki adatok: Monolit vasbeton lemezalap – biztos, mozgásálló alapozás. Külső falak: 30 cm vastag Leier hőszigetelő tégla. Válaszfalak: Kiemelkedő hangszigetelésű Silka mészhomok tégla. Födémszerkezet: Hang- és tűzgátló tulajdonságokkal, statikai tervek szerint. Homlokzati hőszigetelés: 12 cm vastag EPS szigetelés. Tető monolit szerkezetű, szigetelés: 20 cm vastag üveggyapot, extra hőmegtartás érdekében. Szigetelés: 20 cm vastag üveggyapot. Nyílászárók és árnyékolástechnika: Biztonságos, többpontos záródású bejárati ajtók (MABISZ minősítéssel). Energiahatékony műanyag ablakok, belső műanyag és külső alumínium párkányokkal. Vakolható redőnyszekrények, opcionálisan hőszigetelt alumínium redőnyökkel és szúnyoghálókkal Rendezett, parkosított saját kert, ideális családi programokhoz, pihenéshez vagy konyhakert kialakításához. A kert rendezése a vételár részét képezi. Garázs és parkolás: Minden lakáshoz saját integrált garázs tartozik, közvetlen lakótéri kapcsolattal. A lakások a CSOK+ feltételeinek megfelelnek. Amennyiben kérdése lenne, vagy szeretné megtekinteni személyesen is, kérem hívjon bizalommal, várom. Teljeskörű pénzügyi és jogi háttér-szolgáltatással várom kedves ügyfeleimet. Referencia szám: U0048727

E-mail küldése a hirdetőnek

Hibás hirdetés bejelentése

Sikeres elküldtük a hiba bejelentést.

Hirdető adatai

Fejes Hajnalka
E-mail cím: fejes.hajnalka@oc.hu
Telefonszám: +36 70 469 3706
Otthon Centrum
Hirdetés feladója: Ingatlaniroda
Ingatlaniroda: Otthon Centrum
E-mail cím: illyes.anita@oc.hu
Telefonszám: +36 70 454 5077

Képek



Térkép


Ajánlott ingatlanok

Új építésű lakás

Eladó lakás Budapest 13. ker., Angyalföld

Keresés azonosító alapján: HI-2471251
  • Budapest XIII. Jász utca
  • Alapterület: 51 m²
  • Ár: 89 900 000 Ft (229 337 €)
  • Feltöltés dátuma: 2025.09.06.
  •  
Új építésű lakás

Eladó lakás Vác, Bácska

Keresés azonosító alapján: HI-2477418
  • Vác Csöbör utca
  • Alapterület: 54 m²
  • Ár: 77 400 000 Ft (197 449 €)
  • Feltöltés dátuma: 2025.09.20.
  •  
Új építésű lakás

Eladó lakás Budapest 13. ker., Angyalföld

Keresés azonosító alapján: HI-2468399
  • Budapest XIII. Reitter Ferenc utca
  • Alapterület: 34 m²
  • Ár: 64 900 000 Ft (165 561 €)
  • Feltöltés dátuma: 2025.09.02.
  •  
Családi ház

Eladó ház Budapest 22. ker., Nagytétény

Keresés azonosító alapján: HI-2281946
  • Budapest XXII. Bartók Béla út
  • Alapterület: 104 m²
  • Telekterület: 900 m²
  • Ár: 119 000 000 Ft (303 571 €)
  • Feltöltés dátuma: 2024.08.15.
  •  
Facebook
Blogger
Twitter
Tweets by hasznaltingatla
Flickr