Eladó Lakás, Budapest 20. ker.

Ingatlan azonosító: HI-2518868

Budapest - Budapest XX., Tégla lakás


33 990 000 Ft (88 057 €)

  • Hirdetés feladója: Ingatlaniroda
  • Pontos cím: Budapest XX.
  • Típus: Eladó
  • Belső irodai azonosító: M319782-5117186
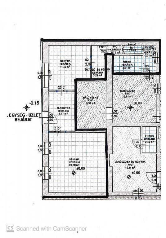
  • Alapterület: 46 m²
  • Építés éve: 1985
  • Egész szobák száma (12 m² felett): 1 db
  • Félszobák száma (6-12 m² között): 0 db
  • Emelet: földszint
  • Ingatlan állapota: jó állapotú
  • Komfort: összkomfortos
  • Fűtés: elektromos
  • Lift: nincs
  • Akadálymentesített: nincs
  • Energiatanúsítvány: D
  • Napelem van?: nincs
  • Erkély: nincs
  • Légkondicionáló: nincs
  • Kilátás: utcai
  • A lakás falazata: Tégla
  • Közös költség mértéke: 19000

Leírás

Budapest XX. ker. Kispesten főútvonalon utcai bejáratú felújított 46 nm-es-es lakás besorolású üzlethelység eladó. Kiváló lokáció. Az összes nyílászáró új hőszigetelt, nagy portál ablak, új padlóburkolat, új elektromos vezetékek, éjszakai és nappali áram, valamint WC/zuhanyzó/mosdó. Lakásként való használata esetén a szoba csempés falát eltakarjuk a vételár részeként. Besorolása lakóingatlan, lakáshitel igényelhető vásárlásához. A környék infrastrukturális ellátottsága kiemelkedő. Iskola 2 perc, buszmegálló 1 percre, busszal Boráros tér 12 perc. Otthon Start Hitelprogram igénybevehető. Az ingatlan megfelel a törvényi kritériumoknak, és az ügyintézésben is segítünk. Hívjon bizalommal! 33990000 Ft Referencia szám: M319782

E-mail küldése a hirdetőnek

Hibás hirdetés bejelentése

Sikeres elküldtük a hiba bejelentést.

Hirdető adatai

Sasaran-Kereki Katalin
E-mail cím: kereki.katalin@otpip.hu
Telefonszám: +36-30-353-3495
OTPip
Hirdetés feladója: Ingatlaniroda
Ingatlaniroda: OTPip
E-mail cím: jozsefkorut@otpip.hu
Telefonszám: +36-30-458-8229

Képek



Térkép


Ajánlott ingatlanok

Tégla lakás

Eladó Lakás, Budapest 10. ker.

Keresés azonosító alapján: HI-2480223
  • Budapest X.
  • Alapterület: 62 m²
  • Ár: 57 900 000 Ft (150 000 €)
  • Feltöltés dátuma: 2025.09.25.
  •  
Tégla lakás

Eladó Lakás, Budapest 7. ker.

Keresés azonosító alapján: HI-2510902
  • Budapest VII.
  • Alapterület: 45 m²
  • Ár: 30 900 000 Ft (80 052 €)
  • Feltöltés dátuma: 2025.12.09.
  •  
Tégla lakás

Eladó Lakás, Budapest 8. ker.

Keresés azonosító alapján: HI-2518872
  • Budapest VIII.
  • Alapterület: 14 m²
  • Ár: 42 900 000 Ft (111 140 €)
  • Feltöltés dátuma: 2026.01.07.
  • klímás
Tégla lakás

Eladó Lakás, Budapest 13. ker.

Keresés azonosító alapján: HI-2512989
  • Budapest XIII.
  • Alapterület: 23 m²
  • Ár: 48 900 000 Ft (126 684 €)
  • Feltöltés dátuma: 2025.12.16.
  • klímás
Facebook
Blogger
Twitter
Tweets by hasznaltingatla
Flickr