Eladó Lakás, Budapest 20. ker.

Ingatlan azonosító: HI-2547331

Budapest - Budapest XX., Tégla lakás


56 900 000 Ft (145 153 €)

  • Hirdetés feladója: Ingatlaniroda
  • Pontos cím: Budapest XX.
  • Típus: Eladó
  • Belső irodai azonosító: M323895-5166993
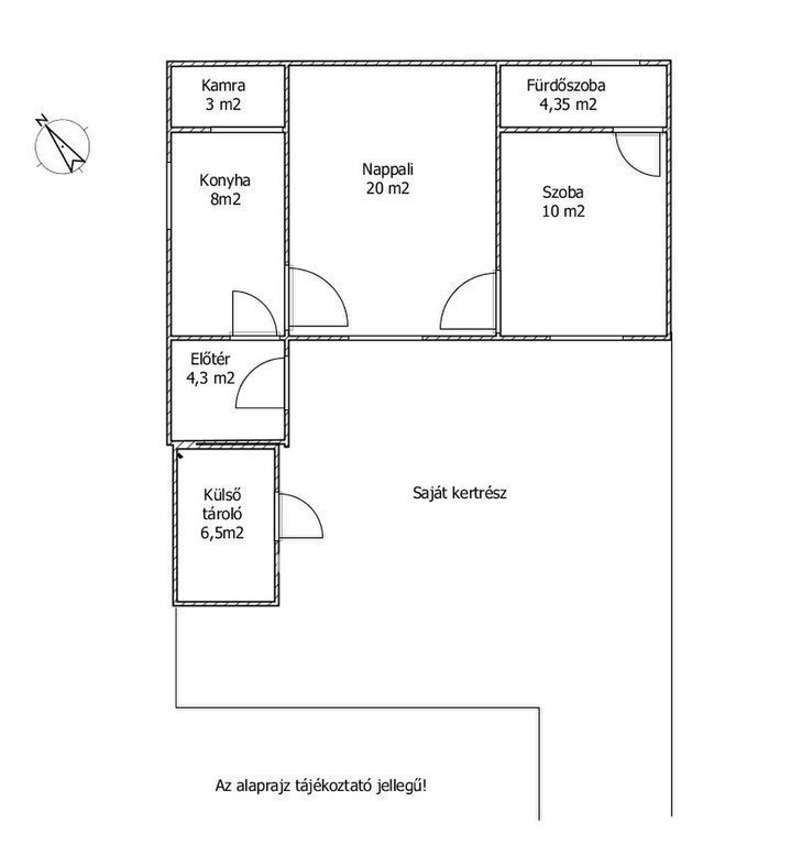
  • Alapterület: 49 m²
  • Építés éve: 1980
  • Egész szobák száma (12 m² felett): 1 db
  • Félszobák száma (6-12 m² között): 1 db
  • Emelet: földszint
  • Ingatlan állapota: jó állapotú
  • Komfort: összkomfortos
  • Fűtés: gáz (cirko)
  • Lift: nincs
  • Akadálymentesített: nincs
  • Energiatanúsítvány: B
  • Napelem van?: nincs
  • Erkély: nincs
  • Légkondicionáló: nincs
  • Kilátás: udvari
  • A lakás falazata: Tégla
  • Közös költség mértéke: 1

Leírás

Eladó Budapest, XX., Pesterzsébet nagyon jó közlekedésű, kertvárosias részén egy br. 63, nettó 49 nm-es, másfél szobás, részben már felújított önálló kis ház. Az ingatlan saját, külön leválasztott bejárattal, kizárólagos használatú kertrésszel rendelkezik. Jelenleg osztatlan közös tulajdon még használati megállapodással, de tavaly júniusban már be lett adva a Földhivatalhoz a társasházzá való nyilvánítási kérelem, az albetétesítés. Felújításra és szigetelésre került a tető, a teljes villanyvezeték hálózat, a külső nyílászárók, belső melegburkolatok. A ház 10 cm-es dryvit szigetelést is kapott. A fürdőszoba még felújítandó - ez már az új tulajdonosra vár! Kellemes otthon alakítható ki fiatalok, újrakezdők, kis családosok számára. A közelben, sétatávolságra kisboltok, piac, cukrászda, gyógyszertár, iskolák, ovi, bölcsi... Kiváló közlekedéssel rendelkezik: az 52-es és 2B villamos közvetlen közelségben, a 36, 136, 123, 224, 224E, 966, és 923-as buszok pár perc sétával elérhetők. Ügyfeleink számára teljes körű ügyintézéssel állunk rendelkezésre. Kínálatunkból választott ingatlan finanszírozásához kedvezményes hitelmegoldásokat kínálunk, illetve az adásvételi szerződés megkötéséhez megbízható ügyvédi közreműködést is tudunk biztosítani! Ha hirdetésünk felkeltette érdeklődését, kérem hívjon bizalommal a hét bármely napján! Referencia szám: M323895

E-mail küldése a hirdetőnek

Hibás hirdetés bejelentése

Sikeres elküldtük a hiba bejelentést.

Hirdető adatai

Dsugán Béla
E-mail cím: dsugan.bela@otpip.hu
Telefonszám: +36204610818
OTPip
Hirdetés feladója: Ingatlaniroda
Ingatlaniroda: OTPip
E-mail cím: dunaharaszti@otpip.hu
Telefonszám: +36308500726

Képek



Térkép


Ajánlott ingatlanok

Tégla lakás

Eladó Lakás, Dabas

Keresés azonosító alapján: HI-2543918
  • Dabas
  • Alapterület: 85 m²
  • Ár: 74 990 000 Ft (191 301 €)
  • Feltöltés dátuma: 2026.03.02.
  • klímás
Tégla lakás

Eladó Lakás, Budapest 21. ker.

Keresés azonosító alapján: HI-2543973
  • Budapest XXI.
  • Alapterület: 52 m²
  • Ár: 59 900 000 Ft (152 806 €)
  • Feltöltés dátuma: 2026.03.02.
  •  
Tégla lakás

Eladó Lakás, Budapest 7. ker.

Keresés azonosító alapján: HI-2543923
  • Budapest VII.
  • Alapterület: 85 m²
  • Ár: 132 000 000 Ft (336 735 €)
  • Feltöltés dátuma: 2026.03.02.
  • klímás
Tégla lakás

Eladó Lakás, Budapest 9. ker.

Keresés azonosító alapján: HI-2543937
  • Budapest IX.
  • Alapterület: 91 m²
  • Ár: 104 900 000 Ft (267 602 €)
  • Feltöltés dátuma: 2026.03.02.
  •  
Facebook
Blogger
Twitter
Tweets by hasznaltingatla
Flickr