Eladó Lakás, Budapest 3. ker.

Ingatlan azonosító: HI-2543828

Budapest - Budapest III., Panel lakás


62 900 000 Ft (164 230 €)

  • Hirdetés feladója: Ingatlaniroda
  • Pontos cím: Budapest III.
  • Típus: Eladó
  • Belső irodai azonosító: M322018-5158201
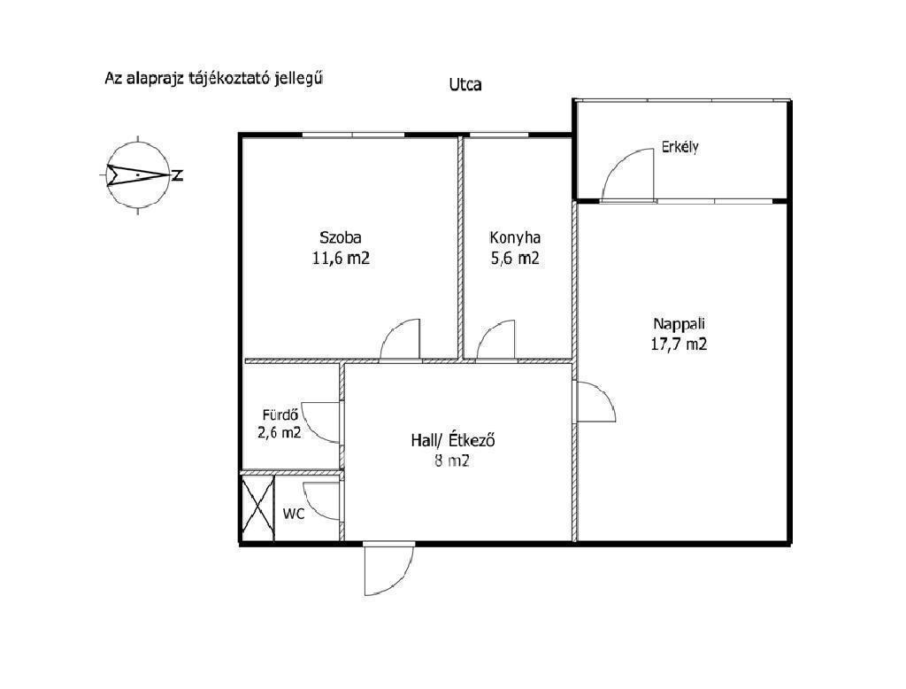
  • Alapterület: 48 m²
  • Építés éve: 1972
  • Egész szobák száma (12 m² felett): 2 db
  • Félszobák száma (6-12 m² között): 0 db
  • Fürdőszobák száma: 1 db
  • Emelet: 6. emelet
  • Ingatlan állapota: jó állapotú
  • Komfort: összkomfortos
  • Fűtés: egyéb
  • Lift: van
  • Akadálymentesített: nincs
  • Napelem van?: nincs
  • Erkély: van
  • Légkondicionáló: nincs
  • Kilátás: utcai
  • Tájolás: észak-kelet
  • A lakás falazata: Panel
  • Közös költség mértéke: 12000

Leírás

Világos, loggiás lakás a Szentendrei úton, kiváló állapot, remek közlekedés! Budapest III. kerületében, a Szentendrei út mentén kínálunk megvételre egy 48 nm-es, 2 szobás, kiváló állapotú panellakást. Az ingatlan egy rendezett, tiszta, liftes társasház 6. emeletén helyezkedik el, világos terekkel és kellemes hangulattal. A lakás praktikus elrendezésű: két külön nyíló szoba, kis konyha, fürdőszoba és külön WC szolgálja a kényelmet. A beépített szekrényeknek köszönhetően a tárolás jól megoldott, a loggia pedig extra teret biztosít pihenéshez vagy akár növények elhelyezéséhez. Külön említést érdemel a 6. emeleten található közös ruhaszárító helyiség, amely kisgyermekes családok számára kifejezetten praktikus, különösen a téli időszakban, amikor a lakásban nehezebben száradnak a ruhák. A környék infrastruktúrája kiváló: néhány perc sétára játszótér, óvoda, iskola, bevásárlási lehetőségek és gyógyszertár is megtalálható. Az Flórián tér közelsége további kényelmi szolgáltatásokat biztosít. Az 1-es villamos megállója mindössze kb. 100 méterre található, így a belváros és Budapest számos pontja gyorsan és kényelmesen elérhető. Az ingatlan teher- és hitelmentes, valamint megfelel az Otthon Start Hitel feltételeinek is, így kedvezményes finanszírozással is megvásárolható. Ideális választás lehet pároknak, kisgyermekes családoknak vagy befektetőknek egyaránt. Amennyiben felkeltette érdeklődését, hívjon bizalommal még ma! Referenciaszám: M322018

E-mail küldése a hirdetőnek

Hibás hirdetés bejelentése

Sikeres elküldtük a hiba bejelentést.

Hirdető adatai

Győri Eszter
E-mail cím: eszter.gyori@otpip.hu
Telefonszám: +36-70-792-0869
OTPip
Hirdetés feladója: Ingatlaniroda
Ingatlaniroda: OTPip
E-mail cím: ulloi9@otpip.hu
Telefonszám: +36706203413

Képek



Térkép


Ajánlott ingatlanok

Panel lakás

Eladó Lakás, Budapest 14. ker.

Keresés azonosító alapján: HI-2555036
  • Budapest XIV.
  • Alapterület: 49 m²
  • Ár: 64 900 000 Ft (169 452 €)
  • Feltöltés dátuma: 2026.03.26.
  •  
Panel lakás

Eladó Lakás, Budapest 10. ker.

Keresés azonosító alapján: HI-2543832
  • Budapest X.
  • Alapterület: 41 m²
  • Ár: 52 999 000 Ft (138 379 €)
  • Feltöltés dátuma: 2026.03.02.
  •  
Panel lakás

Eladó Lakás, Budapest 11. ker.

Keresés azonosító alapján: HI-2543836
  • Budapest XI.
  • Alapterület: 49 m²
  • Ár: 74 900 000 Ft (195 561 €)
  • Feltöltés dátuma: 2026.03.02.
  •  
Panel lakás

Eladó Lakás, Budapest 14. ker.

Keresés azonosító alapján: HI-2543829
  • Budapest XIV. Füredi utca
  • Alapterület: 46 m²
  • Ár: 59 860 000 Ft (156 292 €)
  • Feltöltés dátuma: 2026.03.02.
  •  
Facebook
Blogger
Twitter
Tweets by hasznaltingatla
Flickr