Eladó Lakás, Budapest 3. ker.

Ingatlan azonosító: HI-2555863

Budapest - Budapest III., Tégla lakás


23 625 000 Ft (65 443 €)

  • Hirdetés feladója: Ingatlaniroda
  • Pontos cím: Budapest III.
  • Típus: Eladó
  • Belső irodai azonosító: M324610-5187928
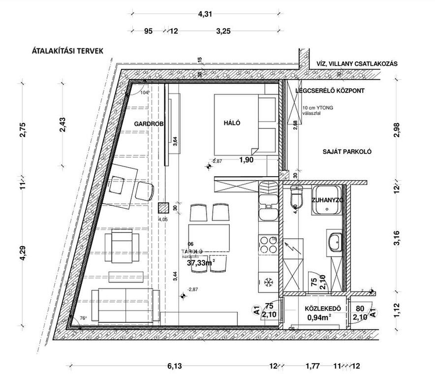
  • Alapterület: 47 m²
  • Építés éve: 2021
  • Egész szobák száma (12 m² felett): 1 db
  • Félszobák száma (6-12 m² között): 0 db
  • Ingatlan állapota: felújítandó
  • Komfort: komfort nélküli
  • Fűtés: egyéb
  • Lift: nincs
  • Akadálymentesített: nincs
  • Napelem van?: nincs
  • Erkély: nincs
  • Légkondicionáló: nincs
  • Kilátás: utcai
  • A lakás falazata: Tégla
  • Közös költség mértéke: 1

Leírás

ELADÓ INGATLAN - CSILLAGHEGY - III. KERÜLET - KÖZEL A DUNÁHOZ! Budapest III. kerület, Csillaghegy részén ajánlom figyelmébe ezt a 2020-ban épült társasház alagsori részén található, 47 nm-es, jelenleg tárolóként funkcionáló ingatlant és a hozzá kapcsolódó (külön hrsz) 17 nm-es gépkocsitárolót. Hasznosítását tekintve, remek választás műteremnek, irodának, masszázsszalonnak, tárolónak. Az ingatlan irányára 23,625M HUF + ÁFA. Igény esetén van lehetőség a teljes műszaki kivitelezésre, amihez a tervek rendelkezésre állnak. Az ingatlan jelenlegi állapota befejezetlen, felújítandó. 23,625 Millió HUF + ÁFA = BRUTTÓ 30M: 47 nm alagsori ingatlan + 17 nm mélygarázs. ELŐNYÖK: jó lakóközösség, kiváló közlekedés, a teljes vételár kifizetése után azonnal birtokba vehető, rendezett tulajdoni lap, a Dunától elérhető távolságban helyezkedik el, teremgarázs parkolóhely a vételárban, cég az eladó, céges finanszírozás elérhető. LOKÁCIÓ: Az ingatlan Budapest III. kerületben, Csillaghegy családi házas részén található, pár száz méterre a Dunától. A társasházban 4 lakás található, illetve mélygarázzsal is rendelkezik. Az ingatlant határoló utcák rendezettek, több játszótér és sportpálya található a közelben. A buszmegállók minimális távolságra vannak, ezután pedig a belváros, illetve a közelben található több bolt, orvosi rendelő, iskola, óvoda, tehát a lakás infrastrukturális adottságai kiválóak. Amennyiben érdekli az ingatlan és szívesen megnézné, akkor hívjon bizalommal. M324610 Az OTP Ingatlanpont, mint egyetlen közvetlen banki hátterű ingatlanközvetítő társaság teljes körű ügyintézéssel áll az eladók és a vevők rendelkezésére! A kínálatunkból választott ingatlan finanszírozásához minősített fogyasztóbarát, piaci és kedvezményes hitel- és lízingkonstrukciókat kínálunk (lakásvásárlási hitel, CSOK plusz, szabad felhasználású hitel, babaváró hitel, céges hitelek, pályázatok, amennyiben az ügyfél és az ingatlan megfelel a feltételeknek). Az adásvételi szerződés megkötéséhez igény szerint megbízható ügyvédi közreműködést biztosítunk, és segítséget nyújtunk az adásvételhez kapcsolódó egyéb ügyek intézéséhez. Ha az új ingatlana megvásárlásához a jelenlegi ingatlanát el kell adnia, abban is szívesen segítünk. Referencia szám: M324610-HI

E-mail küldése a hirdetőnek

Hibás hirdetés bejelentése

Sikeres elküldtük a hiba bejelentést.

Hirdető adatai

Takács Zsuzsanna
E-mail cím: takacs.zsuzsanna@otpip.hu
Telefonszám: +36304953819
OTPip
Hirdetés feladója: Ingatlaniroda
Ingatlaniroda: OTPip
E-mail cím: budapest13.lehelutca@otpip.hu
Telefonszám: +36706136133

Képek



Térkép


Ajánlott ingatlanok

Tégla lakás

Eladó Lakás, Budapest 5. ker.

Keresés azonosító alapján: HI-2553112
  • Budapest V.
  • Alapterület: 80 m²
  • Ár: 199 900 000 Ft (553 740 €)
  • Feltöltés dátuma: 2026.03.22.
  •  
Tégla lakás

Eladó Lakás, Budapest 5. ker.

Keresés azonosító alapján: HI-2553122
  • Budapest V.
  • Alapterület: 58 m²
  • Ár: 131 152 500 Ft (363 303 €)
  • Feltöltés dátuma: 2026.03.22.
  •  
Tégla lakás

Eladó Lakás, Budapest 7. ker.

Keresés azonosító alapján: HI-2553362
  • Budapest VII.
  • Alapterület: 95 m²
  • Ár: 104 900 000 Ft (290 582 €)
  • Feltöltés dátuma: 2026.03.23.
  •  
Tégla lakás

Eladó Lakás, Budapest 8. ker.

Keresés azonosító alapján: HI-2557994
  • Budapest VIII.
  • Alapterület: 24 m²
  • Ár: 41 800 000 Ft (115 789 €)
  • Feltöltés dátuma: 2026.04.03.
  •  
Facebook
Blogger
Twitter
Tweets by hasznaltingatla
Flickr