Eladó lakás Budapest 3. ker., Békásmegyer

Ingatlan azonosító: HI-2525071

Budapest - Budapest III., Panel lakás


69 900 000 Ft (183 465 €)

  • Hirdetés feladója: Ingatlaniroda
  • Pontos cím: Budapest III. Sinkovits Imre utca
  • Típus: Eladó
  • Belső irodai azonosító: H511419-5128576
  • Alapterület: 57 m²
  • Építés éve: 1978
  • Egész szobák száma (12 m² felett): 3 db
  • Félszobák száma (6-12 m² között): 0 db
  • Fürdőszobák száma: 1 db
  • Emelet: 5. emelet
  • Ingatlan állapota: jó állapotú
  • Komfort: összkomfortos
  • Fűtés: távfűtes egyedi méréssel
  • Lift: van
  • Akadálymentesített: nincs
  • Napelem van?: nincs
  • Erkély: nincs
  • Légkondicionáló: nincs
  • Kilátás: utcai
  • Tájolás: észak
  • A lakás falazata: Panel
  • Közös költség mértéke: 16000

Leírás

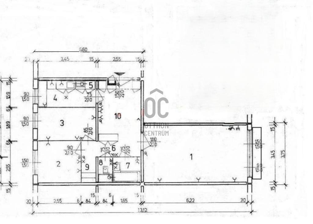
Békásmegyer Hegy-felöldi oldalán, a lakótelep szélén eladóvá vált egy jó adottságokkal rendelkező 3-szobás lakás. A LAKÁS az 5. emeleten van, - és mivel a lakótelep szélső épülete, É-felé szép kilátása van a budakalászi dombok felé. A D-i oldalon is parkra néz az ablak. É-D-i tájolásának köszönhetően kellemesen világos, D-i oldalról árad be a napfény. (Nem mellesleg jól átszellőztethető) ELRENDEZÉSE nagyon praktikus: ha belépünk egy tágas étkezőbe érkezünk, ahonnan valamennyi további helyiség nyílik. Kifejezetten nagy méretű nappalija kényelmesen berendezhető. A másik oldalon elhelyezett 2 hálószoba a fürdővel és a külön wc-vel jól elkülönül a nappali tartózkodási tértől, így a korábban pihenni vágyókat nem zavarja az esetleges hangos beszélgetés, TV-nézés... Konyhája világos, praktikus elrendezésű, sok pakolóhellyel. A lakásban sok praktikus beépített szekrény van, ami szintén része a vételárnak. MŰSZAKI ÁLLAPOTÁT tekintve az elmúlt 25 évben több felújítás is történt. Az elektromos vezetékek cserélve lettek, a konyha és fürdőszoba mintegy 8 éve lett újragondolva, burkolatok is akkor lettek cserélve. A műanyag nyílászárók redőnnyel és szúnyoghálóval vannak ellátva. FŰTÉSről távhő gondolskodik egyedi méréssel. De mivel nagyon meleg a lakás, jellemzően csupán a hideg téli hetekben kell bekapcsolni a radiátorokat. Ennek köszönhetően igen kellemes rezsi költségekkel lehet számolni. A hűtésről klímakészülék gondoskodik. Közös költség: 16.000,-Ft LOKÁCIÓJA tökéletes. A lakótelepen 3-5 perc sétatávolságon belül van orvos, patika, bölcsi, ovi, suli, bevásárlási lehetőség. A 160-as busz szinte a ház előtt áll meg, a HÉV-megálló pedig 10 percen belüli sétatávolságban van. A lakás a START PLUSZ hitel felvételére is alkalmas, ideális választás fiatal párnak kisgyerekkel.

E-mail küldése a hirdetőnek

Hibás hirdetés bejelentése

Sikeres elküldtük a hiba bejelentést.

Hirdető adatai

Sulok Bence
E-mail cím: sulok.bence@oc.hu
Telefonszám: +36 70 412 3216
Otthon Centrum
Hirdetés feladója: Ingatlaniroda
Ingatlaniroda: Otthon Centrum
E-mail cím: benefitline@oc.hu
Telefonszám: +36 70 454 3830

Képek



Térkép


Ajánlott ingatlanok

Panel lakás

Eladó lakás Budapest 11. ker., Albertfalva

Keresés azonosító alapján: HI-2525069
  • Budapest XI.
  • Alapterület: 53 m²
  • Ár: 75 000 000 Ft (196 850 €)
  • Feltöltés dátuma: 2026.01.22.
  •  
Panel lakás

Eladó lakás Budapest 3. ker., Óbuda

Keresés azonosító alapján: HI-2525066
  • Budapest III.
  • Alapterület: 49 m²
  • Ár: 73 500 000 Ft (192 913 €)
  • Feltöltés dátuma: 2026.01.22.
  •  
Panel lakás

Eladó lakás Budapest 3. ker., Békásmegyer

Keresés azonosító alapján: HI-2525067
  • Budapest III.
  • Alapterület: 57 m²
  • Ár: 73 000 000 Ft (191 601 €)
  • Feltöltés dátuma: 2026.01.22.
  •  
Panel lakás

Eladó lakás Budapest 3. ker., Békásmegyer

Keresés azonosító alapján: HI-2484618
  • Budapest III.
  • Alapterület: 61 m²
  • Ár: 83 000 000 Ft (217 848 €)
  • Feltöltés dátuma: 2025.10.02.
  •  
Facebook
Blogger
Twitter
Tweets by hasznaltingatla
Flickr