Eladó lakás Budapest 3. ker., Óbuda

Ingatlan azonosító: HI-2489191

Budapest - Budapest III., Tégla lakás


123 900 000 Ft (318 509 €)

  • Hirdetés feladója: Ingatlaniroda
  • Pontos cím: Budapest III.
  • Típus: Eladó
  • Belső irodai azonosító: H508605-5061440
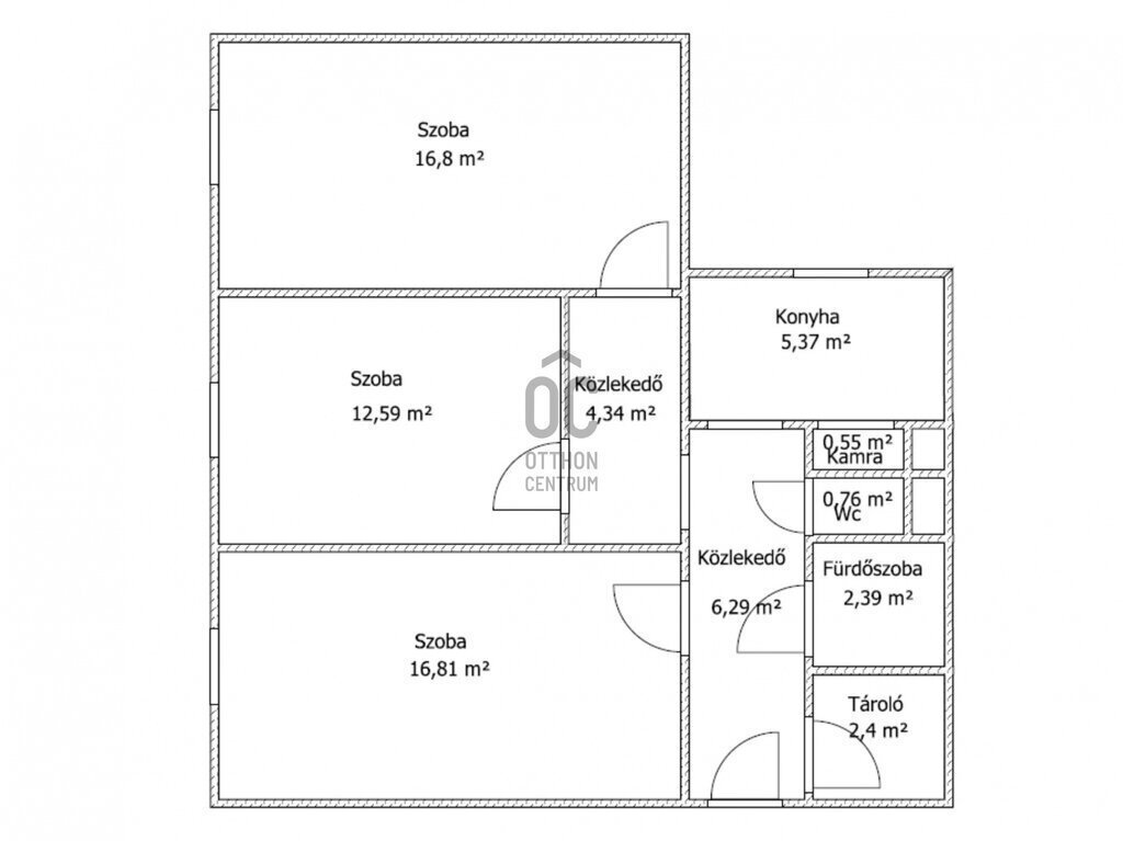
  • Alapterület: 61 m²
  • Építés éve: 2007
  • Egész szobák száma (12 m² felett): 2 db
  • Félszobák száma (6-12 m² között): 0 db
  • Fürdőszobák száma: 1 db
  • Emelet: 2. emelet
  • Ingatlan állapota: jó állapotú
  • Komfort: összkomfortos
  • Fűtés: egyéb
  • Lift: van
  • Akadálymentesített: nincs
  • Napelem van?: nincs
  • Erkély: van
  • Légkondicionáló: nincs
  • Kilátás: udvari
  • Tájolás: észak-kelet
  • A lakás falazata: Tégla

Leírás

III. kerület Óbuda frekventált részén, hangulatos, dupla erkélyes, 61 m2-es, 2 szobás, szép állapotú, jó beosztású, 2. emeleti, csendes, belső udvarra néző lakás eladó! Parkolás az utcán, de teremgarázshely bérelhető! Ha olyan otthont keresel, ahol a városi kényelem és a zöldövezeti nyugalom tökéletes harmóniában találkozik, akkor megtaláltad. A lakásról röviden: -Alapterület: 68 m² -Elhelyezkedés: Óbuda, Bécsi út – csendes, belső parkra néző -Emelet: II. emelet, liftes házban -Építés éve: 2007, fiatal, rendezett társasház -Tájolás: északkeleti, így a nyári melegben is kellemes klíma -Helyiségek: tágas nappali, külön hálószoba, külön konyha, fürdőszoba, külön WC -Extrák: 2 erkély (összesen 14 m²), légkondicionáló, berendezéssel vagy anélkül eladó -Parkolás: utcán, illetve teremgarázsban bérelhető hely Amit imádni fogsz benne: A lakás tágas, világos, mégis csend és zöld környezet veszi körül. A nappali teljes szélességében futó terasz a belső, parkosított udvarra néz – ideális reggeli kávézáshoz vagy esti borozáshoz. A külön konyha praktikus kiadóablakkal kapcsolódik a nappalihoz, így megmarad a tér átláthatósága, de a konyha intimitása is. Lokáció – minden, amire szükséged van, karnyújtásnyira: Villamos és buszmegállók pár perc sétára -Kolosy tér és Zsigmond tér 10–15 perc alatt elérhető -A környék éttermekkel, kávézókkal, boltokkal teli, hangulatos városi élettér Egyetemek, Iskolák a közelben: -Óbudai Egyetem (Kandó Kálmán Műszaki Kar) -Milton Friedman Egyetem -IBS – International Business School Budapest Kinek ajánljuk? Tökéletes választás: -fiatal pároknak, akik nyugodt, mégis központi otthont keresnek, -egyetemistáknak vagy oktatóknak az egyetemek közelsége miatt, -befektetőknek, akik könnyen kiadható, modern lakást szeretnének remek lokációban. Ne maradj le róla! Ha szeretnéd megtekinteni, hívj!

E-mail küldése a hirdetőnek

Hibás hirdetés bejelentése

Sikeres elküldtük a hiba bejelentést.

Hirdető adatai

Lukácsi Mária
E-mail cím: lukacsi.maria@oc.hu
Telefonszám: +36 70 461 9686
Otthon Centrum
Hirdetés feladója: Ingatlaniroda
Ingatlaniroda: Otthon Centrum
E-mail cím: krisztina@oc.hu
Telefonszám: +36 1 225 8510

Képek



Térkép


Ajánlott ingatlanok

Tégla lakás

Eladó lakás Budapest 6. ker., Belső VI.

Keresés azonosító alapján: HI-2445446
  • Budapest VI.
  • Alapterület: 91 m²
  • Ár: 135 000 000 Ft (347 044 €)
  • Feltöltés dátuma: 2025.07.16.
  • klímás
Tégla lakás

Eladó lakás Budapest 5. ker., Belváros

Keresés azonosító alapján: HI-2473440
  • Budapest V.
  • Alapterület: 59 m²
  • Ár: 72 000 000 Ft (185 090 €)
  • Feltöltés dátuma: 2025.09.13.
  •  
Tégla lakás

Eladó lakás Budapest 11. ker., Madárhegy

Keresés azonosító alapján: HI-2486704
  • Budapest XI.
  • Alapterület: 98 m²
  • Ár: 244 000 000 Ft (627 249 €)
  • Feltöltés dátuma: 2025.10.07.
  •  
Tégla lakás

Eladó lakás Budapest 8. ker., Népszínház negyed

Keresés azonosító alapján: HI-2474828
  • Budapest VIII.
  • Alapterület: 90 m²
  • Ár: 79 000 000 Ft (203 085 €)
  • Feltöltés dátuma: 2025.09.17.
  •  
Facebook
Blogger
Twitter
Tweets by hasznaltingatla
Flickr