Eladó Lakás, Budapest 5. ker.

Ingatlan azonosító: HI-2487787

Budapest - Budapest V., Tégla lakás


647 000 000 Ft (1 684 896 €)

  • Hirdetés feladója: Ingatlaniroda
  • Pontos cím: Budapest V.
  • Típus: Eladó
  • Belső irodai azonosító: M314710-5058092
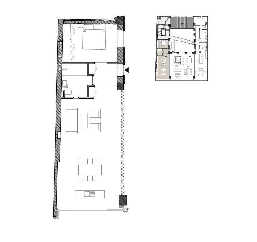
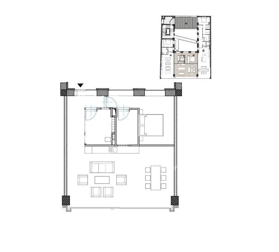
  • Alapterület: 246 m²
  • Építés éve: 2018
  • Egész szobák száma (12 m² felett): 6 db
  • Félszobák száma (6-12 m² között): 1 db
  • Emelet: 6. emelet
  • Ingatlan állapota: jó állapotú
  • Komfort: összkomfortos
  • Fűtés: egyéb
  • Lift: van
  • Akadálymentesített: nincs
  • Napelem van?: nincs
  • Erkély: nincs
  • Légkondicionáló: nincs
  • Kilátás: panorámás
  • Tájolás: dél-nyugat
  • A lakás falazata: Tégla
  • Közös költség mértéke: 171700

Leírás

PLEASE FIND THE ENGLISH DESCRIPTION BELOW!!! Különleges loft lakás a belváros szívében, panorámás terasszal Budapest V. kerületében, a Múzeum körútnál, eladó egy 6. emeleti, 246 nm-es, teljes szintet elfoglaló, egyedi karakterű lakás. Az ingatlan jelenleg három külön egységre tagolt, de könnyedén egybenyitható, így kiváló lehetőséget kínál akár reprezentatív otthonnak, akár irodának vagy befektetésnek. A ház 2018-ban teljes belső felújításon esett át, különleges építészeti megoldásokkal: a korábbi körfolyosók helyett acél hidak kapcsolják össze a lakásokat, a belső tér pedig modern, loft stílusban készült el. A lakásokat tágas, világos terek, nagy belmagasságok és ipari hangulat jellemzik. A Múzeum körútra és a belső udvarra néző ablakok mellett a Gellért-hegyre panorámás terasz is tartozik az ingatlanhoz. A fűtés és hűtés fan-coil rendszerrel és padlófűtéssel biztosított. Az épület lifttel rendelkezik. Az elhelyezkedés tökéletes: az Astoria metrómegálló közvetlen közelében, pár perc sétára a Deák Ferenc tértől, a város legnagyobb közlekedési csomópontjától. Az ingatlan gyorsan birtokba vehető. ⸻ Unique Loft Apartment with Terrace and Panoramic Views in Downtown Budapest In the heart of Budapest’s 5th district, near Múzeum körút, a remarkable 246 sqm apartment is for sale, occupying the entire 6th floor of the building. Currently divided into three separate units, it can easily be opened into one spacious home — ideal as a representative residence, office, or investment. The building was completely renovated in 2018 with special architectural solutions: steel bridges replaced the old corridors, creating a distinctive, modern loft-style interior. The apartment offers generous spaces, high ceilings, and an industrial design. It overlooks both Múzeum körút and the inner courtyard, and features a terrace with panoramic views of Gellért Hill. Heating and cooling are provided by a fan-coil system with additional underfloor heating. The building is equipped with an elevator. Located right next to the Astoria metro station and just a short walk from Deák Ferenc Square — Budapest’s main public transport hub with three metro lines. The property is available for immediate occupancy. Referencia szám: M314710-HI

E-mail küldése a hirdetőnek

Hibás hirdetés bejelentése

Sikeres elküldtük a hiba bejelentést.

Hirdető adatai

Gregoryan Artur
E-mail cím: artur.gregoryan@otpip.hu
Telefonszám: +36706300162
OTPip
Hirdetés feladója: Ingatlaniroda
Ingatlaniroda: OTPip
E-mail cím: pannonia@otpip.hu
Telefonszám: +36-70-708-2439

Képek



Térkép


Ajánlott ingatlanok

Tégla lakás

Eladó Lakás, Budapest 2. ker.

Keresés azonosító alapján: HI-2503559
  • Budapest II.
  • Alapterület: 61 m²
  • Ár: 142 900 000 Ft (372 135 €)
  • Feltöltés dátuma: 2025.11.20.
  • klímás
Tégla lakás

Eladó Lakás, Budapest 11. ker.

Keresés azonosító alapján: HI-2467839
  • Budapest XI.
  • Alapterület: 48 m²
  • Ár: 122 000 000 Ft (317 708 €)
  • Feltöltés dátuma: 2025.08.31.
  •  
Tégla lakás

Eladó Lakás, Budapest 7. ker.

Keresés azonosító alapján: HI-2497139
  • Budapest VII.
  • Alapterület: 124 m²
  • Ár: 175 000 000 Ft (455 729 €)
  • Feltöltés dátuma: 2025.11.02.
  • klímás
Tégla lakás

Eladó Lakás, Budapest 21. ker.

Keresés azonosító alapján: HI-2502709
  • Budapest XXI.
  • Alapterület: 77 m²
  • Ár: 105 900 000 Ft (275 781 €)
  • Feltöltés dátuma: 2025.11.17.
  •  
Facebook
Blogger
Twitter
Tweets by hasznaltingatla
Flickr