Eladó lakás, Budapest 6. ker.

Ingatlan azonosító: HI-2481138

Budapest - Budapest VI., Új építésű lakás


128 279 550 Ft (327 244 €)

  • Hirdetés feladója: Ingatlaniroda
  • Pontos cím: Budapest VI.
  • Típus: Eladó
  • Belső irodai azonosító: PR081470/LK/23329-5046874
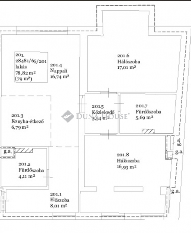
  • Alapterület: 79 m²
  • Építés éve: 2025
  • Egész szobák száma (12 m² felett): 3 db
  • Félszobák száma (6-12 m² között): 0 db
  • Fürdőszobák száma: 2 db
  • Emelet: 2. emelet
  • Ingatlan állapota: új építésű
  • Komfort: összkomfortos
  • Fűtés: egyéb
  • Lift: van
  • Akadálymentesített: nincs
  • Napelem van?: nincs
  • Erkély: nincs
  • Légkondicionáló: van
  • Kilátás: kertre néző
  • Tájolás: nyugat
  • A lakás falazata: Tégla

Leírás

***Budapest szívében, a 6. kerületben eladásra kínálunk 21 darab modern, 1-3 szobás, 1-2 fürdőszobás, erkélyes /teraszos klimatizált, lakásokat***Az ingatlanok az épület első három szintjén helyezkednek el. Az épület teljeskörű műszaki felújításon esett át, a fűtés, hűtés, villany és csatornarendszer felújítása megtörtént, lift került beépítésre. A felújítás során törekedtek minőségi alapanyagok, nyílászárók, burkolatok, szaniterek beépítésére. A lakások klimatizáltak. Az ingatlanok igazi ritkaságnak számítanak. Belsőépítészetében igyekeztek a modern és klasszikus jegyeket ötvözni, ami egy igazán különleges megjelenést kölcsönöz az ingatlannak és már a kapun való belépéskor érzékelni lehet. A lakások rendkívül világosak nagy méretű nyílászáróinak és tájolásának köszönhetően. Az alaprajzok funkcionálisan jól átgondoltak.A fotók a bemutatólakásban készültek. A lakásokban már hideg,- melegburkolat elhelyezésre került. Az építkezés jó ütemben zajlik. A lakásokat meg lehet tekinteni.Projekt jellemzői:- 21 db új modern, klimatizált lakás- 1-3 szobás lakások- 32-84 m² lakások- 4-23 m² terasz- Városi panorámás kilátás- Keresett lokáció, kitűnő közlekedési lehetőségekkelVárható átadás: 2025.első negyedéveAz ár az ÁFA-t (5%) nem tartalmazza.Kiváló lokációjának köszönhetően minden karnyújtásnyi távolságra megtalálható. A tömegközlekedése nagyszerű, a trolibusz, autóbusz, metró megálló pár perc sétatávolságra van.A Belváros szívében hangulatos éttermek, kávéházak, színházak, szórakozóhelyek vannak. A Városligetben lehetőség van kutyasétáltatásra, sportolásra, szabadidős tevékenységekre. Közelben található az Állatkert, Hősök tere, Andrássy út, Nyugati pályaudvar, Westend Bevásárlóközpont.A kerületben a lakás tulajdonosai ingyen parkolnak.Akár értékálló befektetésnek szánja az ingatlant rövid- vagy hosszútávú kiadásra, akár egy olyan nyugodt otthonnak, ami együtt jár a lokációval járó előnyökkel, mindenképpen érdemes mielőbb megtekintenie ezt a projektet, amit átlag feletti kivitelezés és kiváló ár-érték arány jellemez, győződjön meg erről személyesen! A Duna House teljes kínálatával kapcsolatban forduljanak hozzám bizalommal! Bankfüggetlen pénzügyi szakembereink tanácsadással, ügyintézéssel tudják segíteni Önöket álmaik, céljaik megvalósításában! Vegye igénybe díjmentes konzultációinkat! https://www.facebook.com/otthonkonnyeden Referencia szám: PR081470/LK/23329

E-mail küldése a hirdetőnek

Hibás hirdetés bejelentése

Sikeres elküldtük a hiba bejelentést.

Hirdető adatai

Drevnó Béla
E-mail cím: drevno.bela@dh.hu
Telefonszám: +36703077503
Duna House
Hirdetés feladója: Ingatlaniroda
Ingatlaniroda: Duna House
E-mail cím: kispest@dh.hu
Telefonszám: +36703077503

Képek



Térkép


Ajánlott ingatlanok

Új építésű lakás

Eladó lakás, Budapest 6. ker.

Keresés azonosító alapján: HI-2363541
  • Budapest VI.
  • Alapterület: 92 m²
  • Ár: 210 000 000 Ft (535 714 €)
  • Feltöltés dátuma: 2025.01.25.
  •  
Új építésű lakás

Eladó lakás, Budapest 8. ker.

Keresés azonosító alapján: HI-2464745
  • Budapest VIII.
  • Alapterület: 29 m²
  • Ár: 49 000 000 Ft (125 000 €)
  • Feltöltés dátuma: 2025.08.22.
  •  
Új építésű lakás

Eladó lakás, Budapest 6. ker.

Keresés azonosító alapján: HI-2495083
  • Budapest VI.
  • Alapterület: 169 m²
  • Ár: 476 434 000 Ft (1 215 393 €)
  • Feltöltés dátuma: 2025.10.30.
  • klímás
Új építésű lakás

Eladó lakás, Budapest 13. ker.

Keresés azonosító alapján: HI-2263114
  • Budapest XIII.
  • Alapterület: 52 m²
  • Ár: 109 900 000 Ft (280 357 €)
  • Feltöltés dátuma: 2024.07.16.
  • klímás
Facebook
Blogger
Twitter
Tweets by hasznaltingatla
Flickr