Eladó Lakás, Budapest 6. ker.

Ingatlan azonosító: HI-2419738

Budapest - Budapest VI., Tégla lakás


290 668 000 Ft (751 080 €)

  • Hirdetés feladója: Ingatlaniroda
  • Pontos cím: Budapest VI.
  • Típus: Eladó
  • Belső irodai azonosító: M297562-4941993
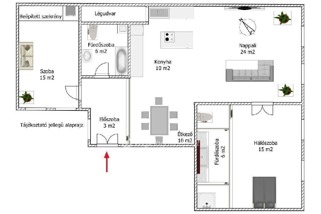
  • Alapterület: 98 m²
  • Építés éve: 1920
  • Egész szobák száma (12 m² felett): 3 db
  • Félszobák száma (6-12 m² között): 0 db
  • Emelet: 2. emelet
  • Ingatlan állapota: felújított
  • Komfort: duplakomfortos
  • Fűtés: gáz (cirko)
  • Lift: van
  • Akadálymentesített: nincs
  • Napelem van?: nincs
  • Erkély: nincs
  • Légkondicionáló: van
  • Kilátás: utcai
  • A lakás falazata: Tégla
  • Közös költség mértéke: 26000

Leírás

Elegancia és luxus a belváros szívében - exkluzív otthon a VI. kerületben - legyen Ön az első lakója! Budapest egyik legkiemelkedőbb és nívós lokációjában, a Liszt Ferenc tér mellett, a Paulay Ede utcában eladó egy teljes körűen, prémium minőségben felújított, lakberendező által megálmodott, luxus színvonalú okosotthon. A lakás jellemzői: - 98 m2 (valós méret: 106 m2), 2. emelet, napfényes, DK tájolású, elegáns és tágas terek - Utca nézetű panoráma: A belváros vibráló, mégis nyugodt atmoszférájával - Amerikai konyhás nappali és tágas étkező: Kiváló térkialakítás, tökéletes harmónia a design és a funkcionalitás között - 2 hálószoba: Kényelmes, exkluzív pihenőtér - 2 fürdőszoba: Egyik közvetlen a hálóból nyílik, épített zuhannyal, a másik elegáns fürdőkáddal - Műszakilag és esztétikailag teljes körűen felújított: Új fűtési és elektromos rendszer, prémium anyaghasználat - Új külső és belső nyílászárók: Kiemelkedő minőség és zajszigetelés - Levegőszűrős légtechnikai rendszer: Friss, tiszta levegő az otthonában - Okos otthon megoldások: Távolról vezérelhető világítás és motoros redőnyök - BOSCH prémium konyhagépek: Fali kávégép, gőzpároló, borhűtő, vízszűrő A társasház és a környék: - Elegáns, frissen felújított polgári épület: Külső és belső homlokzat újrafestve, bejárati folyosó új lapokkal burkolva, új postaládák - Panorámalift : Modern kényelem történelmi környezetben - Bérelhető parkolóhely: Az új építésű szomszédos társasházban - Csendes, forgalom csökkentett övezet: Nyugodt környezet, zsákutca, mégis minden közel - Kultúra és gasztronómia egy karnyújtásnyira: Liszt Ferenc tér, Andrássy út, Operaház, prémium éttermek és kávézók, boltok, gyógyszertár, iskola, tömegközlekedés Tökéletes választás otthonnak vagy akár gyorsan megtérülő befektetésnek! Az ingatlan per- és tehermentes, 1/1 tulajdonjoggal. A teljes vételár megfizetése után azonnal költözhető. Jöjjön el, nézze meg, és szeressen bele ebbe a különleges és minden igényt kielégítő otthonba! Keressen bizalommal a részletekért és megtekintéshez időpontért. Referenciaszám: M297562 Az OTP Ingatlanpont, mint egyetlen közvetlen banki hátterű ingatlanközvetítő társaság teljes körű ügyintézéssel áll az eladók és a vevők rendelkezésére! A kínálatunkból választott ingatlan finanszírozásához minősített fogyasztóbarát, piaci és kedvezményes hitel- és lízingkonstrukciókat kínálunk (lakásvásárlási hitel, CSOK plusz, szabad felhasználású hitel, babaváró hitel, céges hitelek, pályázatok). Az adásvételi szerződés megkötéséhez igény szerint megbízható ügyvédi közreműködést biztosítunk, és segítséget nyújtunk az adásvételhez kapcsolódó egyéb ügyek intézéséhez. Ha az új ingatlana megvásárlásához a jelenlegi ingatlanát el kell adnia, abban is szívesen segítünk. Referencia szám: M297562-HI

E-mail küldése a hirdetőnek

Hibás hirdetés bejelentése

Sikeres elküldtük a hiba bejelentést.

Hirdető adatai

Takács Zsuzsanna
E-mail cím: takacs.zsuzsanna@otpip.hu
Telefonszám: +36304953819
OTPip
Hirdetés feladója: Ingatlaniroda
Ingatlaniroda: OTPip
E-mail cím: budapest13.lehelutca@otpip.hu
Telefonszám: +36706136133

Képek



Térkép


Ajánlott ingatlanok

Tégla lakás

Eladó Lakás, Budapest 14. ker.

Keresés azonosító alapján: HI-2420847
  • Budapest XIV.
  • Alapterület: 96 m²
  • Ár: 130 000 000 Ft (335 917 €)
  • Feltöltés dátuma: 2025.05.22.
  •  
Tégla lakás

Kiadó Lakás, Budapest 2. ker.

Keresés azonosító alapján: HI-2502335
  • Budapest II.
  • Alapterület: 74 m²
  • Ár: 345 000 Ft (891 €)
  • Feltöltés dátuma: 2025.11.16.
  • klímás
Tégla lakás

Eladó Lakás, Budapest 8. ker.

Keresés azonosító alapján: HI-2488279
  • Budapest VIII.
  • Alapterület: 157 m²
  • Ár: 159 000 000 Ft (410 853 €)
  • Feltöltés dátuma: 2025.10.10.
  •  
Tégla lakás

Eladó Lakás, Budapest 6. ker.

Keresés azonosító alapján: HI-2138665
  • Budapest VI.
  • Alapterület: 99 m²
  • Ár: 144 900 000 Ft (374 419 €)
  • Feltöltés dátuma: 2024.01.17.
  •  
Facebook
Blogger
Twitter
Tweets by hasznaltingatla
Flickr