Eladó Lakás, Budapest 6. ker.

Ingatlan azonosító: HI-2508464

Budapest - Budapest VI., Új építésű lakás


78 750 000 Ft (207 237 €)

  • Hirdetés feladója: Ingatlaniroda
  • Pontos cím: Budapest VI.
  • Típus: Eladó
  • Belső irodai azonosító: M305422-5098616
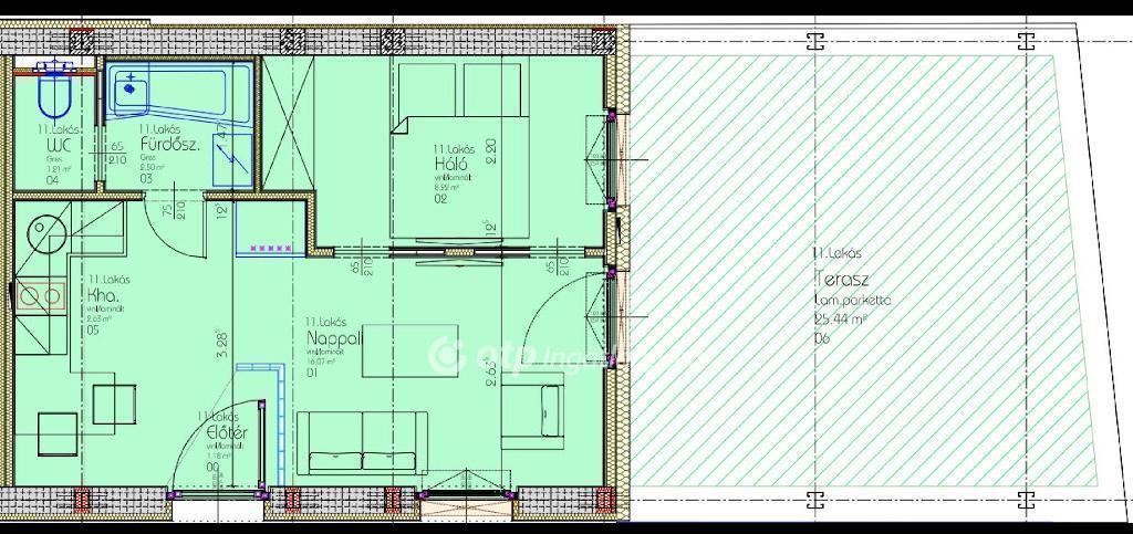
  • Alapterület: 32 m²
  • Építés éve: 2025
  • Egész szobák száma (12 m² felett): 2 db
  • Félszobák száma (6-12 m² között): 0 db
  • Emelet: 2. emelet
  • Ingatlan állapota: új építésű
  • Komfort: összkomfortos
  • Fűtés: egyéb
  • Lift: van
  • Akadálymentesített: nincs
  • Energiatanúsítvány: D
  • Napelem van?: nincs
  • Erkély: nincs
  • Légkondicionáló: nincs
  • Kilátás: utcai
  • Közös költség mértéke: 1000

Leírás

!!! Új építésű lakások a Rózsa utcában !!! A társasházban összesen 19 darab új építésű lakás kerül kialakításra, 1,5, 2 és 3 szobás elrendezéssel, kétszintes ráépítéssel, valamint a tetőtér beépítésével. Az épület teljeskörű felújításon esik át, új homlokzatot is kap. Eladó egy 32 nm-es, 1+1 félszobás, 25,5nm-es terasszal, új építésű lakás a társasház harmadik emeletén. Főbb jellemzők: motoros redőnnyel felszerelt nyílászárók. mennyezeti hűtés-fűtés rendszer és padlófűtés. alacsony fenntartási költségek. panorámalift biztosítja a kényelmet. Várható átadás: 2025. május vége. Kiváló lokáció: néhány perc sétára található az Andrássy út, a Kodály Körönd metrómegállója, valamint a Városliget, az Oktogon és a Nyugati pályaudvar is könnyen elérhető gyalogosan. A társasházban engedélyezett a rövid távú kiadás, így a lakás befektetési célra is ideális választás. Referencia szám: M305422

E-mail küldése a hirdetőnek

Hibás hirdetés bejelentése

Sikeres elküldtük a hiba bejelentést.

Hirdető adatai

Sárközi Zsolt
E-mail cím: zsolt.sarkozi@otpip.hu
Telefonszám: +36-70-735-9544
OTPip
Hirdetés feladója: Ingatlaniroda
Ingatlaniroda: OTPip
E-mail cím: falk@otpip.hu
Telefonszám: +36-70-626-5258

Képek



Térkép


Ajánlott ingatlanok

Új építésű lakás

Eladó Lakás, Budapest 11. ker.

Keresés azonosító alapján: HI-2440978
  • Budapest XI.
  • Alapterület: 80 m²
  • Ár: 178 600 000 Ft (470 000 €)
  • Feltöltés dátuma: 2025.07.04.
  • klímás
Új építésű lakás

Eladó Lakás, Budapest 13. ker.

Keresés azonosító alapján: HI-2470679
  • Budapest XIII.
  • Alapterület: 57 m²
  • Ár: 87 790 000 Ft (231 026 €)
  • Feltöltés dátuma: 2025.09.04.
  •  
Új építésű lakás

Eladó Lakás, Budapest 13. ker.

Keresés azonosító alapján: HI-2442105
  • Budapest XIII.
  • Alapterület: 36 m²
  • Ár: 70 590 000 Ft (185 763 €)
  • Feltöltés dátuma: 2025.07.08.
  •  
Új építésű lakás

Eladó Lakás, Budapest 14. ker.

Keresés azonosító alapján: HI-2442125
  • Budapest XIV.
  • Alapterület: 48 m²
  • Ár: 80 430 000 Ft (211 658 €)
  • Feltöltés dátuma: 2025.07.08.
  •  
Facebook
Blogger
Twitter
Tweets by hasznaltingatla
Flickr