Eladó lakás, Budapest 7. ker.

Ingatlan azonosító: HI-2481717

Budapest - Budapest VII., Tégla lakás


68 900 000 Ft (175 765 €)

  • Hirdetés feladója: Ingatlaniroda
  • Pontos cím: Budapest VII.
  • Típus: Eladó
  • Belső irodai azonosító: LK081322-5049239
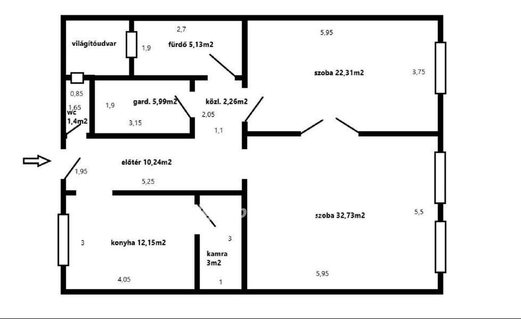
  • Alapterület: 46 m²
  • Építés éve: 1915
  • Egész szobák száma (12 m² felett): 2 db
  • Félszobák száma (6-12 m² között): 0 db
  • Fürdőszobák száma: 1 db
  • Ingatlan állapota: jó állapotú
  • Fűtés: gáz (konvektor)
  • Lift: nincs
  • Akadálymentesített: nincs
  • Napelem van?: nincs
  • Erkély: nincs
  • Légkondicionáló: nincs
  • Tájolás: dél-nyugat
  • A lakás falazata: Tégla

Leírás

Eladó világos, galériás lakás Budapesten!A lakás a főváros szívében , a Nagy-körúton belül, a 7. kerületben található. Az ingatlan tulajdonságai: -A lakás 46 m²-es, 2 egybenyíló szobás, galériás és az első emeleten található. -Különlegessége, hogy a ház csak 3 szintes, ezért az első emeleti ingatlan is világos.-Az ingatlan a múlt század elején épült, ami abszolút tükrözi a belvárosi életérzést.-A fentebb leírtak okán magas belmagasság és körfolyosó jellemzi.-Tágas, kádas fürdőszoba várja leendő lakóit, és a mellékhelyiség külön helyiségben lett kialakítva a maximális kényelem érdekében. A bulinegyed közelében található az ingatlan, mégis nyugodt környezet, udvarra néző ablakok, és csend jellemzi.A megközelíthetősége kiváló, mivel minden tömegközlekedési eszköz, pár lépés távolságra található. A Blaha Lujza tér és a New York Kávézó közvetlen közelében.Ajánlom azoknak akik imádják a városi pezsgést, szeretik a városi forgatagot, ahol minden egy karnyújtásnyira található. Befektetők számára különösen érdekes: kis átalakítással két külön bejáratú szoba saját fürdővel + közös étkezős nappali alakítható ki.A 3%-os fix lakáshitel is igényelhető rá. Hitelügyintézésben, irodánk minden további nélkül áll rendelkezésére.Remek elhelyezkedés, sokoldalú hasznosítás, klasszikus belvárosi hangulat ne maradjon le róla!Amennyiben felkeltette az érdeklődését a lehetőség, keressen bizalommal, a hét bármely napján, jöjjön el és nézzük meg együtt! Hívjon bizalommal, hétvégén is - +3620 4066872 Referencia szám: LK081322

E-mail küldése a hirdetőnek

Hibás hirdetés bejelentése

Sikeres elküldtük a hiba bejelentést.

Hirdető adatai

Szabó-Sári Boglárka
E-mail cím: sz.sari.boglarka@dh.hu
Telefonszám: +36204066872
Duna House
Hirdetés feladója: Ingatlaniroda
Ingatlaniroda: Duna House
E-mail cím: fot@dh.hu
Telefonszám: +36705774328

Képek



Térkép


Ajánlott ingatlanok

Tégla lakás

Eladó lakás, Budapest 13. ker.

Keresés azonosító alapján: HI-2479503
  • Budapest XIII.
  • Alapterület: 48 m²
  • Ár: 78 500 000 Ft (200 255 €)
  • Feltöltés dátuma: 2025.09.24.
  •  
Tégla lakás

Eladó lakás, Budapest 12. ker.

Keresés azonosító alapján: HI-2479233
  • Budapest XII.
  • Alapterület: 50 m²
  • Ár: 96 000 000 Ft (244 898 €)
  • Feltöltés dátuma: 2025.09.24.
  •  
Tégla lakás

Eladó lakás, Budapest 13. ker.

Keresés azonosító alapján: HI-2479314
  • Budapest XIII.
  • Alapterület: 143 m²
  • Ár: 200 662 000 Ft (511 893 €)
  • Feltöltés dátuma: 2025.09.24.
  •  
Tégla lakás

Eladó lakás, Budapest 14. ker.

Keresés azonosító alapján: HI-2478487
  • Budapest XIV.
  • Alapterület: 29 m²
  • Ár: 34 900 000 Ft (89 031 €)
  • Feltöltés dátuma: 2025.09.24.
  •  
Facebook
Blogger
Twitter
Tweets by hasznaltingatla
Flickr