Eladó Lakás, Budapest 7. ker.

Ingatlan azonosító: HI-2514760

Budapest - Budapest VII., Új építésű lakás


81 141 730 Ft (211 858 €)

  • Hirdetés feladója: Ingatlaniroda
  • Pontos cím: Budapest VII. Kürt utca
  • Típus: Eladó
  • Belső irodai azonosító: M319363-5112905
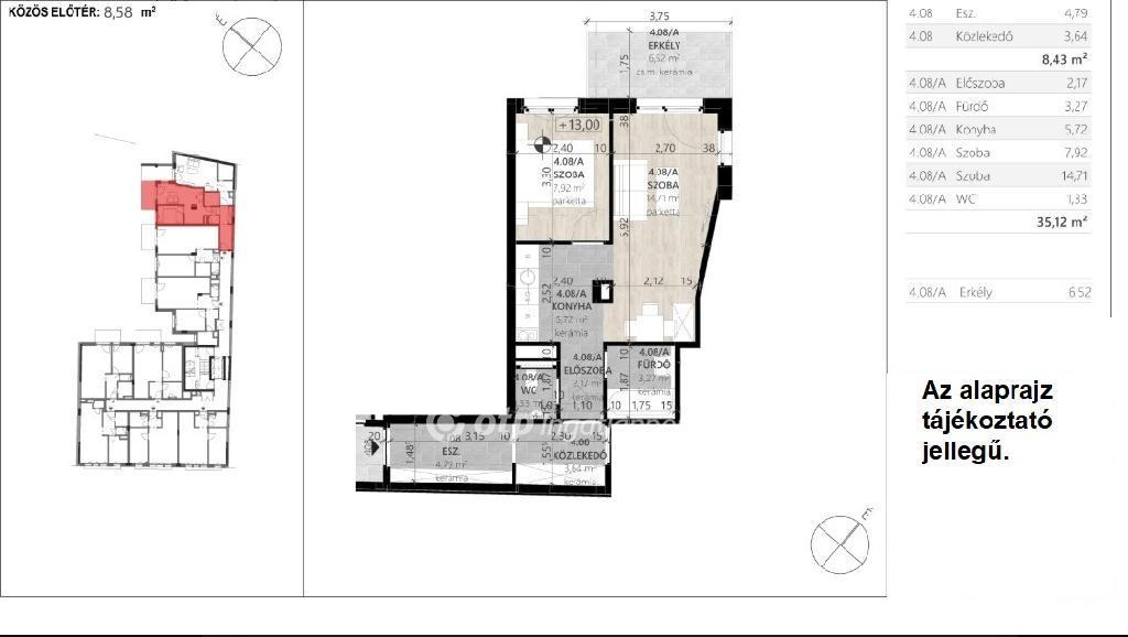
  • Alapterület: 41 m²
  • Építés éve: 2025
  • Egész szobák száma (12 m² felett): 2 db
  • Félszobák száma (6-12 m² között): 0 db
  • Emelet: 4. emelet
  • Ingatlan állapota: új építésű
  • Komfort: összkomfortos
  • Fűtés: egyéb
  • Lift: van
  • Akadálymentesített: nincs
  • Energiatanúsítvány: B
  • Napelem van?: nincs
  • Erkély: van
  • Légkondicionáló: nincs
  • Kilátás: kertre néző
  • A lakás falazata: Tégla

Leírás

ÉRTÉKÁLLÓSÁG, KORSZERŰSÉG, GAZDASÁGOSSÁG, KIVÁLÓ BEFEKTETÉS. Könnyű megközelíthetőséggel, kiváló infrastruktúra mellett a 7. kerületben Erzsébetváros szívében kínálunk újépítésű, kiemelkedő minőségű 2, - 3 szobás, teraszos lakásokat. Hőszivattyúss fűtés/hűtés rendszerű a társasház, itt a rezsiárak emelkedése nem befolyásolja a fűtési díjat.. Ezeket a lakásokat azoknak ajánljuk, akiknek fontos az energiatakarékosság és a környezetkímélő élet. A belvárosi élet kedvelőinek ideális lakhatási lehetőséget kínál, túristáknak remek szálláslehetőség, így értékálló befektetésnek is remek választás. Köszönöm megtisztelő figyelmét. Amennyiben jelenlegi ingatlana értékesítésében is segítségére lehetek, illetve az OTP teljes ingatlankínálatával kapcsolatban kérem forduljon hozzám bizalommal. Az OTP Ingatlanpont, mint egyetlen közvetlen banki hátterű ingatlanközvetítő társaság teljes körű ügyintézéssel áll eladóik és vevőik rendelkezésére! Piaci és kedvezményes hitel- valamint lízingkonstrukciókat kínálunk mint lakásvásárlási hitel, szabad felhasználású hitel, babaváró hitel, CSOK Plusz-intézés, Otthonfelújítási Támogatás, egyéb felújítási hitelek. Az adásvételi szerződés megkötéséhez igény szerint megbízható ügyvédi közreműködést is biztosítunk. Ha felkeltettem érdeklődését, ne habozzon keresni a hét bármely napján reggel 9 és este 9 között. Ügyfeleinknek minden szolgáltatásunk (valóban) díjmentes. WE SPEAK ENGLISH, FEEL FREE TO CALL ME!

E-mail küldése a hirdetőnek

Hibás hirdetés bejelentése

Sikeres elküldtük a hiba bejelentést.

Hirdető adatai

Juhász Emese
E-mail cím: emese.juhasz@otpip.hu
Telefonszám: +36-70-369-0088
OTPip
Hirdetés feladója: Ingatlaniroda
Ingatlaniroda: OTPip
E-mail cím: ulloi9@otpip.hu
Telefonszám: +36-70-620-3413

Képek



Térkép


Ajánlott ingatlanok

Új építésű lakás

Eladó Lakás, Budapest 14. ker.

Keresés azonosító alapján: HI-2410371
  • Budapest XIV. Fűrész utca
  • Alapterület: 45 m²
  • Ár: 80 198 250 Ft (209 395 €)
  • Feltöltés dátuma: 2025.05.02.
  •  
Új építésű lakás

Eladó Lakás, Budapest 3. ker.

Keresés azonosító alapján: HI-2410268
  • Budapest III. Bécsi út
  • Alapterület: 202 m²
  • Ár: 220 000 000 Ft (574 413 €)
  • Feltöltés dátuma: 2025.05.02.
  •  
Új építésű lakás

Eladó Lakás, Budapest 8. ker.

Keresés azonosító alapján: HI-2410324
  • Budapest VIII. Kálvária utca
  • Alapterület: 59 m²
  • Ár: 85 000 000 Ft (221 932 €)
  • Feltöltés dátuma: 2025.05.02.
  •  
Új építésű lakás

Eladó Lakás, Budapest 13. ker.

Keresés azonosító alapján: HI-2503549
  • Budapest XIII. Népfürdő utca
  • Alapterület: 63 m²
  • Ár: 88 890 500 Ft (232 090 €)
  • Feltöltés dátuma: 2025.11.20.
  •  
Facebook
Blogger
Twitter
Tweets by hasznaltingatla
Flickr