Eladó lakás, Budapest 8. ker.

Ingatlan azonosító: HI-2464708

Budapest - Budapest VIII., Új építésű lakás


49 000 000 Ft (128 947 €)

  • Hirdetés feladója: Ingatlaniroda
  • Pontos cím: Budapest VIII.
  • Típus: Eladó
  • Belső irodai azonosító: PR089730/LK/24251-5016269
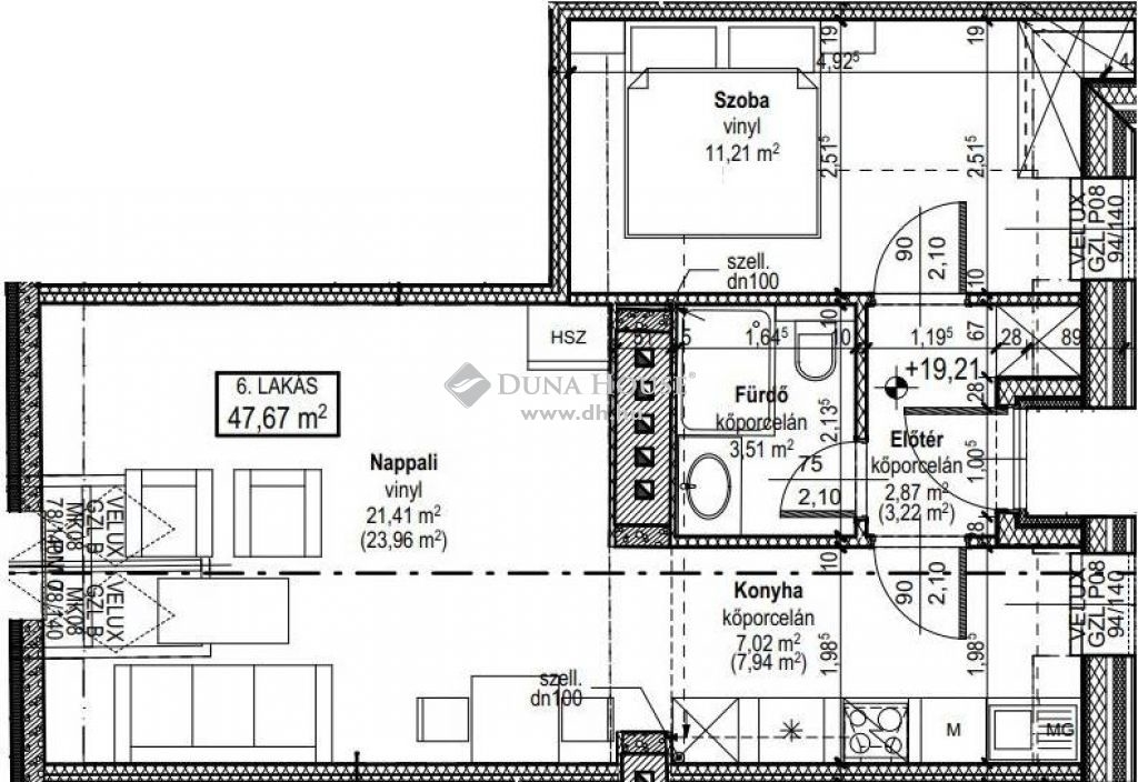
  • Alapterület: 29 m²
  • Építés éve: 2025
  • Egész szobák száma (12 m² felett): 1 db
  • Félszobák száma (6-12 m² között): 0 db
  • Fürdőszobák száma: 1 db
  • Emelet: 4. emelet
  • Ingatlan állapota: új építésű
  • Fűtés: egyéb
  • Lift: van
  • Akadálymentesített: nincs
  • Energiatanúsítvány: A
  • Napelem van?: nincs
  • Erkély: van
  • Légkondicionáló: nincs
  • Tájolás: észak
  • A lakás falazata: Tégla

Leírás

Prémium minőségű, újépítésű lakások a Corvin negyed szélén, a Kálvária térnél! A belváros szívében, a Corvin negyed szélén, a mára nagyrészt megújult városnegyedben kínálunk magas műszaki színvonalú lakásokat a belvárosi pezsgés szerelmeseinek. A lakásokat egyaránt ajánljuk befektetőknek, fiataloknak és családosoknak is! Kínálunk otthonokat garzonoktól a 4 szobás lakásokig, így mindenki megtalálhatja a számára kedvező lakásméretet. A 8. kerület társasházaihoz viszonyítva ez a ház kimagasló műszaki tartalommal és beépített technológiákkal épült meg: magas színvonalú, modern hőszivattyús fűtés- és hűtésrendszer, valamint igényes gépészet, minden, a mai elvárásoknak megfelelően, extra hőszigeteléssel, három rétegű üvegezésű nyílászárókkal, led lámpákkal. A lakóparkban 40 db, modern stílusú, változatos alaprajzú lakás került megépítésre, amiket letisztult design jellemez. Központi elhelyezkedése, kiváló közlekedési lehetősége (pár perc sétával két metróvonal, valamint a 4-6 villamos is elérhető, a háztól néhány méterre van a 9-es és 909-es busz, valamint a 83-as troli megállója) és az egyetemek közelsége miatt könnyen, jó áron bérbeadhatók a lakások. A ház közvetlen környezetében óvodák és iskolák, üzletek, éttermek és kávézók is megtalálhatók. Az épület tervezői a modern, letisztult, de időtálló design mellett-, az átgondolt, élhető alaprajzi kialakításra is nagy hangsúlyt fektettek. Az épület jelenleg 99%-os készültségen áll, az átadás augusztus vége szeptember elejére várható, már csak az EON jóváhagyására vár a projekt, ami nem a készültségtől függ, hanem az átfutási időtől. További részletekért keressen bizalommal minket! A Duna House teljes kínálatával kapcsolatban forduljanak hozzám bizalommal! Bankfüggetlen pénzügyi szakembereink tanácsadással, ügyintézéssel tudják segíteni Önöket álmaik, céljaik megvalósításában! Vegye igénybe díjmentes konzultációinkat! https://www.facebook.com/otthonkonnyeden Referencia szám: PR089730/LK/24251

E-mail küldése a hirdetőnek

Hibás hirdetés bejelentése

Sikeres elküldtük a hiba bejelentést.

Hirdető adatai

Drevnó Béla
E-mail cím: drevno.bela@dh.hu
Telefonszám: +36703077503
Duna House
Hirdetés feladója: Ingatlaniroda
Ingatlaniroda: Duna House
E-mail cím: kispest@dh.hu
Telefonszám: +36703077503

Képek



Térkép


Ajánlott ingatlanok

Új építésű lakás

Eladó lakás, Budapest 6. ker.

Keresés azonosító alapján: HI-2495083
  • Budapest VI.
  • Alapterület: 169 m²
  • Ár: 476 434 000 Ft (1 253 774 €)
  • Feltöltés dátuma: 2025.10.30.
  • klímás
Új építésű lakás

Eladó lakás, Budapest 14. ker.

Keresés azonosító alapján: HI-2488667
  • Budapest XIV.
  • Alapterület: 50 m²
  • Ár: 79 590 000 Ft (209 447 €)
  • Feltöltés dátuma: 2025.10.11.
  • klímás
Új építésű lakás

Eladó lakás, Budapest 8. ker.

Keresés azonosító alapján: HI-2464733
  • Budapest VIII.
  • Alapterület: 64 m²
  • Ár: 104 000 000 Ft (273 684 €)
  • Feltöltés dátuma: 2025.08.22.
  •  
Új építésű lakás

Eladó lakás, Budapest 11. ker.

Keresés azonosító alapján: HI-2432304
  • Budapest XI.
  • Alapterület: 86 m²
  • Ár: 184 900 000 Ft (486 579 €)
  • Feltöltés dátuma: 2025.06.17.
  •  
Facebook
Blogger
Twitter
Tweets by hasznaltingatla
Flickr