Eladó Lakás, Budapest 8. ker.

Ingatlan azonosító: HI-2544099

Budapest - Budapest VIII., Tégla lakás


84 900 000 Ft (216 582 €)

  • Hirdetés feladója: Ingatlaniroda
  • Pontos cím: Budapest VIII. Baross utca
  • Típus: Eladó
  • Belső irodai azonosító: M321482-5151482
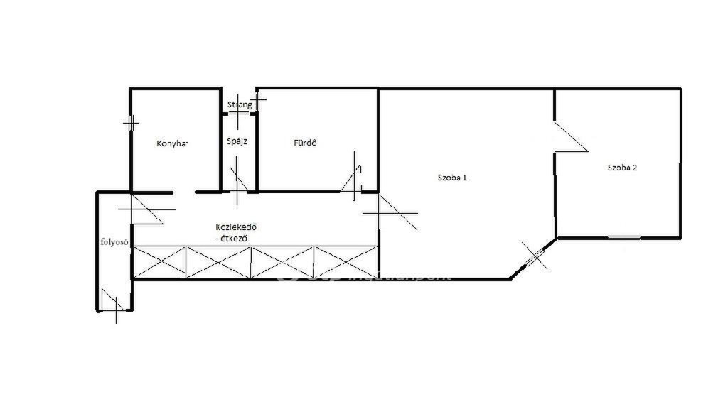
  • Alapterület: 65 m²
  • Építés éve: 1940
  • Egész szobák száma (12 m² felett): 2 db
  • Félszobák száma (6-12 m² között): 0 db
  • Ingatlan állapota: felújított
  • Komfort: komfortos
  • Fűtés: gáz (konvektor)
  • Lift: van
  • Akadálymentesített: nincs
  • Energiatanúsítvány: D
  • Napelem van?: nincs
  • Erkély: nincs
  • Légkondicionáló: nincs
  • Kilátás: udvari
  • A lakás falazata: Tégla
  • Közös költség mértéke: 19500

Leírás

***Az Otthon Start Program 3%-os fix kamatozású hitel feltételeinek megfelelő lakás!*** *** Fiatal párok, egyetemisták figyelem!!! *** Eladó Budapest VIII. kerület, Nagykörúton belül, a Palotanegyedben, egy 65 nm alapterületű, 2 szobás, I. emeleti, szépen felújított, belső udvarra néző, belvárosi, társasházi lakás. Az ingatlan egy rendezett, liftes, polgári társasházban található. A társasház csendes, biztonságos, szépen karbantartott. A lakóközösség fiatalos és barátságos, emiatt az emberek szeretnek ott élni. A lakás 2 éve teljeskörű felújításon esett át, aminek köszönhetően a teljes villany-, és vízvezeték csere megtörtént. A lakás nagy ablakainak köszönhetően szép, világos, napfényes. A szobák tágas belső terekkel rendelkeznek, az otthon melegét gázkonvektor biztosítja, a meleg vizet villanybojler állítja elő. A nappaliba légkondicionáló lett felszerelve. A fotókon látható teljes berendezés a vételár részét képezi. A lakás kiváló adottságokkal rendelkezik, és tökéletes választás lehet fiatalok számára is első otthonnak, illetve főiskolásoknak/egyetemistáknak egyaránt. A közös költség 19.500,- Ft. A közüzemi számlák egyedi mérőórák alapján kerülnek elszámolásra. A lakásban minden kézre áll, az új lakó megkapja a kulcsot és már költözhet is, 1/1 tulajdoni hányadú, tehermentes. A környék rendkívül jó infrastruktúrával rendelkezik: a közelben számos élelmiszerbolt, Corvin Plaza, óvoda, iskola, orvosi rendelő, posta, bank található. Néhány perces sétatávolságon belül több felsőoktatási intézmény is könnyen elérhető (ELTE, SOTE, Pázmány Péter Katolikus Egyetem, SOTE, Óbudai Egyetem). Emiatt befektetőknek is ideális választás lehet, hiszen könnyen, gyorsan kiadható. A Nagykörút 1 perc sétával elérhető. Kitűnő elhelyezkedésének köszönhetően tömegközlekedéssel (autóbusz, trolibusz, villamos, metró) a város bármely pontja könnyedén elérhető. Ajánlom ezt a kedves lakást fiatal pároknak, egyetemistáknak első lakásként. Szükség esetén teljeskörű ügyintézéssel (kedvezményes hitelkonstrukcióval, megbízható ügyvédi közreműködéssel) állok rendelkezésére! Amennyiben hirdetésem felkeltette az érdeklődését, kérdése van, illetve szeretné megtekinteni a lakást, kérem, hívjon, bizalommal! Referenciaszám: M321482

E-mail küldése a hirdetőnek

Hibás hirdetés bejelentése

Sikeres elküldtük a hiba bejelentést.

Hirdető adatai

Juhász Emese
E-mail cím: emese.juhasz@otpip.hu
Telefonszám: +36-70-369-0088
OTPip
Hirdetés feladója: Ingatlaniroda
Ingatlaniroda: OTPip
E-mail cím: ulloi9@otpip.hu
Telefonszám: +36-70-620-3413

Képek



Térkép


Ajánlott ingatlanok

Tégla lakás

Eladó Lakás, Budapest 5. ker.

Keresés azonosító alapján: HI-2544153
  • Budapest V. Szemere utca
  • Alapterület: 86 m²
  • Ár: 239 000 000 Ft (609 694 €)
  • Feltöltés dátuma: 2026.03.02.
  • klímás
Tégla lakás

Eladó Lakás, Budapest 5. ker.

Keresés azonosító alapján: HI-2544102
  • Budapest V. Sas utca
  • Alapterület: 72 m²
  • Ár: 109 000 000 Ft (278 061 €)
  • Feltöltés dátuma: 2026.03.02.
  •  
Tégla lakás

Eladó Lakás, Budapest 11. ker.

Keresés azonosító alapján: HI-2544047
  • Budapest XI. Solt utca
  • Alapterület: 109 m²
  • Ár: 149 000 000 Ft (380 102 €)
  • Feltöltés dátuma: 2026.03.02.
  •  
Tégla lakás

Eladó Lakás, Budapest 19. ker.

Keresés azonosító alapján: HI-2544144
  • Budapest XIX. Vas Gereben utca
  • Alapterület: 29 m²
  • Ár: 38 500 000 Ft (98 214 €)
  • Feltöltés dátuma: 2026.03.02.
  •  
Facebook
Blogger
Twitter
Tweets by hasznaltingatla
Flickr