Eladó Lakás, Budapest 8. ker.

Ingatlan azonosító: HI-2531320

Budapest - Budapest VIII., Tégla lakás


100 000 000 Ft (255 102 €)

  • Hirdetés feladója: Ingatlaniroda
  • Pontos cím: Budapest VIII. József körút
  • Típus: Eladó
  • Belső irodai azonosító: M320627-5139613
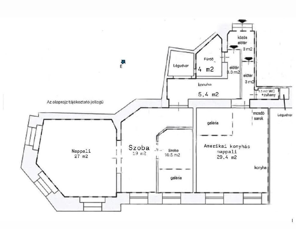
  • Alapterület: 106 m²
  • Egész szobák száma (12 m² felett): 3 db
  • Félszobák száma (6-12 m² között): 1 db
  • Emelet: 3. emelet
  • Ingatlan állapota: felújított
  • Komfort: duplakomfortos
  • Fűtés: gáz (cirko)
  • Lift: nincs
  • Akadálymentesített: nincs
  • Napelem van?: nincs
  • Erkély: nincs
  • Légkondicionáló: van
  • Kilátás: utcai
  • Tájolás: dél
  • A lakás falazata: Tégla
  • Közös költség mértéke: 38000

Leírás

Felújított, világos lakás a Corvin negyedben! 2 lakás egyben (Otthon Start támogatásra is alkalmas!) Budapest VIII. kerületében, a Corvin negyedben, a József körúton eladó egy 106 m2-es, 3+1 félszobás, felújított, világos, 3. emeleti lakás. Az ingatlan egyik különlegessége, hogy egyben és két külön lakásként is funkcionálhat. Jelenleg egy közös bejáratról, de külön megközelíthetően található benne: - egy 35 m2-es garzonlakás konyhával és fürdőszobával - valamint egy 71 m2-es, 3 szobás lakás Ez a kialakítás ideális lehet két generáció együttélésére, lakás-iroda kombinációra, illetve befektetési célra is, hiszen a lakrészek külön-külön vagy együtt is bérbe adhatók. Műszaki és esztétikai jellemzők: - A lakás 2024-ig több ütemben felújításon esett át (vezetékcsere, burkolatcsere, fűtéskorszerűsítés, konyhafelújítás, szaniterek, nyílászárók, stb.) - Legutóbb kondenzációs kazáncsere történt, amely korszerű és hatékony fűtést biztosít - Rendkívül világos, körbenapozott terek - Hang- és hőszigetelt műanyag nyílászárók, a József körútra néző ablakokkal - Két helyiségben galéria (kb. 1,7 m belmagassággal), amely tovább növeli a hasznos teret - Ízléses, egyedi burkolatok és hangulatos csillárok Társasház: - Jó állapotú, rendezett ház - Jó lakóközösség Jogi helyzet: -1/1 tulajdon -Tehermentes - Rövid időn belül költözhető A gépek, berendezések, bútorok ára 10 mill. Ft, mely kötelezően megvásárolandó! A kiváló elhelyezkedésnek és közlekedésnek köszönhetően az ingatlan befektetésre is kiváló, akár két teljesen szeparált lakásként is kiadható. Amennyiben az ingatlan felkeltette az érdeklődését, kérem, vegye fel velem a kapcsolatot! Azonosító szám: M320627 Referencia szám: M320627

E-mail küldése a hirdetőnek

Hibás hirdetés bejelentése

Sikeres elküldtük a hiba bejelentést.

Hirdető adatai

Fodor Zoltán
E-mail cím: zoltan.fodor@otpip.hu
Telefonszám: +36-70-675-2821
OTPip
Hirdetés feladója: Ingatlaniroda
Ingatlaniroda: OTPip
E-mail cím: pannonia@otpip.hu
Telefonszám: +36707082439

Képek



Térkép


Ajánlott ingatlanok

Tégla lakás

Eladó Lakás, Budapest 14. ker.

Keresés azonosító alapján: HI-2542306
  • Budapest XIV.
  • Alapterület: 93 m²
  • Ár: 99 000 000 Ft (252 551 €)
  • Feltöltés dátuma: 2026.02.28.
  •  
Tégla lakás

Eladó Lakás, Budapest 8. ker.

Keresés azonosító alapján: HI-2542785
  • Budapest VIII. József körút
  • Alapterület: 63 m²
  • Ár: 90 000 000 Ft (229 592 €)
  • Feltöltés dátuma: 2026.03.02.
  • klímás
Tégla lakás

Eladó Lakás, Budapest 13. ker.

Keresés azonosító alapján: HI-2507273
  • Budapest XIII.
  • Alapterület: 36 m²
  • Ár: 58 900 000 Ft (150 255 €)
  • Feltöltés dátuma: 2025.11.28.
  •  
Tégla lakás

Eladó Lakás, Budapest 13. ker.

Keresés azonosító alapján: HI-2533279
  • Budapest XIII.
  • Alapterület: 60 m²
  • Ár: 79 900 000 Ft (203 827 €)
  • Feltöltés dátuma: 2026.02.05.
  •  
Facebook
Blogger
Twitter
Tweets by hasznaltingatla
Flickr