Eladó Lakás, Budapest 8. ker.

Ingatlan azonosító: HI-2563884

Budapest - Budapest VIII., Tégla lakás


124 000 000 Ft (338 798 €)

  • Hirdetés feladója: Ingatlaniroda
  • Pontos cím: Budapest VIII. Bródy Sándor utca
  • Típus: Eladó
  • Belső irodai azonosító: M323631-5207049
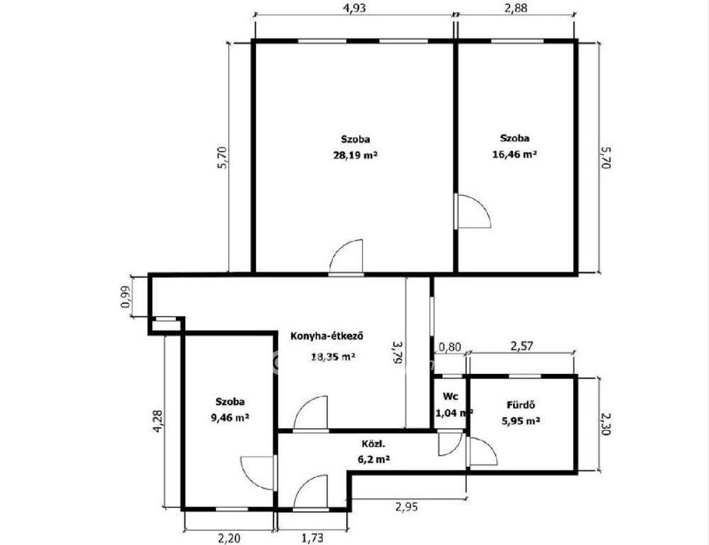
  • Alapterület: 86 m²
  • Egész szobák száma (12 m² felett): 4 db
  • Félszobák száma (6-12 m² között): 0 db
  • Emelet: 2. emelet
  • Ingatlan állapota: felújított
  • Komfort: összkomfortos
  • Fűtés: gáz (cirko)
  • Lift: van
  • Akadálymentesített: nincs
  • Napelem van?: nincs
  • Erkély: nincs
  • Légkondicionáló: nincs
  • Kilátás: udvari
  • A lakás falazata: Tégla
  • Közös költség mértéke: 22200

Leírás

Szuper állapotú, felújított, 86nm-es, étkező/ nappali + 3 szobás, LÉGKONDÍCIONÁLT lakás eladó a PALOTANEGYEDBEN! Az ingatlan BUDAPEST tényleges BELVÁROSÁBAN, a Bródy Sándor utcán helyezkedik el. Az épület karbantartott, jó állapotú, szép belső udvarral. Az épület egyedi gázcirkó fűtéssel ellátott, műanyag nyílászárói újszerűek, hő- és hangszigeteltek. A lakás elosztása kiváló, sok ablakfelületéből adódóan kellőképpen napfényes. A lakás megjelenése letisztult és burkolatai újszerű, szép állapotúak. Az ingatlan fenntartása kedvező, jól optimalizálható. Társasházi gazdálkodás rendkívül alapos, az állagmegóvási/fejlesztési keretek nagyon jól szervezettek. Közlekedése páratlan, számos villamos, troli, busz és metró megállója járótávolságra helyezkedik el. Az ingatlan megfelel a lakáscélú hitel feltételeinek. Az OTP Bankcsoport teljes körű ügyintézésével állunk az eladók és a vevők rendelkezésére! A kínálatunkból választott ingatlan finanszírozásához kedvezményes hitelkonstrukciókat kínálunk. Az adásvételi szerződés megkötéséhez igény szerint megbízható ügyvédi közreműködést biztosítunk, és segítséget nyújtunk az adásvételhez kapcsolódó ügyek intézéséhez. Az OTP Ingatlanponttal bármilyen helyzetben is biztonságosan tud együttműködni. Cégünk digitális rendszerrel dolgozik már közel 7 éve, így vételi vagy eladási szándékát akár otthonról is intézheti. Referencia szám: M323631

E-mail küldése a hirdetőnek

Hibás hirdetés bejelentése

Sikeres elküldtük a hiba bejelentést.

Hirdető adatai

Szekeres Tünde
E-mail cím: tunde.szekeres@otpip.hu
Telefonszám: +36-30-942-5661
OTPip
Hirdetés feladója: Ingatlaniroda
Ingatlaniroda: OTPip
E-mail cím: zsoltutca@otpip.hu
Telefonszám: +36-30-276-9132

Képek



Térkép


Ajánlott ingatlanok

Tégla lakás

Eladó Lakás, Budapest 10. ker.

Keresés azonosító alapján: HI-2563894
  • Budapest X. Üllői út
  • Alapterület: 33 m²
  • Ár: 49 800 000 Ft (136 066 €)
  • Feltöltés dátuma: 2026.04.22.
  •  
Tégla lakás

Eladó Lakás, Budapest 8. ker.

Keresés azonosító alapján: HI-2563895
  • Budapest VIII. Mátyás tér
  • Alapterület: 34 m²
  • Ár: 52 900 000 Ft (144 536 €)
  • Feltöltés dátuma: 2026.04.22.
  • klímás
Tégla lakás

Eladó Lakás, Budapest 13. ker.

Keresés azonosító alapján: HI-2552712
  • Budapest XIII. Balzac utca
  • Alapterület: 30 m²
  • Ár: 73 000 000 Ft (199 454 €)
  • Feltöltés dátuma: 2026.03.21.
  •  
Tégla lakás

Eladó Lakás, Budapest 6. ker.

Keresés azonosító alapján: HI-2546781
  • Budapest VI. Szinyei Merse utca
  • Alapterület: 54 m²
  • Ár: 84 900 000 Ft (231 967 €)
  • Feltöltés dátuma: 2026.03.05.
  •  
Facebook
Blogger
Twitter
Tweets by hasznaltingatla
Flickr