Eladó Lakás, Budapest 9. ker.

Ingatlan azonosító: HI-2487782

Budapest - Budapest IX., Tégla lakás


93 900 000 Ft (256 557 €)

  • Hirdetés feladója: Ingatlaniroda
  • Pontos cím: Budapest IX.
  • Típus: Eladó
  • Belső irodai azonosító: M313394-5057929
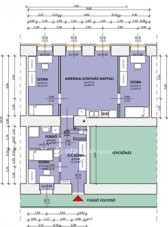
  • Alapterület: 69 m²
  • Építés éve: 1920
  • Egész szobák száma (12 m² felett): 3 db
  • Félszobák száma (6-12 m² között): 1 db
  • Ingatlan állapota: jó állapotú
  • Komfort: duplakomfortos
  • Fűtés: gáz (cirko)
  • Lift: nincs
  • Akadálymentesített: nincs
  • Napelem van?: nincs
  • Erkély: nincs
  • Légkondicionáló: nincs
  • Kilátás: utcai
  • Tájolás: észak-nyugat
  • A lakás falazata: Tégla
  • Közös költség mértéke: 15000

Leírás

ENGLISH DESCRIPTION BELOW!!! Eladó lakás a Kálvin tér közelében – polgári hangulat, tágas terek! Budapest szívében, a Kálvin tér közvetlen közelében eladó egy 72 nm-es, téglaépítésű, polgári lakás, amely a múlt század eleganciáját ötvözi a modern kényelmi megoldásokkal. Az ingatlan 3 egész szobával és 1 félszobával rendelkezik, a 4,5 méteres belmagasságnak köszönhetően rendkívül tágas és világos terekkel. A lakás duplakomfortos, gáz-cirkó fűtéssel felszerelt, belső és külső állapota is jó, így azonnal költözhető. Teljesen bútorozott és berendezett, így az új tulajdonos akár azonnal birtokba veheti vagy tovább kiadhatja. Nagy előnye, hogy jelenleg is megbízható bérlők lakják, akik szívesen maradnának. Ez azonnali, stabil és folyamatos hozamot jelenthet befektetők számára. A társasház rendezett, zárt lépcsőházzal rendelkezik, a közös költség mindössze 15.000 Ft. Parkolás közterületen, fizetős zónában lehetséges. Főbb jellemzők: 72 nm-es téglaépítésű lakás 3 szoba + 1 félszoba 4,5 méteres belmagasság, klasszikus polgári hangulat Duplakomfort, gáz-cirkó fűtés Bútorozott, azonnal költözhető Jó állapotú, rendezett társasház Stabil bérlők, biztos hozam befektetőknek Kiváló közlekedés, Kálvin tér néhány perc sétára Ez a lakás igazi ritkaság a belvárosban: tágas, napfényes, polgári stílusú otthon, amely ideális választás saját célra és befektetésre egyaránt. ⸻ Spacious apartment near Kálvin Square – classic charm, modern comfort! For sale in the heart of Budapest, just steps from Kálvin Square: a 72 sqm brick-built apartment combining timeless elegance with modern comfort. The property features 3 full-size rooms and 1 smaller room. Thanks to the 4.5 m ceiling height, the spaces feel exceptionally bright and airy. The flat is fully equipped with gas central heating, double bathrooms, and is in good internal and external condition — move-in ready. It is sold furnished and fully equipped. A major advantage: reliable tenants currently live in the property and would be happy to stay if purchased for investment purposes, ensuring immediate and stable rental income. The building is well-maintained with a closed staircase, and the common cost is only 15,000 HUF/month. Parking is available in the surrounding paid public areas. Main features: 72 sqm brick-built apartment 3 rooms + 1 smaller room 4.5 m ceiling height, classic bourgeois charm Double bathroom, gas heating system Fully furnished, move-in ready Well-kept building Reliable tenants, secure rental income Excellent location – Kálvin Square just a few minutes’ walk A true gem in downtown Budapest — a spacious, sunlit home with historic character, perfect both for investors and for those seeking a distinctive city residence. Referencia szám: M313394-HI

E-mail küldése a hirdetőnek

Hibás hirdetés bejelentése

Sikeres elküldtük a hiba bejelentést.

Hirdető adatai

Gregoryan Artur
E-mail cím: artur.gregoryan@otpip.hu
Telefonszám: +36706300162
OTPip
Hirdetés feladója: Ingatlaniroda
Ingatlaniroda: OTPip
E-mail cím: pannonia@otpip.hu
Telefonszám: +36707082439

Képek



Térkép


Ajánlott ingatlanok

Tégla lakás

Eladó Lakás, Budapest 8. ker.

Keresés azonosító alapján: HI-2418312
  • Budapest VIII.
  • Alapterület: 101 m²
  • Ár: 144 000 000 Ft (393 443 €)
  • Feltöltés dátuma: 2025.05.15.
  •  
Tégla lakás

Eladó Lakás, Budapest 7. ker.

Keresés azonosító alapján: HI-2547666
  • Budapest VII.
  • Alapterület: 41 m²
  • Ár: 67 900 000 Ft (185 519 €)
  • Feltöltés dátuma: 2026.03.07.
  •  
Tégla lakás

Eladó Lakás, Budapest 4. ker.

Keresés azonosító alapján: HI-2554429
  • Budapest IV.
  • Alapterület: 37 m²
  • Ár: 52 700 000 Ft (143 989 €)
  • Feltöltés dátuma: 2026.03.25.
  •  
Tégla lakás

Eladó Lakás, Budapest 20. ker.

Keresés azonosító alapján: HI-2565286
  • Budapest XX.
  • Alapterület: 65 m²
  • Ár: 109 900 000 Ft (300 273 €)
  • Feltöltés dátuma: 2026.04.26.
  • klímás
Facebook
Blogger
Twitter
Tweets by hasznaltingatla
Flickr