Eladó lakás, Debrecen

Ingatlan azonosító: HI-2536809

Hajdú-Bihar megye - Debrecen, Új építésű lakás


222 000 000 Ft (611 570 €)

  • Hirdetés feladója: Ingatlaniroda
  • Pontos cím: Debrecen Egyetem sugárút
  • Típus: Eladó
  • Belső irodai azonosító: LK083993-5113466
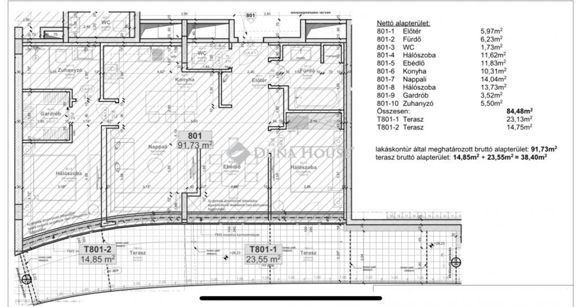
  • Alapterület: 91 m²
  • Építés éve: 2020
  • Egész szobák száma (12 m² felett): 3 db
  • Félszobák száma (6-12 m² között): 0 db
  • Fürdőszobák száma: 2 db
  • Emelet: 8. emelet
  • Ingatlan állapota: új építésű
  • Fűtés: egyéb
  • Lift: van
  • Akadálymentesített: nincs
  • Napelem van?: nincs
  • Erkély: van
  • Légkondicionáló: nincs
  • Tájolás: dél
  • A lakás falazata: Tégla

Leírás

Egyetem Tower Debrecen tetején, ez nem ingatlan ez életstílus!Ez nem csak egy lakás, ez státuszszimbólum. Az Egyetem Tower legfelső szintjén kínáljuk eladásra az utolsó elérhető lakást és nem is akármilyet.- 84 m² letisztult luxus + 38 m² privát terasz, - Páratlan panoráma, ami minden este lelépteti a Netflixet- Gépesített designer konyha, nappali, két háló, dupla fürdő, gardrób- Hőszivattyús mennyezeti hűtés-fűtés, padlófűtés a kényelem új szintje- Wellness a tetőn: jakuzzi, medence, szauna, napozóterasz privát, csak a lakóknak- 24/7 portaszolgálat, zárt parkoló, teljes biztonságEgyetlen ilyen lakás Debrecenben.

E-mail küldése a hirdetőnek

Hibás hirdetés bejelentése

Sikeres elküldtük a hiba bejelentést.

Hirdető adatai

dr. Urszuly Gábor
E-mail cím: urszuly.gabor@dh.hu
Telefonszám: +36308254142
Duna House
Hirdetés feladója: Ingatlaniroda
Ingatlaniroda: Duna House
E-mail cím: db.derek@dh.hu
Telefonszám: +3652756575

Képek



Térkép


Ajánlott ingatlanok

Új építésű lakás

Eladó lakás, Debrecen

Keresés azonosító alapján: HI-2536789
  • Debrecen Kartács utca
  • Alapterület: 48 m²
  • Ár: 72 000 000 Ft (198 347 €)
  • Feltöltés dátuma: 2026.02.12.
  •  
Új építésű lakás

Eladó lakás, Debrecen

Keresés azonosító alapján: HI-2536802
  • Debrecen Vörösmarty utca
  • Alapterület: 65 m²
  • Ár: 99 000 000 Ft (272 727 €)
  • Feltöltés dátuma: 2026.02.12.
  •  
Családi ház

Eladó ház, Debrecen

Keresés azonosító alapján: HI-2536818
  • Debrecen Boldogkert utca
  • Alapterület: 108 m²
  • Telekterület: 400 m²
  • Ár: 215 000 000 Ft (592 287 €)
  • Feltöltés dátuma: 2026.02.12.
  •  
Panel lakás

Eladó lakás, Debrecen

Keresés azonosító alapján: HI-2536801
  • Debrecen Sárvári Pál utca
  • Alapterület: 73 m²
  • Ár: 79 500 000 Ft (219 008 €)
  • Feltöltés dátuma: 2026.02.12.
  •  
Facebook
Blogger
Twitter
Tweets by hasznaltingatla
Flickr