Eladó Lakás, Debrecen

Ingatlan azonosító: HI-2571964

Hajdú-Bihar megye - Debrecen, Tégla lakás


62 900 000 Ft (175 209 €)

  • Hirdetés feladója: Ingatlaniroda
  • Pontos cím: Debrecen
  • Típus: Eladó
  • Belső irodai azonosító: M319292-5198206
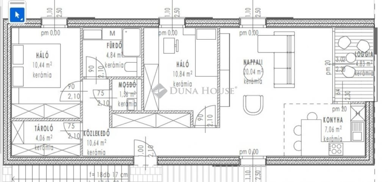
  • Alapterület: 55 m²
  • Építés éve: 1980
  • Egész szobák száma (12 m² felett): 2 db
  • Félszobák száma (6-12 m² között): 0 db
  • Emelet: 3. emelet
  • Ingatlan állapota: felújított
  • Komfort: összkomfortos
  • Fűtés: gáz (cirko)
  • Lift: nincs
  • Akadálymentesített: nincs
  • Napelem van?: nincs
  • Erkély: nincs
  • Légkondicionáló: nincs
  • Kilátás: udvari
  • A lakás falazata: Tégla
  • Közös költség mértéke: 8510000

Leírás

Debrecenben, a Dobozi lakótelep legkedveltebb részén, a Műszaki Egyetemtől 7 perc sétára, eladó egy 55 m2-es, 2 szobás teljesen felújított, loggiás tégla lakás. Az ingatlan egy 4 emeletes tömbház 3. emeletén található. A lakás 2025-ben esett át egy teljes körű felújításon, ami mind arculatban, mind műszakilag egy modern, fiatalos lakássá változtatta az ingatlant. Korszerű központi fűtés, új villamos hálózat, minőségi szaniterek és burkolatok tehetik energiatakarékosabbá és kényelmesebbé a lakást új lakói számára. A konyhában új beépített szekrény található tűzhellyel, páraelszívóval és hűtőszekrénnyel felszerelve. Az előszobában praktikus előszoba bútor kapott helyett, ami a konyhabútorral együtt a vételár részét képezi. Az ingatlan csendes környezetben található, de mégis a város egyik legfrekventáltabb környékén. Kiváló közlekedéssel rendelkezik, több buszjárat is található a környéken. Óvoda, Iskola, egészségügyi és kereskedelmi létesítmények mind 300 méteren belül elérhetőek. Az ingatlan elhelyezkedése és megújult állapota miatt, kiváló választás mindazoknak akik népszerű környéken keresnek modern, felújított otthont, ahol minden adott ahhoz, hogy kényelmesebbé tegye a mindennapi életet. Az ingatlan főbb paraméterei: - 55 m2 -es, 2 szobás, 3. emeleti lakás - 4,5 m2 loggia - központi fűtés radiátorokkal - új villamos hálózat - hűtő-fűtő klima - műanyag, hőszigetelt nyílászárók redőnnyel ellátva - a szobákban laminált parketta található, a többi helységben hidegburkolat - beépített, gépesített konyhabútor - praktikus előszoba bútor - műanyag, biztonsági bejárati ajtó - a pincében 5 m2-es saját tároló - az ingatlan jelenleg nem lakott, AZONNAL BIRTOKBA VEHETŐ További információért hívjon bizalommal, akár hétvégén is. Megtekintésre telefonos egyeztetés alapján van lehetőség. Kedvezményes kamatozású lakásvásárlási és felújítási hitelek, BABAVÁRÓ, CSOK, OTTHON START HITEL az OTP hátterével irodánkban. Referencia szám: M319292

E-mail küldése a hirdetőnek

Hibás hirdetés bejelentése

Sikeres elküldtük a hiba bejelentést.

Hirdető adatai

Vetrócki Benjámin
E-mail cím: benjamin.vetrocki@otpip.hu
Telefonszám: +36-20-807-6997
OTPip
Hirdetés feladója: Ingatlaniroda
Ingatlaniroda: OTPip
E-mail cím: debrecenkurtos@otpip.hu
Telefonszám: +36-20-528-8700

Képek



Térkép


Ajánlott ingatlanok

Tégla lakás

Eladó Lakás, Debrecen

Keresés azonosító alapján: HI-2572580
  • Debrecen
  • Alapterület: 52 m²
  • Ár: 64 900 000 Ft (180 780 €)
  • Feltöltés dátuma: 2026.05.18.
  •  
Üzletházban

Eladó Üzlethelyiség, Debrecen

Keresés azonosító alapján: HI-2572578
  • Debrecen
  • Alapterület: 27 m²
  • Ár: 25 900 000 Ft (72 145 €)
  • Feltöltés dátuma: 2026.05.18.
  •  
Családi ház

Eladó Ház, Debrecen

Keresés azonosító alapján: HI-2571950
  • Debrecen
  • Alapterület: 166 m²
  • Telekterület: 334 m²
  • Ár: 239 000 000 Ft (665 738 €)
  • Feltöltés dátuma: 2026.05.16.
  •  
Panel lakás

Eladó Lakás, Debrecen

Keresés azonosító alapján: HI-2571947
  • Debrecen
  • Alapterület: 55 m²
  • Ár: 74 900 000 Ft (208 635 €)
  • Feltöltés dátuma: 2026.05.16.
  •  
Facebook
Blogger
Twitter
Tweets by hasznaltingatla
Flickr