Eladó Lakás, Edelény

Ingatlan azonosító: HI-2539048

Borsod-Abaúj-Zemplén megye - Edelény, Tégla lakás


31 900 000 Ft (85 067 €)

  • Hirdetés feladója: Ingatlaniroda
  • Pontos cím: Edelény
  • Típus: Eladó
  • Belső irodai azonosító: M320851-5151632
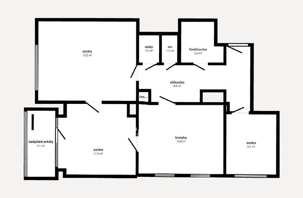
  • Alapterület: 66 m²
  • Építés éve: 1984
  • Egész szobák száma (12 m² felett): 2 db
  • Félszobák száma (6-12 m² között): 1 db
  • Ingatlan állapota: közepes állapotú
  • Komfort: összkomfortos
  • Fűtés: egyéb
  • Lift: nincs
  • Akadálymentesített: nincs
  • Napelem van?: nincs
  • Erkély: nincs
  • Légkondicionáló: nincs
  • Kilátás: utcai
  • A lakás falazata: Tégla
  • Közös költség mértéke: 22770

Leírás

Eladó Edelényben, a Miklós Gyula úton egy 66 m2-es, tehermentes, akár azonnal költözhető lakás! Edelény kedvelt, jól frekventált részén kínálunk eladásra egy jó állapotú, tégla építésű, 2+1 félszobás lakást, amely kiváló választás családoknak, pároknak vagy befektetésnek is. A lakás tehermentes, így a birtokbaadás rövid időn belül megoldható. Főbb jellemzők: 66 m2 alapterület 2+1 félszoba nagyméretű konyha étkező egyben tégla építésű társasház felújított fürdőszoba és WC meleg vizet villanybojler biztosítja kicserélt vízvezetékek réz villanyvezeték műanyag nyílászárók, minden ablakon redőnnyel alumínium bejárati ajtó beépített loggia szintén műanyag ablakokkal és redőnnyel, mely télikertként is hasznosítható Fűtés: Házi központi, radiátoros fűtés, a tömb saját gázkazánnal rendelkezik, ami gazdaságos fenntartást biztosít. Garázs: A lakáshoz külön áron megvásárolható egy 16 m2-es garázs, amely szintén a tömbben helyezkedik el. A garázs víz- és villanyellátással rendelkezik, tehermentes. Elhelyezkedés: Kiváló infrastruktúrával rendelkező környék, a közelben: iskola óvoda boltok gyógyszertár buszpályaudvar vasútállomás Minden fontos intézmény és szolgáltatás könnyen elérhető. OTP Banki hátterünknek köszönhetően finanszírozási igényekben (pl. Otthon Start Hitelprogram, Babaváró, CSOK Plusz, Lakáshitel, Személyi kölcsön stb.), illetve biztosítások tekintetében is díjmentesen, soron kívüli ügyintézéssel segítem ügyfeleim! Érdeklődés esetén hivatkozzon M320851 azonosítási számra.

E-mail küldése a hirdetőnek

Hibás hirdetés bejelentése

Sikeres elküldtük a hiba bejelentést.

Hirdető adatai

Kégl Zsolt
E-mail cím: zsolt.kegl@otpip.hu
Telefonszám: +36-70-201-5061
OTPip
Hirdetés feladója: Ingatlaniroda
Ingatlaniroda: OTPip
E-mail cím: miskolc.szemere@otpip.hu
Telefonszám: +36-70-606-0062

Képek



Térkép


Ajánlott ingatlanok

Tégla lakás

Eladó Lakás, Miskolc

Keresés azonosító alapján: HI-2501612
  • Miskolc
  • Alapterület: 37 m²
  • Ár: 24 500 000 Ft (65 333 €)
  • Feltöltés dátuma: 2025.11.13.
  •  
Tégla lakás

Eladó Lakás, Miskolc

Keresés azonosító alapján: HI-2470534
  • Miskolc
  • Alapterület: 98 m²
  • Ár: 67 700 000 Ft (180 533 €)
  • Feltöltés dátuma: 2025.09.04.
  •  
Tégla lakás

Eladó Lakás, Miskolc

Keresés azonosító alapján: HI-2540827
  • Miskolc
  • Alapterület: 74 m²
  • Ár: 59 900 000 Ft (159 733 €)
  • Feltöltés dátuma: 2026.02.24.
  • klímás
Tégla lakás

Eladó Lakás, Miskolc

Keresés azonosító alapján: HI-2526033
  • Miskolc
  • Alapterület: 79 m²
  • Ár: 69 900 000 Ft (186 400 €)
  • Feltöltés dátuma: 2026.01.25.
  •  
Facebook
Blogger
Twitter
Tweets by hasznaltingatla
Flickr