Eladó lakás, Érd

Ingatlan azonosító: HI-2462142

Pest megye - Érd, Tégla lakás


94 900 000 Ft (247 135 €)

  • Hirdetés feladója: Ingatlaniroda
  • Pontos cím: Érd
  • Típus: Eladó
  • Belső irodai azonosító: LK027290-5010764
  • Alapterület: 73 m²
  • Építés éve: 1989
  • Egész szobák száma (12 m² felett): 3 db
  • Félszobák száma (6-12 m² között): 0 db
  • Fürdőszobák száma: 1 db
  • Ingatlan állapota: felújított
  • Komfort: összkomfortos
  • Fűtés: gáz (cirko)
  • Lift: nincs
  • Akadálymentesített: nincs
  • Energiatanúsítvány: B
  • Napelem van?: nincs
  • Erkély: van
  • Légkondicionáló: van
  • Tájolás: dél-nyugat
  • A lakás falazata: Tégla

Leírás

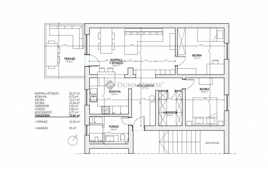
VALÓDI RITKASÁG ÉRDEN! TERASSZAL, KÉTÁLLÁSOS GARÁZZSAL 35nm! Érd Parkvárosban, kisforgalmú utcában, családi házas környezetben, eladó egy 4 lakásos társasház első emeletén, teljes körűen felújított teraszos lakás. A 72,9 m2-es nettó alapterületű két hálószobás, amerikai konyhás nappalis lakás. A nappaliból nyíló 12 m2-es fedett terasz a csendes udvarra néz. A lakáshoz tartozik még egy külön HRSZ számon nyilvántartott 35 m2-es garázs, melyben két autó is kényelmesen elfér és közvetlenül a lépcsőházból is megközelíthető. A terasz és a garázs a vételár részét képezik. Az épületet egy négy családból álló baráti társaság építtette saját részre, a tarsasházhoz egy közös használatú kert is tartozik. Az eladó lakást a jelenlegi tulajdonos újíttatta fel saját célra 2020-ban. A praktikus elrendezésű lakásba egy tágas előszobán keresztül léphetünk be a zárt lépcsőházból, ahol már egyből az egész lakásra jellemző, azt egyedivé és otthonossá tevő belsőépítészeti megoldásokkal találkozunk. Az előtérből közvetlenül nyílik a modern fürdőszoba, mely épített zuhanyzóval került kialakításra, a kazán és mosógép szeparáltan lett benne elhelyezésre az intimitását növelve. A lakás szíve a több mint 30 nm-es, nappali + étkező + konyha, mely egyedi falfestésével és melegszínű parketta burkolatával teremt egyszerre modern és letisztult, mégis otthonos érzést. A tágas terasszal nyári szezonban ez a tér tovább tágul. A két hálószoba alaprajzi elrendezése lehetővé teszi, hogy bármelyik szobában kialakítható a szülői háló, vagy a gyerekszoba, vagy akár vendég- és dolgozószoba. Az előtér közlekedő részéből nyílik továbbá egy 4,5 m2-es gardróbszoba. A hálószobák észak-keleti tájolásúak, az élettér dél-nyugati fekvésű, térkapcsolataik és nagy ablakaik miatt egész évben világos és napos környezetet biztosítanak. Fűtés-Hűtés: A lakásban kombi-cirkó biztosítja a radiátoros fűtést és használati melegvizet, a kazán és a radiátorok is cserére kerültek a felújításkor. A fürdőszobában is ekkor került kialakításra egy törölközőszárítós radiátor. A hálószobában 2023-ban telepítésre került továbbá egy 2,8 kW-os hűtő-fűtő klímaberendezés, mely az egész lakást egymagában képes lehűteni (2029-ig garanciális a megfelelő karbantartás mellett), emellett a nappaliban található még egy hűtő klímaberendezés is. A lakás rezsije rendkívül kedvező, egész évben havi15.000 Ft. körül mozog. Minden fogyasztás egyedi méréssel ellátott. Bútorzat: A beépített bútorok: gépesített konyhabútor (beépített hűtő, mélyhűtő, Whirlpool 6th sense sütő és mikró, mosogatógép, páraelszívó), nappali könyvespolc, gardróbszekrénysor, fürdőszoba szekrény, továbbá az előtér falán található belsőépítészeti elemek a vételár részét képezik. Épület: A négylakásos épületnek azon fele, melyben a lakás is található, valamint a lépcsőház 2010- es évben jelentős felújításon esett át, 10 cm-es hőszigetelést kapott a teljes homlokzat, és a tető is plusz hőszigetelést és fölötte új víz-szigetelő réteget kapott. A bejárati ajtó és a lépcsőházi nyílászárók is korszerű többrétegű műanyag típusúra cserélődtek. A lakáshoz tartozó garázs kapuja távirányítóval nyitható, a garázs a lépcsőházból zárható ajtón keresztül is megközelíthető. A pincében található továbbá egy közös használatú tárolóhelyiség, melynek mérete kb. 8 m2 és egy kis ablaka is van, így akár növények teleltetésére is alkalmas. A garázsfeljáró területén további állandó jellegű parkolásra van lehetőség. Ez az Érdi otthon nem csupán egy hely, ahol élünk, hanem egy állomás, ahol megpihenhetünk a mindennapok zajától. Érd egy dinamikusan fejlődő város, ami kiváló infrastruktúrával, jó közlekedéssel Budapesthez közel, mégis elbűvölő természeti környezettel rendelkezik. Itt minden megtalálható, ami a kényelmes és tartalmas élethez szükséges: iskolák, óvodák, bevásárlóközpontok, sportolási lehetőségek és kulturális tevékenységek egyaránt. A város kínálata és a környék nyugodt atmoszférája tökéletes kombinációt alkot azok számára, akik igazán minőségi otthont keresnek. Ez az ingatlan egyedi lehetőséget kínál azok számára, akik egy családi házas környezetben szeretnének élni, de nem szeretnének lemondani a város közelében való lakhatás előnyeiről. Az otthon minden részlete aprólékosan lett megtervezve, hogy a kényelmet és a funkcionalitást előtérbe helyezze. A belső terek kialakításánál a modern igényeket tartották szem előtt, így a felújítás során csak a legjobb minőségű anyagokat használták fel. A lakás napfényes terekkel büszkélkedik, mely egész nap világos, kellemes légkört biztosít otthonának. A teraszról csodálatos kilátás nyílik a gondozott kertre, ahol a család minden tagja megtalálhatja a saját nyugodt kis zugát. A kényelmet növeli a mélygarázs, ahol autóját biztonságban tudhatja Ne hagyja ki ezt a különleges lehetőséget, hívjon még ma, hogy ne maradjon le erről a kiváló ingatlanról. A Duna House teljes kínálatával kapcsolatban forduljanak hozzám bizalommal! Bankfüggetlen pénzügyi szakembereink tanácsadással, ügyintézéssel tudják segíteni Önöket álmaik, céljaik megvalósításában! Vegye igénybe díjmentes konzultációinkat! https://www.facebook.com/otthonkonnyeden Referencia szám: LK027290

E-mail küldése a hirdetőnek

Hibás hirdetés bejelentése

Sikeres elküldtük a hiba bejelentést.

Hirdető adatai

Drevnó Béla
E-mail cím: drevno.bela@dh.hu
Telefonszám: +36703077503
Duna House
Hirdetés feladója: Ingatlaniroda
Ingatlaniroda: Duna House
E-mail cím: kispest@dh.hu
Telefonszám: +36703077503

Képek



Térkép


Ajánlott ingatlanok

Tégla lakás

Eladó lakás, Budapest 13. ker.

Keresés azonosító alapján: HI-2406774
  • Budapest XIII.
  • Alapterület: 143 m²
  • Ár: 200 760 000 Ft (522 813 €)
  • Feltöltés dátuma: 2025.04.26.
  •  
Tégla lakás

Eladó lakás, Budapest 13. ker.

Keresés azonosító alapján: HI-2380474
  • Budapest XIII.
  • Alapterület: 47 m²
  • Ár: 105 000 000 Ft (273 438 €)
  • Feltöltés dátuma: 2025.03.01.
  • klímás
Tégla lakás

Eladó lakás, Budapest 11. ker.

Keresés azonosító alapján: HI-2487503
  • Budapest XI.
  • Alapterület: 75 m²
  • Ár: 127 900 000 Ft (333 073 €)
  • Feltöltés dátuma: 2025.10.08.
  •  
Tégla lakás

Eladó lakás, Budapest 8. ker.

Keresés azonosító alapján: HI-2448619
  • Budapest VIII.
  • Alapterület: 107 m²
  • Ár: 171 000 000 Ft (445 313 €)
  • Feltöltés dátuma: 2025.07.24.
  • klímás
Facebook
Blogger
Twitter
Tweets by hasznaltingatla
Flickr