Eladó Lakás, Fonyód

Ingatlan azonosító: HI-2494701

Somogy megye - Fonyód, Új építésű lakás


98 200 000 Ft (251 151 €)

  • Hirdetés feladója: Ingatlaniroda
  • Pontos cím: Fonyód
  • Típus: Eladó
  • Belső irodai azonosító: M315861-5071877
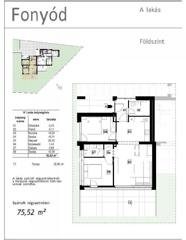
  • Alapterület: 75 m²
  • Építés éve: 2025
  • Egész szobák száma (12 m² felett): 1 db
  • Félszobák száma (6-12 m² között): 2 db
  • Emelet: földszint
  • Ingatlan állapota: új építésű
  • Komfort: összkomfortos
  • Fűtés: egyéb
  • Lift: nincs
  • Akadálymentesített: nincs
  • Napelem van?: nincs
  • Erkély: nincs
  • Légkondicionáló: nincs
  • Kilátás: udvari
  • Tájolás: nyugat
  • A lakás falazata: Tégla

Leírás

Somogy vármegye Fonyód településén, nyugodt környéken, a Panoráma lakóparkban eladó egy új építésű ingatlan. A lakópark jól megközelíthető elkerített területen található. Jelenleg az épület szerkezetkész, tetőszerkezettel, azaz kb. 60 %-os készültségi fokon áll. A végső állapot kialakításába bizonyos mértékig és költségkeretig a vevőnek van beleszólása. Fonyód központ, piac, kikötő 6-7 perc autóval. Ha valaki gyorsan megrendeli, a karácsonyt már ott töltheti. Megtekintés kapcsán vagy érdeklődéssel forduljanak hozzánk bizalommal!

E-mail küldése a hirdetőnek

Hibás hirdetés bejelentése

Sikeres elküldtük a hiba bejelentést.

Hirdető adatai

Fehér András
E-mail cím: andras.feher@otpip.hu
Telefonszám: +36703276761
OTPip
Hirdetés feladója: Ingatlaniroda
Ingatlaniroda: OTPip
E-mail cím: kaposvar.zardautca@otpip.hu
Telefonszám: +36705027249

Képek



Térkép


Ajánlott ingatlanok

Új építésű lakás

Eladó Lakás, Fonyód

Keresés azonosító alapján: HI-2494698
  • Fonyód
  • Alapterület: 70 m²
  • Ár: 92 000 000 Ft (235 294 €)
  • Feltöltés dátuma: 2025.10.29.
  •  
Új építésű lakás

Eladó Lakás, Fonyód

Keresés azonosító alapján: HI-2494700
  • Fonyód
  • Alapterület: 63 m²
  • Ár: 82 300 000 Ft (210 486 €)
  • Feltöltés dátuma: 2025.10.29.
  •  
Új építésű lakás

Eladó Lakás, Fonyód

Keresés azonosító alapján: HI-2494699
  • Fonyód
  • Alapterület: 56 m²
  • Ár: 73 400 000 Ft (187 724 €)
  • Feltöltés dátuma: 2025.10.29.
  •  
Családi ház

Eladó Ház, Somogyszil

Keresés azonosító alapján: HI-2473019
  • Somogyszil Iparos utca
  • Alapterület: 140 m²
  • Telekterület: 771 m²
  • Ár: 27 900 000 Ft (71 355 €)
  • Feltöltés dátuma: 2025.09.12.
  •  
Facebook
Blogger
Twitter
Tweets by hasznaltingatla
Flickr