Eladó Lakás, Hajdúszoboszló

Ingatlan azonosító: HI-2544899

Hajdú-Bihar megye - Hajdúszoboszló, Új építésű lakás


69 000 000 Ft (179 221 €)

  • Hirdetés feladója: Ingatlaniroda
  • Pontos cím: Hajdúszoboszló
  • Típus: Eladó
  • Belső irodai azonosító: M319104-5118844
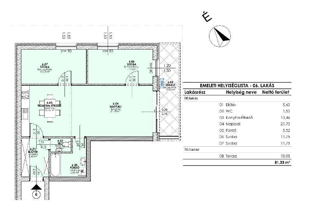
  • Alapterület: 44 m²
  • Építés éve: 2026
  • Egész szobák száma (12 m² felett): 1 db
  • Félszobák száma (6-12 m² között): 0 db
  • Emelet: földszint
  • Ingatlan állapota: új építésű
  • Komfort: összkomfortos
  • Fűtés: egyéb
  • Lift: van
  • Akadálymentesített: nincs
  • Energiatanúsítvány: A+
  • Napelem van?: nincs
  • Erkély: van
  • Légkondicionáló: nincs
  • Kilátás: kertre néző
  • A lakás falazata: Tégla

Leírás

A GLÓBIUSZ PREMIUM RESIDENCE Magyarország egyik legnépszerűbb üdülőhelyén, Hajúszoboszlón és annak is a legjobbnak tartott környékén fog megépülni. Ahonnan a hűvös-lágy fehérbortól gyöngyöző poharakat szorongatva a Csónakázótó szélesvásznú panorámája hozza majd romantikus hangulatba a ház tágas teraszain ejtőzőket. Mindezt Európa legnagyobb fürdőkomplexumának a szomszédságában aminek minősített gyógyvize 1925 óta vonza ide a kontinens termálvíz kedvelőit. Ami által infrastruktúrája (közlekedés, oktatás, egészségügy, közműhálózat, sport) és a legkülönbözőbb szolgáltatások széles választéka, Hajdúszoboszlót kimagaslóvá teszik ma Magyarországon. A hirdetményben szereplő ár a földszint 8-os számú lakásra vonatkozik, melynek helyiségei: amerikai konyhás nappali, 1 szoba, fürdő+WC, előtér, fedett terasz. -Alapterület: 44,96m2+10,6m2 terasz+35,41nm saját használatú zöldterület. Az ingatlan főbb paraméterei: -Várható átadás 2026. 2. negyedév -Teherhordó szerkezetek: monolit vasbeton tartószerkezet -Vázkitöltő falazatok: YTONG LAMBDA pórusbeton vázkitöltő falazatú -Hőleadók: padlófűtés + mennyezetfűtés/hűtés -3 rétegű hőszigetelt, műanyag nyílászárók -A lakásokhoz tartozó elektromos mérőórák kapacitása 1x32A, azokban a lakásokban, melyek teraszán szauna csatlakozási pont található, 3x20A lesz biztosítva -AA++ energetikai besorolás -Pince szinten 45db teremgarázs hely kerül kialakításra, melynek vételárát a hirdetmény nem tartalmazza (10-12mFt méret függvényében) Legyen szó befektetésről vagy álmaid otthonának megtalálásáról, ez most Hajdúszoboszló belvárosának egyik legjobb ajánlata! Az OTP bankcsoport teljes körű ügyintézéssel áll rendelkezésre az eladók és a vevők részére! További kérdéseivel, megtekintésre való egyeztetés kapcsán keressen bátran a hét bármely napján! Helyszíni bejárásra előre egyeztetett időpontban hétköznapokon van lehetőség!

E-mail küldése a hirdetőnek

Hibás hirdetés bejelentése

Sikeres elküldtük a hiba bejelentést.

Hirdető adatai

Hódos Gergő
E-mail cím: gergo.hodos@otpip.hu
Telefonszám: +36-70-595-3201
OTPip
Hirdetés feladója: Ingatlaniroda
Ingatlaniroda: OTPip
E-mail cím: hajduszoboszlo.bethlen@otpip.hu
Telefonszám: +36705953201

Képek



Térkép


Ajánlott ingatlanok

Új építésű lakás

Eladó Lakás, Hajdúszoboszló

Keresés azonosító alapján: HI-2544889
  • Hajdúszoboszló
  • Alapterület: 71 m²
  • Ár: 73 500 000 Ft (190 909 €)
  • Feltöltés dátuma: 2026.03.02.
  •  
Új építésű lakás

Eladó Lakás, Hajdúszoboszló

Keresés azonosító alapján: HI-2544894
  • Hajdúszoboszló
  • Alapterület: 56 m²
  • Ár: 70 800 000 Ft (183 896 €)
  • Feltöltés dátuma: 2026.03.02.
  •  
Új építésű lakás

Eladó Lakás, Hajdúszoboszló

Keresés azonosító alapján: HI-2544897
  • Hajdúszoboszló
  • Alapterület: 34 m²
  • Ár: 48 000 000 Ft (124 675 €)
  • Feltöltés dátuma: 2026.03.02.
  •  
Üdülőházas

Eladó Apartman, Hajdúszoboszló

Keresés azonosító alapján: HI-2544892
  • Hajdúszoboszló
  • Alapterület: 100 m²
  • Telekterület: 408 m²
  • Ár: 120 000 000 Ft (311 688 €)
  • Feltöltés dátuma: 2026.03.02.
  • klímás
Facebook
Blogger
Twitter
Tweets by hasznaltingatla
Flickr