Eladó lakás, Hatvan

Ingatlan azonosító: HI-2491683

Heves megye - Hatvan, Tégla lakás


59 500 000 Ft (156 168 €)

  • Hirdetés feladója: Ingatlaniroda
  • Pontos cím: Hatvan Klapka utca
  • Típus: Eladó
  • Belső irodai azonosító: LK068942-5024155
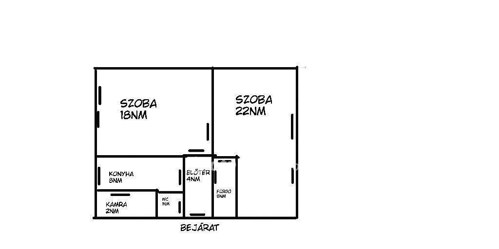
  • Alapterület: 85 m²
  • Építés éve: 1980
  • Egész szobák száma (12 m² felett): 4 db
  • Félszobák száma (6-12 m² között): 0 db
  • Fürdőszobák száma: 1 db
  • Emelet: földszint
  • Ingatlan állapota: felújított
  • Fűtés: gáz (cirko)
  • Lift: nincs
  • Akadálymentesített: nincs
  • Napelem van?: nincs
  • Erkély: nincs
  • Légkondicionáló: nincs
  • Tájolás: észak-kelet
  • A lakás falazata: Tégla

Leírás

Hatvan, közkedvelt, kertvárosi részén, igényes házak között, frissen felújított modern lakóparkban, 3 lakásos társasházban akadálymentesített lakások eladók!A társasház alapító okirattal rendelkezik, a címképzés és albetétesítés még folyamatban van.Tágas lakások, belső két szinttel, önálló garázzsal eladók!1 lakótömbben, 3 db lakás kerül kialakításra. Minőségi alapanyagokból, modern tervek alapján.Az építtető megbízható magánszemély, aki évek óta rendelkezik város szerte referenciákkal, szerencsére minden ügyfél megelégedettségével párosítva!Lokációját tekintve a lakások nagyon jó helyen vannak. Buszmegálló 1 perc, bolt és egyéb 5 perc gyalogos távra található.Lássuk mi foglalható:- 1-es lakás - 62.300.000 ft:Méret: 92 nm (4 szoba + nappali + konyha + wc + fürdő + közlekedő)+ hozzá tatozó kert rész+ hozzá tartozó külön 20 nm-es garázsElosztását tekintve:Földszinten:- 3 szoba- konyha- közlekedő- fürdő- wcEmeleten: -lépcsőtér- 2 szoba- 2-es lakás - 59.900.000 ft:Méret: 85 nm (3 szoba + nappali + konyha + wc + fürdő + közlekedő)+ hozzá tatozó kert rész+ hozzá tartozó 20 nm-es garázsElosztását tekintve:Földszinten:- 2 szoba- konyha- közlekedő- fürdő- wcEmeleten:-lépcsőtér- 2 szoba- 3-as lakás - 52.500.000 ft:Méret: 90 nm ( hatalmas nappali + konyha + wc + fürdő + közlekedő+terasz+küön garzon lakás)+ hozzá tatozó kert rész+hozzá tartozó nagy terasz+ hozzá tartozó 30 nm-es külön kis garzon lakás Elosztását tekintve:Földszinten:- konyha- közlekedő- fürdő- wc- mosó konyha- gardroba- nappaliEmeleten:-lépcsőtér-30 nm-es külön garzon lakásMűszaki és egyéb adatok:A belső kialakítás, burkolás most történik.Minden minőségi alapanyagokbólEnergetikai besorolásuk ATégla falazat.15 cm-es EPS szigetelés35 cm-es kőzetgyapot szigetelés a födémen. Új födém gerendák.Új kerítés.Műanyag, vasalt profilú, 3 rétegű nyílászárók.Biztonsági bejárati ajtók lettek beszerelve.A fűtésről és a melegvízről gáz cirkó gondoskodik.Minden közműről, lakásonként külön órák vannak.Jelenleg átadási készültségi szinten.Hitel ügyintézésben ingyenesen segítünk.Mutatásban rugalmasak vagyunk!Ha felkeltette érdeklődését a hirdetését, keressen bátran bizalommal, ne maradjon le erről a szuper lehetőségről!!! Foglalja le álmai otthonát, elérhető áron, időben!!!

E-mail küldése a hirdetőnek

Hibás hirdetés bejelentése

Sikeres elküldtük a hiba bejelentést.

Hirdető adatai

Schmidt Kata Diana
E-mail cím: schmidt.kata@dh.hu
Telefonszám: +36204965989
Duna House
Hirdetés feladója: Ingatlaniroda
Ingatlaniroda: Duna House
E-mail cím: fot@dh.hu
Telefonszám: +36705774328

Képek



Térkép


Ajánlott ingatlanok

Tégla lakás

Eladó lakás, Budapest 5. ker.

Keresés azonosító alapján: HI-2502798
  • Budapest V. Kossuth Lajos utca
  • Alapterület: 78 m²
  • Ár: 99 000 000 Ft (259 843 €)
  • Feltöltés dátuma: 2025.11.18.
  •  
Tégla lakás

Eladó lakás, Budapest 3. ker.

Keresés azonosító alapján: HI-2510489
  • Budapest III. Zápor utca
  • Alapterület: 93 m²
  • Ár: 140 500 000 Ft (368 766 €)
  • Feltöltés dátuma: 2025.12.07.
  •  
Tégla lakás

Eladó lakás, Budapest 16. ker.

Keresés azonosító alapján: HI-2510491
  • Budapest XVI. Linda tér
  • Alapterület: 56 m²
  • Ár: 63 800 000 Ft (167 454 €)
  • Feltöltés dátuma: 2025.12.07.
  •  
Tégla lakás

Eladó lakás, Budapest 8. ker.

Keresés azonosító alapján: HI-2510496
  • Budapest VIII. Leonardo da Vinci utca
  • Alapterület: 41 m²
  • Ár: 57 950 000 Ft (152 100 €)
  • Feltöltés dátuma: 2025.12.07.
  •  
Facebook
Blogger
Twitter
Tweets by hasznaltingatla
Flickr