Eladó Lakás, Kazincbarcika

Ingatlan azonosító: HI-2491172

Borsod-Abaúj-Zemplén megye - Kazincbarcika, Tégla lakás


20 000 000 Ft (52 493 €)

  • Hirdetés feladója: Ingatlaniroda
  • Pontos cím: Kazincbarcika
  • Típus: Eladó
  • Belső irodai azonosító: M311875-5066172
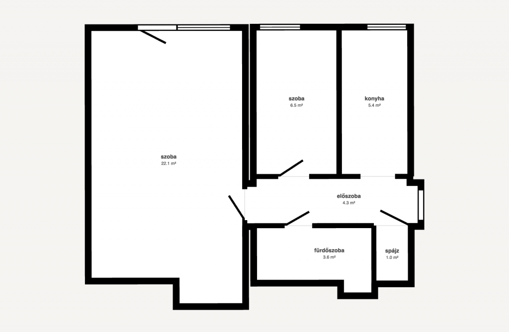
  • Alapterület: 44 m²
  • Építés éve: 1970
  • Egész szobák száma (12 m² felett): 1 db
  • Félszobák száma (6-12 m² között): 0 db
  • Emelet: földszint
  • Ingatlan állapota: jó állapotú
  • Komfort: összkomfortos
  • Fűtés: gáz (konvektor)
  • Lift: nincs
  • Akadálymentesített: nincs
  • Napelem van?: nincs
  • Erkély: nincs
  • Légkondicionáló: nincs
  • Kilátás: utcai
  • A lakás falazata: Tégla
  • Közös költség mértéke: 5000

Leírás

Kazincbarcika, Teljesen felújított, 45 nm-es, erkélyes lakás eladó. Ne keressen tovább, ha egy azonnal költözhető, otthont keres a városban. Eladó egy 45 nm-es, napfényes lakás a Május 1. úton, amely a közelmúltban esztétikai és műszaki felújításon esett át. A lakás elosztása ideális, kényelmes életteret biztosítva egyedülállóknak vagy pároknak egyaránt. Az ingatlanhoz egy kényelmes erkély is tartozik, ami tökéletes helyszín a reggeli kávézáshoz vagy a pihenéshez. Korszerű műanyag nyílászárók kerültek beépítésre, melyek kiváló hőszigetelést biztosítanak. A meleg vizet egy energiatakarékos villanybojler szolgáltatja. A fűtésről gázkonvektor gondoskodik, a rezsi így alacsony és könnyen szabályozható. A lakás esztétikai állapota tökéletes: frissen festett falak, új burkolatok Az ingatlan elhelyezkedése a tökéletes: minden fontos szolgáltatás karnyújtásnyira van. A közelben található iskola, óvoda, boltok és több bevásárlási lehetőség, így a mindennapi életet kényelmessé teszi a családok számára is. A jó tömegközlekedésnek köszönhetően a város bármely pontja könnyen elérhető. A lakás tehermentes, azonnal birtokba vehető. OTP Banki hátterünknek köszönhetően finanszírozási igényekben (pl. Otthon Start Hitelprogram , Babaváró, Falusi CSOK, CSOK Plusz, Lakáshitel, Személyi kölcsön stb.), illetve biztosítások tekintetében is díjmentesen, soron kívüli ügyintézéssel segítem ügyfeleim! Kérem tekintse meg, virtuális sétámat is. Hívása során hivatkozzon az M311875 referenciaszámra!

E-mail küldése a hirdetőnek

Hibás hirdetés bejelentése

Sikeres elküldtük a hiba bejelentést.

Hirdető adatai

Kégl Zsolt
E-mail cím: zsolt.kegl@otpip.hu
Telefonszám: +36-70-201-5061
OTPip
Hirdetés feladója: Ingatlaniroda
Ingatlaniroda: OTPip
E-mail cím: miskolc.szemere@otpip.hu
Telefonszám: +36-70-606-0062

Képek



Térkép


Ajánlott ingatlanok

Tégla lakás

Eladó Lakás, Miskolc

Keresés azonosító alapján: HI-2485688
  • Miskolc
  • Alapterület: 43 m²
  • Ár: 16 990 000 Ft (44 593 €)
  • Feltöltés dátuma: 2025.10.03.
  •  
Tégla lakás

Eladó Lakás, Miskolc

Keresés azonosító alapján: HI-2467102
  • Miskolc
  • Alapterület: 53 m²
  • Ár: 27 000 000 Ft (70 866 €)
  • Feltöltés dátuma: 2025.08.28.
  •  
Tégla lakás

Eladó Lakás, Miskolc

Keresés azonosító alapján: HI-2489166
  • Miskolc
  • Alapterület: 55 m²
  • Ár: 36 900 000 Ft (96 850 €)
  • Feltöltés dátuma: 2025.10.13.
  •  
Tégla lakás

Eladó Lakás, Mezőkövesd

Keresés azonosító alapján: HI-2451247
  • Mezőkövesd
  • Alapterület: 50 m²
  • Ár: 24 900 000 Ft (65 354 €)
  • Feltöltés dátuma: 2025.07.30.
  •  
Facebook
Blogger
Twitter
Tweets by hasznaltingatla
Flickr