Eladó Lakás, Kazincbarcika

Ingatlan azonosító: HI-2475616

Borsod-Abaúj-Zemplén megye - Kazincbarcika, Csúsztatott zsalus


25 900 000 Ft (67 979 €)

  • Hirdetés feladója: Ingatlaniroda
  • Pontos cím: Kazincbarcika
  • Típus: Eladó
  • Belső irodai azonosító: M311272-5038467
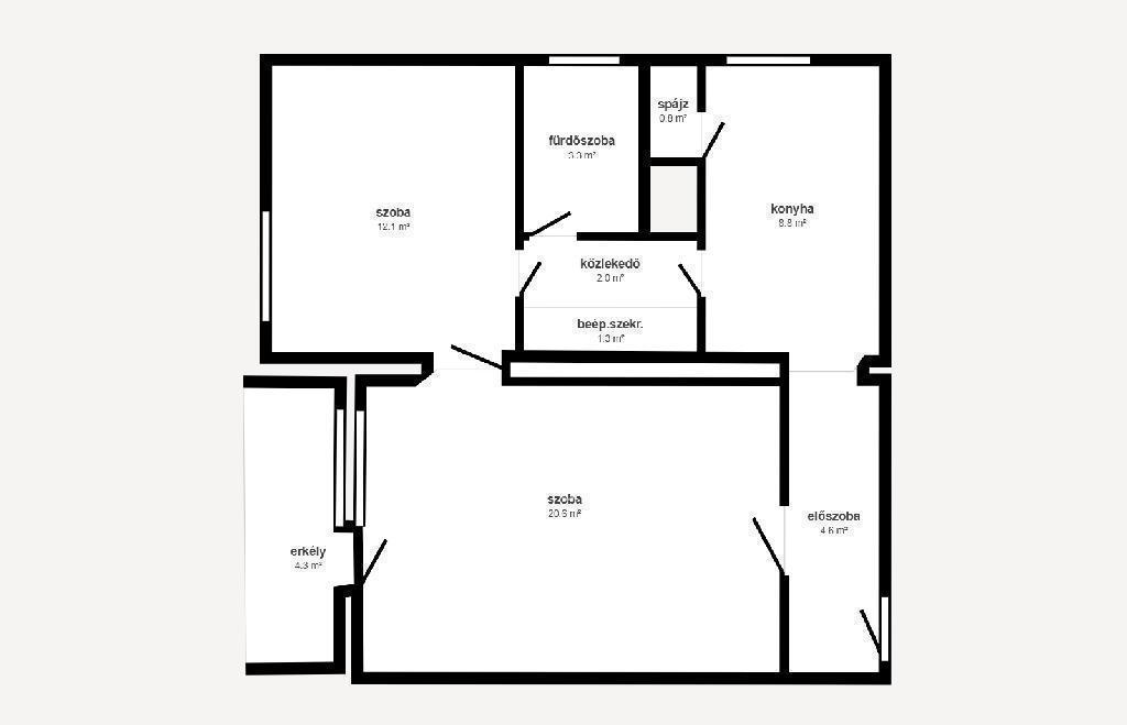
  • Alapterület: 58 m²
  • Építés éve: 1976
  • Egész szobák száma (12 m² felett): 2 db
  • Félszobák száma (6-12 m² között): 0 db
  • Emelet: 8. emelet
  • Ingatlan állapota: jó állapotú
  • Komfort: összkomfortos
  • Fűtés: egyéb
  • Lift: van
  • Akadálymentesített: nincs
  • Napelem van?: nincs
  • Erkély: van
  • Légkondicionáló: nincs
  • Kilátás: utcai
  • Közös költség mértéke: 9300

Leírás

Befektetők, első lakásukat vásárlók figyelem Kazincbarcikán, a belváros közvetlen szomszédságában egy 58 nm-es, 2 szobás felújított lakás eladó. Az ingatlanban műanyag, redőnnyel felszerelt nyílászárók kerültek beépítésre, egy HI-sec több ponton záródó biztonsági ajtóval egyetemben. A fűtés radiátorokkal megoldott, míg a melegvizet villanybojler biztosítja. A villamoshálózat is korszerűsitésen esett át. A fürdőszobában, valamint a konyhában 1,5-es rézvezetékek találhatók, valamennyi nagy fogyasztó pedig külön kábelre lett bekötve. A szobákban az aluminium vezetékek maradtak, továbbá a kisszobában egy 3*1,5-es rézkábel található visszafordítva a klímának. A világitás is energiatakarékos ledpanelre lett átalakítva . A 2 szobában szép állapotú parketta található, míg a többi helyiség vízálló SPC burkolatot kapott. A lakás megfelel az Otthon Start 3%-os hitel feltételeinek. Banki hátterünknek köszönhetően finanszírozási kérdésekben is segítjük ügyfeleinket. Jöjjön és tekintsük meg együtt akár hétvégén is! Hívása során hivatkozzon az M311272-es referenciaszámra. ÉRDEKLŐDNI: PUCSOK HAJNALKA 06204911723 Referencia szám: M311272

E-mail küldése a hirdetőnek

Hibás hirdetés bejelentése

Sikeres elküldtük a hiba bejelentést.

Hirdető adatai

Pucsok Hajnalka
E-mail cím: pucsok.hajnalka@otpip.hu
Telefonszám: +36-20-491-1723
OTPip
Hirdetés feladója: Ingatlaniroda
Ingatlaniroda: OTPip
E-mail cím: miskolc.szemere@otpip.hu
Telefonszám: +36-70-606-0062

Képek



Térkép


Ajánlott ingatlanok

Csúsztatott zsalus

Eladó Lakás, Kazincbarcika

Keresés azonosító alapján: HI-2502294
  • Kazincbarcika
  • Alapterület: 58 m²
  • Ár: 25 900 000 Ft (67 979 €)
  • Feltöltés dátuma: 2025.11.15.
  •  
Csúsztatott zsalus

Eladó Lakás, Miskolc

Keresés azonosító alapján: HI-2484250
  • Miskolc
  • Alapterület: 43 m²
  • Ár: 29 900 000 Ft (78 478 €)
  • Feltöltés dátuma: 2025.10.02.
  •  
Csarnok

Eladó Ház, Kazincbarcika

Keresés azonosító alapján: HI-2372419
  • Kazincbarcika
  • Alapterület: 195 m²
  • Telekterület: 1 513 m²
  • Ár: 26 500 000 Ft (69 554 €)
  • Feltöltés dátuma: 2025.02.12.
  •  
Családi ház

Eladó Ház, Miskolc

Keresés azonosító alapján: HI-2460775
  • Miskolc
  • Alapterület: 80 m²
  • Telekterület: 1 937 m²
  • Ár: 37 900 000 Ft (99 475 €)
  • Feltöltés dátuma: 2025.08.12.
  •  
Facebook
Blogger
Twitter
Tweets by hasznaltingatla
Flickr