Eladó lakás, Komló

Ingatlan azonosító: HI-2502821

Baranya megye - Komló, Tégla lakás


16 900 000 Ft (44 010 €)

  • Hirdetés feladója: Ingatlaniroda
  • Pontos cím: Komló
  • Típus: Eladó
  • Belső irodai azonosító: LK090448-5088064
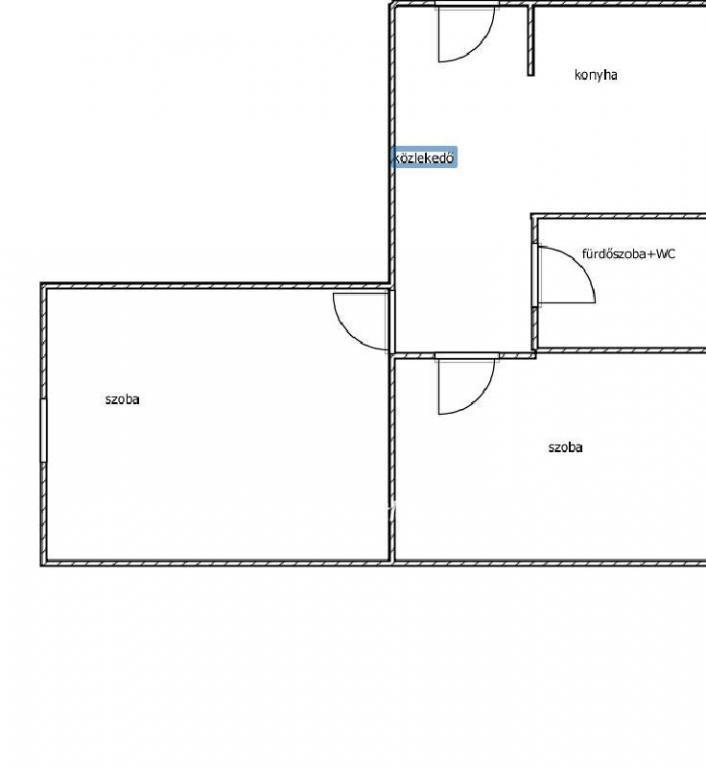
  • Alapterület: 51 m²
  • Építés éve: 1960
  • Egész szobák száma (12 m² felett): 1 db
  • Félszobák száma (6-12 m² között): 1 db
  • Fürdőszobák száma: 1 db
  • Ingatlan állapota: jó állapotú
  • Fűtés: gáz (konvektor)
  • Lift: nincs
  • Akadálymentesített: nincs
  • Napelem van?: nincs
  • Erkély: van
  • Légkondicionáló: nincs
  • Tájolás: dél-nyugat
  • A lakás falazata: Tégla

Leírás

Eladó felújított, erkélyes, 51 m²-es téglalakás Komló központhoz közeli részén.Megvételre kínálok Komlón, a Vörösmarty utca elején egy háromszintes társasház első emeletén található, 52 m²-es, erkélyes, átalakított és teljeskörűen felújított, kétszobás téglalakást.További jellemzők:- az ingatlan minden helyisége új burkolatot kapott- a villanyhálózat cseréje megtörtént- új biztonsági bejárati ajtó került beépítésre- valamint hőszigetelt, műanyag nyílászárók kerültek beépítésre, mindegyik redőnnyel felszerelve- fürdőben, WC-ben új szaniterek- a fűtést gázkonvektorok biztosítják, a melegvizet új villanybojler szolgáltatja- a lakáshoz saját tároló tartozik, mely praktikus megoldást nyújt a mindennapokban- az ingatlan tehermentes, így akár azonnal birtokba vehetőBefektetés céljára is kiváló, hiszen jelen állapotában azonnal kiadható!A környéken minden, a kényelmes élethez szükséges szolgáltatás megtalálható:óvoda, kereskedelmi egységek (pl. Tesco), háziorvos, posta és egyéb üzletek, néhány percnyi sétára.További információkért és megtekintéssel kapcsolatban keressen bizalommal. Irányár 16900000 Ft További ingatlanokat keressen egyszerűen, az alábbi linken: https://kiss-erzsebet.dh.hu/ Referencia szám: LK090448

E-mail küldése a hirdetőnek

Hibás hirdetés bejelentése

Sikeres elküldtük a hiba bejelentést.

Hirdető adatai

Kiss Erzsébet
E-mail cím: erzsebet.kiss1@dh.hu
Telefonszám: +36203234450
Duna House
Hirdetés feladója: Ingatlaniroda
Ingatlaniroda: Duna House
E-mail cím: pecs.kertvaros@dh.hu
Telefonszám: +3672876735

Képek



Térkép


Ajánlott ingatlanok

Tégla lakás

Eladó lakás, Pécs

Keresés azonosító alapján: HI-2502819
  • Pécs
  • Alapterület: 55 m²
  • Ár: 32 900 000 Ft (85 677 €)
  • Feltöltés dátuma: 2025.11.18.
  •  
Tégla lakás

Eladó lakás, Pécs Belváros

Keresés azonosító alapján: HI-2459714
  • Pécs
  • Alapterület: 87 m²
  • Ár: 65 900 000 Ft (171 615 €)
  • Feltöltés dátuma: 2025.08.09.
  •  
Tégla lakás

Eladó lakás, Pécs

Keresés azonosító alapján: HI-2489888
  • Pécs
  • Alapterület: 43 m²
  • Ár: 32 000 000 Ft (83 333 €)
  • Feltöltés dátuma: 2025.10.16.
  •  
Tégla lakás

Eladó lakás, Pécs

Keresés azonosító alapján: HI-2483986
  • Pécs
  • Alapterület: 85 m²
  • Ár: 69 900 000 Ft (182 031 €)
  • Feltöltés dátuma: 2025.10.02.
  •  
Facebook
Blogger
Twitter
Tweets by hasznaltingatla
Flickr