Eladó lakás, Komló

Ingatlan azonosító: HI-2538197

Baranya megye - Komló, Tégla lakás


19 500 000 Ft (49 872 €)

  • Hirdetés feladója: Ingatlaniroda
  • Pontos cím: Komló
  • Típus: Eladó
  • Belső irodai azonosító: LK016885-5150524
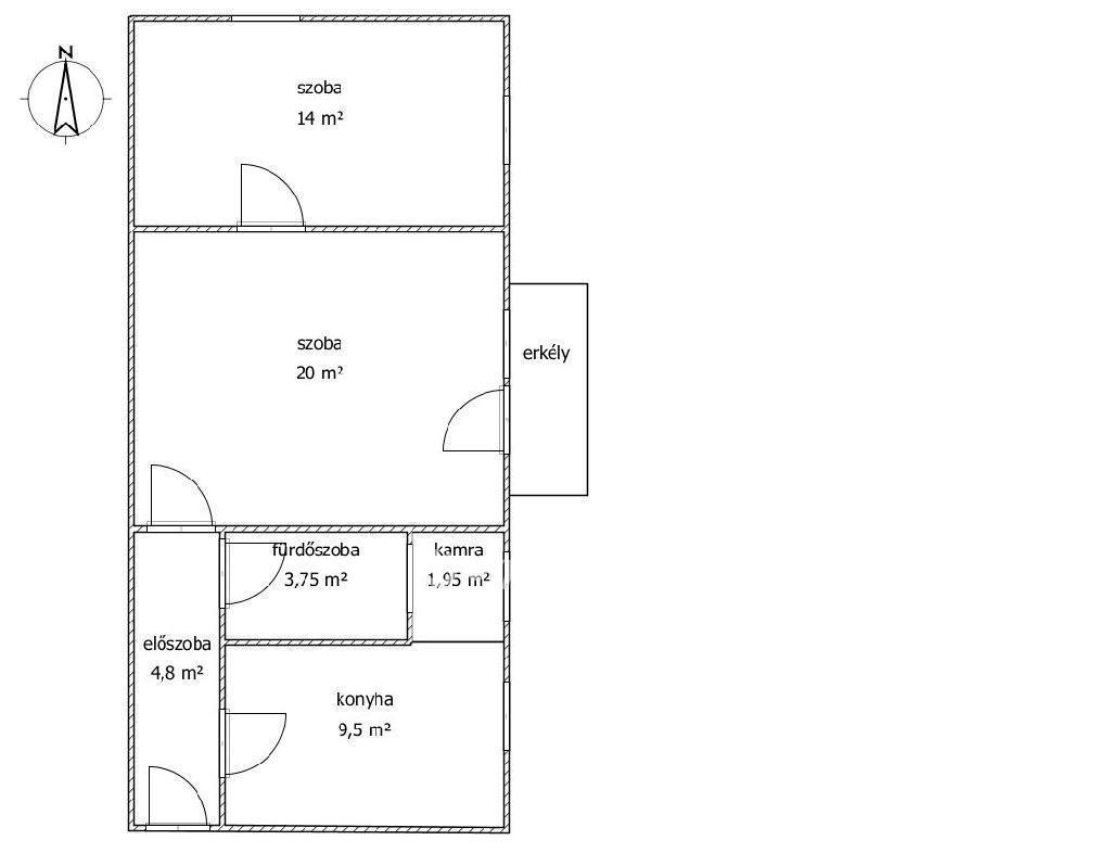
  • Alapterület: 54 m²
  • Építés éve: 1965
  • Egész szobák száma (12 m² felett): 2 db
  • Félszobák száma (6-12 m² között): 0 db
  • Fürdőszobák száma: 1 db
  • Ingatlan állapota: jó állapotú
  • Fűtés: elektromos
  • Lift: nincs
  • Akadálymentesített: nincs
  • Napelem van?: nincs
  • Erkély: nincs
  • Légkondicionáló: nincs
  • Tájolás: kelet
  • A lakás falazata: Tégla

Leírás

Komlón eladó egy teljes körűen felújított tégla lakás!Eladásra kínálunk Komló kedvelt részén egy 1. emeleti (nem tetőtéri!), 54 m²-es, két külön nyíló szobás tégla lakást.Az ingatlan vezetékekig felújított, új nyílászárók redőnnyel rovarhálóval, megtörtént az árambővítés, megújultak a burkolatok és szaniterek, valamint álmennyezet került kialakításra beépített LED világítással, amely modern és hangulatos megjelenést biztosít.A fűtés kialakítása jelenleg folyamatban van, 2 db inverteres klímaberendezés fogja biztosítani a fűtést és hűtést.A lakás tehermentes, azonnal birtokba vehető, így ideális választás saját részre vagy befektetésnek is.A lépcsőház rendezett, a társasháznak nincs tartozása, a közös költség mindössze 14.500 Ft/hó.A buszmegálló közvetlenül a ház előtt található, így a közlekedés kiváló. Csendes, zöldövezeti elhelyezkedés, mégis jó infrastruktúra!Bővebb információért, megtekintésért várom hívását! 19500000 Ft Várom hívását! Keressen ! Segítek! 06205425874 Referencia szám: LK016885-HI

E-mail küldése a hirdetőnek

Hibás hirdetés bejelentése

Sikeres elküldtük a hiba bejelentést.

Hirdető adatai

Sági Rita Barbara
E-mail cím: sagi.rita@dh.hu
Telefonszám: +36205425874
Duna House
Hirdetés feladója: Ingatlaniroda
Ingatlaniroda: Duna House
E-mail cím: pecs.kincses@dh.hu
Telefonszám: +3672228517

Képek



Térkép


Ajánlott ingatlanok

Tégla lakás

Eladó lakás, Pécs

Keresés azonosító alapján: HI-2473687
  • Pécs
  • Alapterület: 110 m²
  • Ár: 125 000 000 Ft (319 693 €)
  • Feltöltés dátuma: 2025.09.13.
  •  
Tégla lakás

Eladó lakás, Pécs

Keresés azonosító alapján: HI-2541976
  • Pécs
  • Alapterület: 55 m²
  • Ár: 50 900 000 Ft (130 179 €)
  • Feltöltés dátuma: 2026.02.27.
  •  
Tégla lakás

Eladó lakás, Pécs

Keresés azonosító alapján: HI-2513153
  • Pécs
  • Alapterület: 162 m²
  • Ár: 145 000 000 Ft (370 844 €)
  • Feltöltés dátuma: 2025.12.17.
  •  
Tégla lakás

Eladó lakás, Pécs

Keresés azonosító alapján: HI-2483406
  • Pécs
  • Alapterület: 85 m²
  • Ár: 69 900 000 Ft (178 772 €)
  • Feltöltés dátuma: 2025.10.01.
  •  
Facebook
Blogger
Twitter
Tweets by hasznaltingatla
Flickr